Valutazione immobiliare indipendente, accurata e gratuita
Casa indipendente in vendita ad Empoli a 199.000 € (cod.64dc4fbe)
Caasa non ha sufficienti informazioni per commentare la casa indipendente in vendita ad Empoli - 64dc4fbe.
Analisi immobiliare
I dati in posseso di Caasa per quest'immobile sono insufficienti, inaffidabili o contraddittori per proporre un'analisi attendibile.
Mercato immobiliare ad Empoli
Per quanto riguarda più in generale la città di Empoli, sono presenti al momento ben oltre mille annunci per
case indipendenti in vendita (meno del 10% dell'intera provincia)
e il maggior numero di annunci per questa tipologia sono relativi alla zona di Centro Storico.
Possiamo inoltre considerare che in tutta la città negli ultimi 6 mesi, i prezzi per case indipendenti in vendita sono
in debole aumento (+1,75%).
NOVITÀ Il risultato che vedi dipende dai dati che siamo riusciti ad estrarre dall'annuncio: ottieni una stima più accuranta di questo immobile, inserendo dati più precisi.
N.B. L'Opinione di Caasa® è un servizio sperimentale realizzato tramite tecniche di Intelligenza Artificiale, fornito senza alcuna garanzia di correttezza e completezza. Leggi il disclaimer o segnalaci un problema.
IMMAGINI
IN SINTESI
PROPOSTO DA:
etica immobiliare
DESCRIZIONE
da ristrutturare con terrazza con cantina con giardino da ristrutturare con balcone
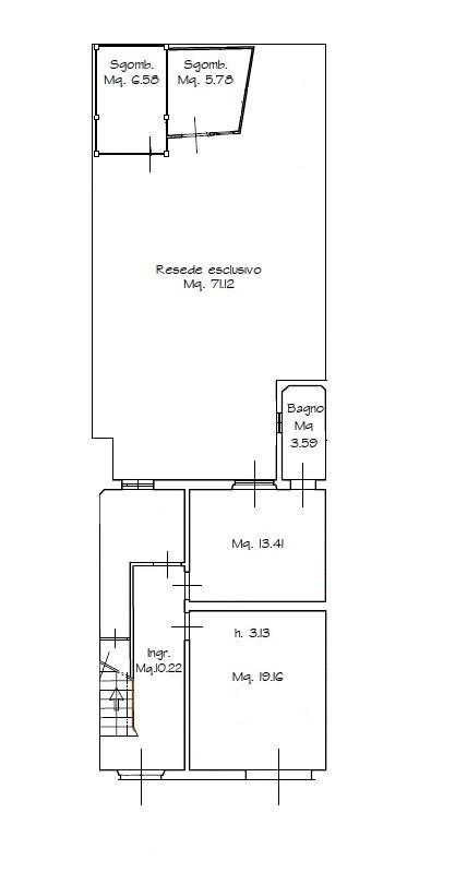
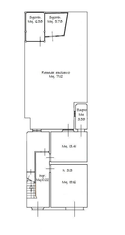
Cod.01126 Rif.Ag. 603 - IN VENDITA A EMPOLI Località Santa Maria TERRATETTO DA RISTRUTTURARE - 5 vani con giardino Proponiamo in vendita un immobile situato a Santa Maria, in una zona residenziale interna molto tranquilla. Il terratetto è disposto su due livelli ed è composta al piano terra da ingresso nel soggiorno, cucina, bagno e accesso al giardino tergale di circa 75 mq oltre a due locali di deposito; al piano primo ci sono due camere da letto matrimoniali, un balcone oltre ad uno studio/cameretta oltre al bagno 5 vani, distribuiti in modo funzionale 2/3 camere da letto; 2 bagni ABITAZIONE 100 MQ CANTINA - TAVERNA 12 MQ GIARDINO 74 MQ L'immobile è da ristrutturare. Prezzo richiesto: € 200.000 L'indirizzo riportato è indicativo e non corrisponde alla reale ubicazione dell'immobile. Maggiori informazioni verranno fornite telefonicamente. Etica Immobiliare di Riccardo Raugei Via Emilio Bardini, 48 – Empoli (FI) Telefono e whatsapp Non una semplice agenzia immobiliare ma uno studio professionale che può supportarti in ogni fase della compravendita: ✅ Assistenza per mutui e pratiche finanziarie ✅ Supporto tecnico e burocratico ✅ Consulenza per ristrutturazioni e valorizzazione dell’immobile ✅ Collaborazione con professionisti qualificati del territorio ? Scopri il reale valore del tuo immobile con una valutazione professionale e senza impegno: Per maggiori informazioni o per richiedere una valutazione gratuita: 3289442245










