Valutazione immobiliare indipendente, accurata e gratuita
Casa indipendente in vendita a Certaldo a 211.725 € (cod.64fac2c2)
Caasa non ha sufficienti informazioni per commentare la casa indipendente in vendita a Certaldo - 64fac2c2.
Analisi immobiliare
I dati in posseso di Caasa per quest'immobile sono insufficienti, inaffidabili o contraddittori per proporre un'analisi attendibile.
Mercato immobiliare a Certaldo
Per quanto riguarda più in generale la città di Certaldo, sono presenti al momento quasi 500 annunci per
case indipendenti in vendita (meno del 5% dell'intera provincia)
e il maggior numero di annunci per questa tipologia sono relativi alla zona di Fiano.
Possiamo inoltre considerare che in tutta la città negli ultimi 6 mesi, i prezzi per case indipendenti in vendita sono
sostanzialmente stabili (+0,71%).
NOVITÀ Il risultato che vedi dipende dai dati che siamo riusciti ad estrarre dall'annuncio: ottieni una stima più accuranta di questo immobile, inserendo dati più precisi.
N.B. L'Opinione di Caasa® è un servizio sperimentale realizzato tramite tecniche di Intelligenza Artificiale, fornito senza alcuna garanzia di correttezza e completezza. Leggi il disclaimer o segnalaci un problema.
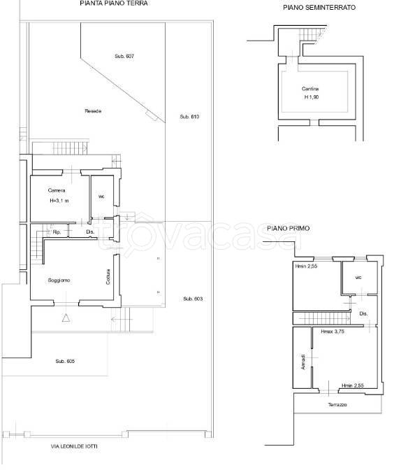
IMMAGINI
IN SINTESI
PROPOSTO DA:
Centro Aste Firenze
DESCRIZIONE
di recente costruzione con giardino in asta giudiziaria di recente costruzione
Asta a Certaldo (FI) [SY450166] Via della Lama, 50052 Certaldo FI, Italia rge 2/2023-1 Porzione di edificio industriale posto nel Comune di Certaldo, Via della Lama, in aderenza ampio appezzamento di terreno Contattaci per fissare una prima consulenz […]
