Valutazione immobiliare indipendente, accurata e gratuita
Casa indipendente in vendita a Cerreto Guidi a 170.000 € (cod.651be102)
Caasa non ha sufficienti informazioni per commentare la casa indipendente in vendita a Cerreto Guidi - 651be102.
Analisi immobiliare
I dati in posseso di Caasa per quest'immobile sono insufficienti, inaffidabili o contraddittori per proporre un'analisi attendibile.
Mercato immobiliare a Cerreto Guidi
Per quanto riguarda più in generale il comune di Cerreto Guidi, sono presenti al momento quasi 500 annunci per
case indipendenti in vendita (meno del 5% dell'intera provincia)
e il maggior numero di annunci per questa tipologia sono relativi alla zona di Stabbia.
Possiamo inoltre considerare che in tutto il comune negli ultimi 6 mesi, i prezzi per case indipendenti in vendita sono
in leggero aumento (+2,29%).
NOVITÀ Il risultato che vedi dipende dai dati che siamo riusciti ad estrarre dall'annuncio: ottieni una stima più accuranta di questo immobile, inserendo dati più precisi.
N.B. L'Opinione di Caasa® è un servizio sperimentale realizzato tramite tecniche di Intelligenza Artificiale, fornito senza alcuna garanzia di correttezza e completezza. Leggi il disclaimer o segnalaci un problema.
IMMAGINI
IN SINTESI
DESCRIZIONE
di nuova costruzione con giardino di nuova costruzione
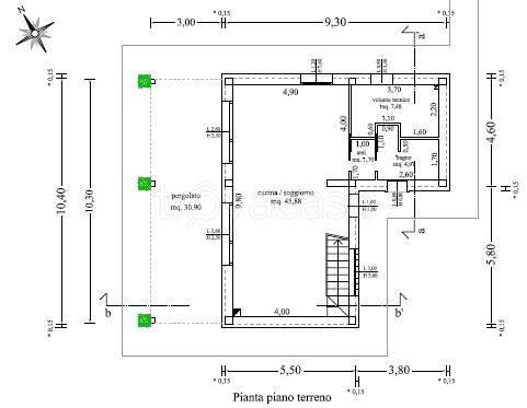
Rif. 1222 Nelle splendide campagne di Cerreto Guidi, ma a due passi dalle maggiori arterie di comunicazione, è proposta la vendita di un fabbricato da demolire con spostamento di volumetria: progetto approvato con oneri assolti per un fienile libero su quattro lati di circa 160 mq con la possibilità di realizzare ulteriori 30 mq circa. Il parco circostante è di circa 2 ettari. L’attuale progetto, che può essere variato, prevede la distribuzione degli spazi su due livelli: al piano terreno rialzato una zona living/pranzo di circa 45 mq con uscita verso un pergolato, bagno, locale tecnico; al primo piano due camere da letto matrimoniali, di cui una con guardaroba, una camera doppia e grande bagno. Possibilità sismabonus. Si precisa che l'indirizzo non identifica l'ubicazione esatta dell'immobile, ai fini della tutela della riservatezza del venditore



