Valutazione immobiliare indipendente, accurata e gratuita
Appartamento in vendita a Campi Bisenzio a 189.731 € (cod.65974bdf)
Caasa non ha sufficienti informazioni per commentare l'appartamento in vendita a Campi Bisenzio - 65974bdf.
Analisi immobiliare
I dati in posseso di Caasa per quest'immobile sono insufficienti, inaffidabili o contraddittori per proporre un'analisi attendibile.
Mercato immobiliare a Campi Bisenzio
Per quanto riguarda più in generale la città di Campi Bisenzio, sono presenti al momento circa mille annunci per
appartamenti in vendita (meno del 5% dell'intera provincia)
e il maggior numero di annunci per questa tipologia sono relativi alla zona di San Donnino.
La dinamica dei prezzi in tutta la città mostra che negli ultimi 6 mesi, i prezzi per appartamenti in vendita sono
in sostanziale aumento (+7,40%).
NOVITÀ Il risultato che vedi dipende dai dati che siamo riusciti ad estrarre dall'annuncio: ottieni una stima più accuranta di questo immobile, inserendo dati più precisi.
N.B. L'Opinione di Caasa® è un servizio sperimentale realizzato tramite tecniche di Intelligenza Artificiale, fornito senza alcuna garanzia di correttezza e completezza. Leggi il disclaimer o segnalaci un problema.
IMMAGINI
IN SINTESI
DESCRIZIONE
di recente costruzione con terrazza con termocondizionamento con balcone di recente costruzione con riscaldamento autonomo in asta giudiziaria
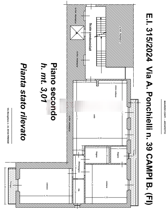
NUOVA PROPOSTA IMMOBILE DISPONIBILE Appartamento sito nel comune di Campi Bisenzio (FI), Via Amilcare Ponchielli Immobile ad uso civile abitazione al piano secondo di edifìciocondominiale su sei livelli fuori terra. L'appartamento risulta composto da tre vani compresa la cucina, oltredoppi servizi e accessori, una terrazza sul vano tergale ed un balcone sul prospettoprincipale. Per te la possibilità di ricevere una consulenza telefonica personalizzata per ottenere un preventivo per il mutuo a condizioni vantaggiose con i nostri partner, il consulente ti fornirà tutte le informazioni e ti guiderà nelle possibilità di aggiudicarti questo affare. L'immobile pubblicato al momento è sottoposto a procedura di vendita legale; Gescom srl è specializzata nella ricerca e pianificazione di investimenti immobiliari secondo innovative strategie di acquisto. Contattaci subito per una consulenza telefonica con uno dei nostri esperti, che ti aiuterà a valutare canali distinti di acquisto dell'immobile, come la procedura di vendita diretta senza ricorrere all'asta (d.lgs. 149/2022) e la possibilità di stralcio immobiliare. Le informazioni sopra riportate non sostituiscono l'avviso pubblicato dal Tribunale competente né l'integrale gestione da parte del delegato designato. Il testo e le specifiche indicate nella presente pagina sono generate automaticamente tramite l'utilizzo di software e/o da A.I. Gescom srl invita a verificare le formazioni e i materiali multimediali sui canali ufficiali, declinando fin d'ora ogni responsabilità su eventuali errori o incongruenze. Gescom srl, leader negli stralci immobiliari e nella consulenza tecnico-legale, non si occupa di attività di intermediazione immobiliare di cui alla legge 39/89. Cl. energ. da verificare. Le foto pubblicate nel presente annuncio sono indicative e non esaustive della tipologia, qualità, consistenza e indicazione geografica dell'immobile. CLASSE ENERGETICA: A





