Valutazione immobiliare indipendente, accurata e gratuita
Casa indipendente a Campi Bisenzio in zona San Giorgio a Colonica a 159.000 € (cod.6581218d)
Caasa non ha sufficienti informazioni per commentare la casa indipendente in zona San Giorgio a Colonica - 6581218d.
Analisi immobiliare
I dati in posseso di Caasa per quest'immobile sono insufficienti, inaffidabili o contraddittori per proporre un'analisi attendibile.
Mercato immobiliare a Campi Bisenzio
Per quanto riguarda più in generale la città di Campi Bisenzio, sono presenti al momento ben oltre mille annunci per
case indipendenti in vendita (meno del 10% dell'intera provincia)
e il maggior numero di annunci per questa tipologia sono relativi alla zona di San Donnino, mentre la zona di San Giorgio a Colonica risulta molto meno attiva considerando il numero di annunci presenti.
La richiesta media nella zona dove sorge la casa indipendente (San Giorgio a Colonica) è pari a
1.780 €/m², di poco superiore al valore della zona Capalle che è la più economica della città .
Relativamente alla dinamica dei prezzi, possiamo dire che negli ultimi 6 mesi i prezzi medi in tutta la città per case indipendenti in vendita sono
in leggero aumento (+2,53%).
NOVITÀ Il risultato che vedi dipende dai dati che siamo riusciti ad estrarre dall'annuncio: ottieni una stima più accuranta di questo immobile, inserendo dati più precisi.
N.B. L'Opinione di Caasa® è un servizio sperimentale realizzato tramite tecniche di Intelligenza Artificiale, fornito senza alcuna garanzia di correttezza e completezza. Leggi il disclaimer o segnalaci un problema.
IMMAGINI
IN SINTESI
PROPOSTO DA:
CASABELLA IMMOBILIARE
DESCRIZIONE
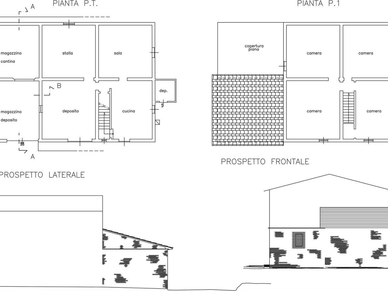
da ristrutturare con giardino da ristrutturare
NOSTRA ESCLUSIVA. Campi Bisenzio, località San Giorgio a Colonica, in contesto tranquillo, riservato e verdeggiante, al tempo stesso vicino al centro abitato, proponiamo in vendita PORZIONE DI COLONICA completamente DA RISTRUTTURARE di 130mq catastali, LIBERA SU 4 LATI, corredata da GIARDINO PRIVATO di circa 500mq. L'immobile si sviluppa su due livelli fuori terra ed è completamente da ristrutturare. Le notevoli dimensioni e l'altezza ne consentono però una personalizzazione e una riprogettazione strutturale sulla base delle proprie esigenze, come ad esempio il frazionamento in più unità abitative o la realizzazione di un ulteriore livello. LIBERO SUBITO. Richiesti euro 159000. Vendesi. Classe Energetica: G



