Valutazione immobiliare indipendente, accurata e gratuita
Appartamento a Campi Bisenzio in zona Sant'Angelo a Lecore a 295.000 € (cod.651c6905)
Caasa non ha sufficienti informazioni per commentare l'appartamento a Campi Bisenzio Sant'Angelo a Lecore - 651c6905.
Analisi immobiliare
I dati in posseso di Caasa per quest'immobile sono insufficienti, inaffidabili o contraddittori per proporre un'analisi attendibile.
Mercato immobiliare a Campi Bisenzio
Per quanto riguarda più in generale la città di Campi Bisenzio, sono presenti al momento oltre 500 annunci per
appartamenti in vendita (meno del 5% dell'intera provincia)
e il maggior numero di annunci per questa tipologia sono relativi alla zona di San Piero a Ponti, mentre nella zona di Sant'Angelo a Lecore è presente un numero significativamente inferiore di annunci.
La richiesta media nella zona dove sorge l'appartamento (Sant'Angelo a Lecore pressi Via Crocicchio dell'Oro) è pari a
3.155 €/m², molto vicina ai valori della zona San Cresci che sono i più alti della città .
Relativamente alla dinamica dei prezzi, possiamo dire che negli ultimi 6 mesi i prezzi medi in tutta la città per appartamenti in vendita sono
sostanzialmente stabili (+0,99%).
NOVITÀ Il risultato che vedi dipende dai dati che siamo riusciti ad estrarre dall'annuncio: ottieni una stima più accuranta di questo immobile, inserendo dati più precisi.
N.B. L'Opinione di Caasa® è un servizio sperimentale realizzato tramite tecniche di Intelligenza Artificiale, fornito senza alcuna garanzia di correttezza e completezza. Leggi il disclaimer o segnalaci un problema.
IMMAGINI
IN SINTESI
PROPOSTO DA:
CASABELLA IMMOBILIARE
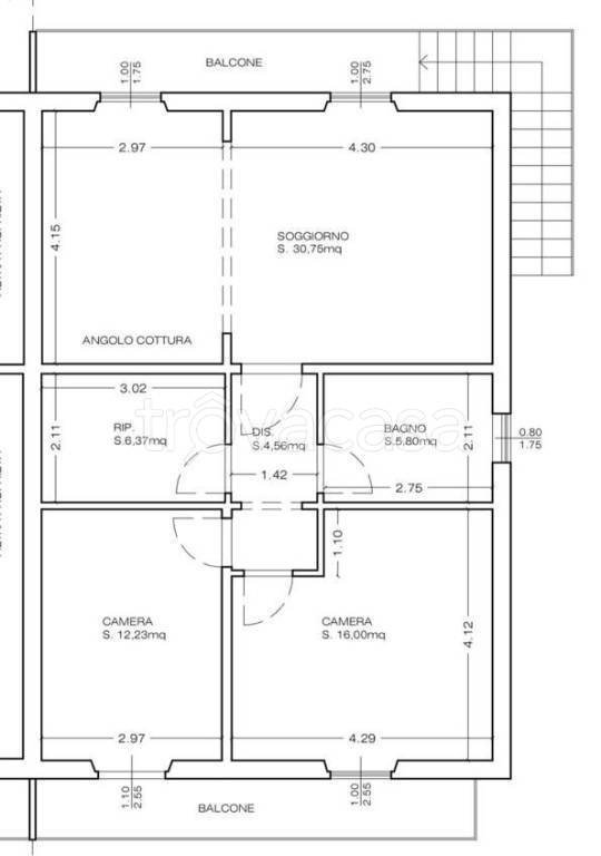
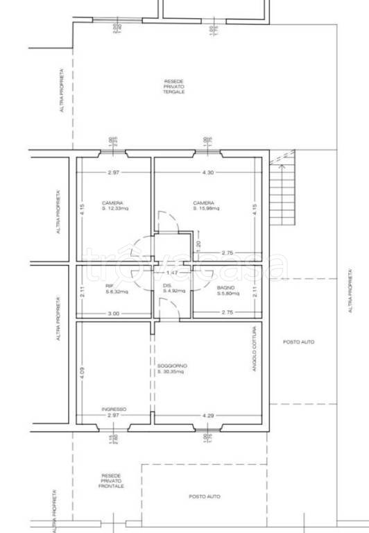
DESCRIZIONE
di nuova costruzione con posto auto con giardino con cantina con garage di recente ristrutturazione di nuova costruzione con angolo cottura
Campi Bisenzio, località Sant'Angelo a Lecore, vicino a farmacia, scuole e principali arterie di scorrimento, proponiamo in vendita delizioso APPARTAMENTO INDIPENDENTE di circa 80mq oltre spazi esterni, sito al PIANO TERRA di una terratetto BIFAMILIARE in fase di COMPLETA RISTRUTTURAZIONE, corredato di un DOPPIO RESEDE e di GARAGE privato. L'immobile, frutto del frazionamento di un più ampio fabbricato su due piani, si compone di entrata indipendente da resede anteriore di circa 20mq, una ampia zona giorno ad OPEN SPACE di doppia metratura con angolo cottura, disimpegno notte, servizio finestrato con doccia, ripostiglio e due camere da letto matrimoniali entrambe dotate di portafinestra per accedere al resede privato tergale di circa 80mq. Completa la proprietà un garage di 24mq situato dietro al suddetto resede. Possibilità di monetizzare un posto auto scoperto all'interno della proprietà. Ottime rifiniture, con opportunità di personalizzazione. Richiesti euro 295000. VENDESI. Classe Energetica: A



