Valutazione immobiliare indipendente, accurata e gratuita
L'Opinione di Caasa® per l'appartamento in vendita a Calenzano a 460.000 € (cod.64fae9a8)
Secondo Caasa, per l'appartamento in vendita a Calenzano, la richiesta di 460.000 € è equilibrata rispetto agli annunci simili.
Analisi immobiliare
L'appartamento, situato nella zona OMI B2, è proposto in vendita a
460.000 € per una
superficie commerciale di
86 m² e quindi ad un prezzo per metro quadrato pari a
5348 €/m²
.
Questo valore
è perfettamente allineato a quello stimato da Caasa per immobili in vendita simili per tipologia, caratteristiche, classe energetica e localizzati nella stessa zona OMI, che è compreso tra
5.136 €/m² e
5.441 €/m².
La conoscenza con buona approssimazione della localizzazione dell'immobile ha consentito di utilizzare come raffronto i dati medi elaborati esattamente nella zona OMI di appertenenza (CAPOLUOGO). Inoltre, Caasa ha potuto affinare la stima anche con la conoscenza della classe energetica (A+) oltre che dello stato dell'immobile (di nuova costruzione) e di alcune caratteristiche significative come il garage o la disponibilità di una cantina. Per questi motivi è possibile considerare un intervallo di valori accettabili per l'offerta abbastanza limitato.
Mercato immobiliare a Calenzano
Per quanto riguarda più in generale la città di Calenzano, sono presenti al momento più di 300 annunci per
appartamenti in vendita (meno del 5% dell'intera provincia)
e il maggior numero di annunci per questa tipologia sono relativi alla zona di Settimello.
Per quanto riguarda la dinamica dei prezzi, negli ultimi 6 mesi i prezzi medi in tutta la città per appartamenti in vendita sono
in sostanziale aumento (+7,20%).
NOVITÀ Il risultato che vedi dipende dai dati che siamo riusciti ad estrarre dall'annuncio: ottieni una stima più accuranta di questo immobile, inserendo dati più precisi.
N.B. L'Opinione di Caasa® è un servizio sperimentale realizzato tramite tecniche di Intelligenza Artificiale, fornito senza alcuna garanzia di correttezza e completezza. Leggi il disclaimer o segnalaci un problema.
IMMAGINI
IN SINTESI
PROPOSTO DA:
IMMOBILIARE ZOPPI
DESCRIZIONE
di nuova costruzione con posto auto con cantina con garage con giardino di nuova costruzione con angolo cottura con termocondizionamento
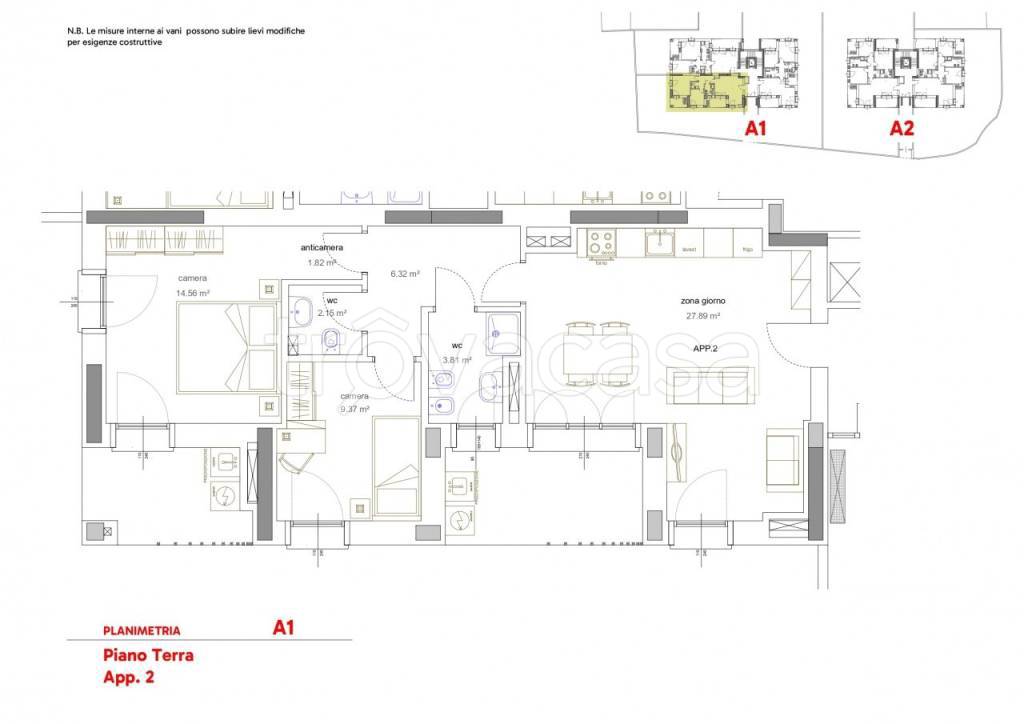
Rif.585Z Calenzano, in zona centrale prossima ai principali servizi, proponiamo in vendita trilocale di NUOVA costruzione. L'immobile posto al piano terra sviluppa una superficie di mq 86,00 ed è composto da luminoso soggiorno con angolo cottura, spaziosa camera matrimoniale, cameretta e due bagni di cui uno finestrato. Completa la proprietà ampio spazio esterno in parte pavimentato e in parte destinato a giardino di circa mq 180,00 oltre cantina di circa mq 9,00 e posto auto coperto. Ottimo capitolato con riscaldamento a pavimento, climatizzazione di serie, cappotto termico e infissi in legno con vetrocamera a taglio termico e acustico. La consegna è prevista entro fine 2026. SCONTO SISMA BONUS: EURO 34.560,00 detraibili in 10 anni su IRPEF. Richiesta Euro 460.000,00. Maggiori informazioni, piantine, progetto e rendering in agenzia. Rif.585Z PER QUALSIASI INFORMAZIONE CONTATTARE AGENZIA IMMOBILIARE ZOPPI SAS 055/8879255 - 055/8877483 info@immobiliarezoppi.it www.immobiliarezoppi.it


