Valutazione immobiliare indipendente, accurata e gratuita
L'Opinione di Caasa® per la casa indipendente in vendita a Borgo San Lorenzo a 475.000 € (cod.65235698)
Secondo Caasa, per la casa indipendente in vendita a Borgo San Lorenzo, la richiesta di 475.000 € è leggermente vantaggiosa rispetto agli annunci simili.
Analisi immobiliare
La casa indipendente è proposta in vendita (da gabriele bonaccorsi) a
475.000 € per una
superficie commerciale di
220 m² e quindi ad un prezzo per metro quadrato pari a
2159 €/m²
.
Questo valore
è di poco inferiore a quello stimato da Caasa per immobili in vendita simili per tipologia, caratteristiche e classe energetica, che è compreso tra
2.447 €/m² e
2.693 €/m².
Sono stati utilizzati in raffronto i soli valori medi cittadini per case indipendenti (da 1.295 €/m² a 2.520 €/m²) e per case semindipendenti (da 1.250 €/m² a 2.445 €/m²), visto che non è stato possibile determinare in modo affidabile la posizione dell'immobile. All'elaborazione della stima ha però contribuito anche la classe energetica (A) oltre alla presenza di alcune caratteristiche significative come il garage o la disponibilità di una cantina. Per queste considerazioni l'intervallo dei valori considerati accettabili per l'offerta è comunque ampio.
Mercato immobiliare a Borgo San Lorenzo
Per quanto riguarda più in generale la città di Borgo San Lorenzo, sono presenti al momento più di 300 annunci per
case indipendenti in vendita (meno del 5% dell'intera provincia)
e il maggior numero di annunci per questa tipologia sono relativi alla zona di Ronta.
Per quanto riguarda la dinamica dei prezzi, negli ultimi 6 mesi i prezzi medi in tutta la città per case indipendenti in vendita sono
in aumento (+4,85%).
NOVITÀ Il risultato che vedi dipende dai dati che siamo riusciti ad estrarre dall'annuncio: ottieni una stima più accuranta di questo immobile, inserendo dati più precisi.
N.B. L'Opinione di Caasa® è un servizio sperimentale realizzato tramite tecniche di Intelligenza Artificiale, fornito senza alcuna garanzia di correttezza e completezza. Leggi il disclaimer o segnalaci un problema.
IMMAGINI
IN SINTESI
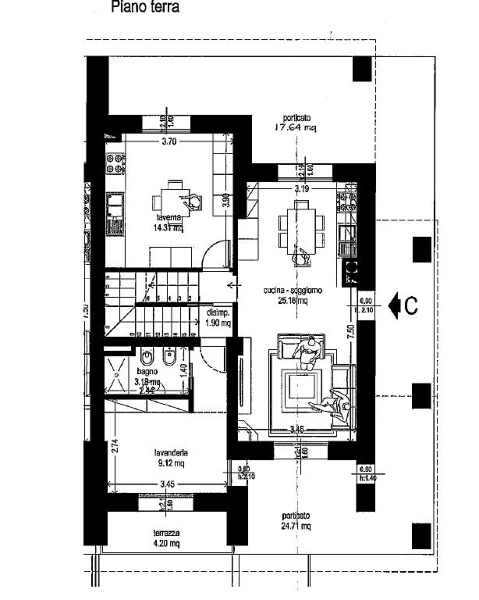
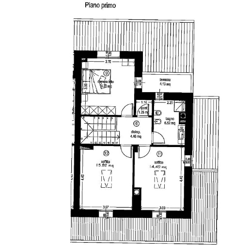
DESCRIZIONE
con giardino con cantina con posto auto con termocondizionamento con terrazza con garage
A due passi dal Paese, in un contesto molto tranquillo e signorile, esposizione ottima, favoloso terratetto libero su 3 lati con ingresso indipendente. L'immobile di 220 mq è suddiviso su 3 livelli: piano terra (sala pranzo, cucina, bagno e lavanderia), piano primo (bagno, terrazza, 3 camere, ripostiglio, terrazza) e piano seminterrato ( garage, taverna e bagno). La proprietà comprende inoltre un bellissimo giardino su 3 lati di 550 mq. Qualità delle rifiniture, la cura per i dettagli, la ++++, riscaldamento a pavimento con pannelli radianti, tetto ventilato, cappotto esterno, pannelli solari, caldaia a condensazione, cisterna accumulo acque pluviali. Per maggiori informazioni rivolgersi in agenzia. Classe Energetica: Non soggetto



