Valutazione immobiliare indipendente, accurata e gratuita
Casa indipendente a Barberino Tavarnelle Tavarnelle Val di Pesa a 390.000 € (cod.658f0a05)
Caasa non ha sufficienti informazioni per commentare la casa indipendente in zona Tavarnelle Val di Pesa - 658f0a05.
Analisi immobiliare
I dati in posseso di Caasa per quest'immobile sono insufficienti, inaffidabili o contraddittori per proporre un'analisi attendibile.
Mercato immobiliare a Barberino Tavarnelle
Per quanto riguarda più in generale il comune di Barberino Tavarnelle, sono presenti al momento più di 200 annunci per
case indipendenti in vendita (meno del 5% dell'intera provincia)
e il maggior numero di annunci per questa tipologia sono relativi proprio alla zona di Tavarnelle Val di Pesa.
La richiesta media nella zona dove sorge la casa indipendente (Tavarnelle Val di Pesa) è pari a
2.530 €/m², molto vicina ai valori della zona San Donato in Poggio che sono i più alti del comune .
Relativamente alla dinamica dei prezzi, possiamo dire che negli ultimi 6 mesi i prezzi medi in tutto il comune per case indipendenti in vendita sono
in calo (-4,90%).
NOVITÀ Il risultato che vedi dipende dai dati che siamo riusciti ad estrarre dall'annuncio: ottieni una stima più accuranta di questo immobile, inserendo dati più precisi.
N.B. L'Opinione di Caasa® è un servizio sperimentale realizzato tramite tecniche di Intelligenza Artificiale, fornito senza alcuna garanzia di correttezza e completezza. Leggi il disclaimer o segnalaci un problema.
IMMAGINI
IN SINTESI
DESCRIZIONE
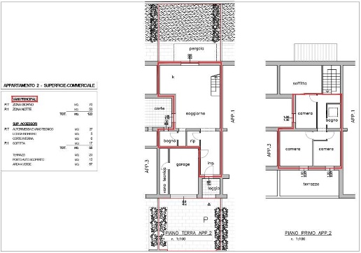
di nuova costruzione con giardino con posto auto di recente ristrutturazione con cantina con garage con terrazza con caminetto di nuova costruzione
Il progetto è interessante per la rarità del connubio tra indipendenza di ogni unità e l' altissima efficienza energetica. L'intervento nasce da una ristrutturazione integrale che segue standard qualitativi d'eccellenza, offrendo il fascino del recupero architettonico unito alle più moderne tecnologie costruttive. • Tipologia: Terratetti cielo-terra indipendenti. • Plus Esterni: Giardini esclusivi e terrazzi abitabili per ogni unità. • Parcheggio: Garage privato e/o posto auto di proprietà. • Sostenibilità: Classe energetica prevista A (massimo comfort termico e acustico). • Personalizzazione: Ampio capitolato per la scelta delle finiture interne. Focus Unità 2: La Sintesi Perfetta tra rapporto qualità-prezzo e panorama L'Unità 2 si distingue perché ha un ottimo rapporto qualità e per la vista panoramica che la contraddistingue , ideale per una famiglia che cerca privacy e ampi spazi e un giardino che arricchisca la vita di momenti preziosi. Piano Terra (Living & Garden) – MQ 70 L'ingresso si apre su un'ampia zona living pensata come un open space luminoso. • Zona Giorno: Soggiorno doppio con accesso diretto alla pergola esterna e al grande giardino privato di 87 mq, perfetto per pranzi all'aperto e relax. • Cucina e Servizi: Area cucina funzionale, bagno di servizio finestrato e comodo ripostiglio. • Accessori: Accesso interno diretto al Garage di 27 mq (un lusso urbano raro) e vano tecnico. • Corte Interna: Una chiostrina che garantisce luce zenitale e ricambio d'aria naturale, creando una sorta fi effetto camino. Piano Primo (Zona Notte & Terrazza) – MQ 53 La scala interna conduce al piano superiore, dedicato alla massima riservatezza: • 3 Camere da Letto: Ben illuminate, di cui due con affaccio sulla terrazza abitabile. • Terrazzo Abitabile (MQ 23): Un vero solarium privato che serve la zona notte. • Bagno Principale: Finiture a scelta tra le molte possibilità, è illuminato da un lucernario che garantisce la massima arredabilità di tutte le pareti e privacy massima. • Soffitta (MQ 17): Spazio accesso[…]



