Valutazione immobiliare indipendente, accurata e gratuita

L'Opinione di Caasa® per l'appartamento in vendita a Barberino Tavarnelle in zona Monsanto a 258.495 € (cod.64eb6789)

Secondo Caasa, per l'appartamento a Barberino Tavarnelle Monsanto, la richiesta di 258.495 € è leggermente vantaggiosa rispetto agli annunci simili.

Analisi immobiliare
L'appartamento, situato nella zona OMI R1, è proposto in vendita a 258.495 € per una superficie commerciale di 123 m² e quindi ad un prezzo per metro quadrato pari a 2101 €/m² .
Tale prezzo è di poco inferiore a quello stimato da Caasa per immobili in vendita simili per tipologia, caratteristiche, classe energetica e zona, che è compreso tra 2.195 €/m² e 2.450 €/m². Presa in considerazione la posizione dell'appartamento si sono utilizzati in raffronto i valori medi nelle zone limitrofe . Ad affinare la stima ha contribuito anche la classe energetica (G) oltre alla conoscenza di alcune caratteristiche significative come il garage. In virtù di queste considerazioni i valori accettabili per l'offerta costituiscono un intervallo relativamente limitato.

Mercato immobiliare a Barberino Tavarnelle
Per quanto riguarda più in generale il comune di Barberino Tavarnelle, sono presenti al momento più di 200 annunci per appartamenti in vendita (meno dell'1% dell'intera provincia) e il maggior numero di annunci per questa tipologia sono relativi alla zona di Tavarnelle Val di Pesa, mentre la zona di Monsanto risulta molto meno attiva considerando il numero di annunci presenti.

Relativamente alla dinamica dei prezzi, possiamo dire che negli ultimi 6 mesi i prezzi medi in tutto il comune per appartamenti in vendita sono in sostanziale aumento (+6,10%).

NOVITÀ Il risultato che vedi dipende dai dati che siamo riusciti ad estrarre dall'annuncio: ottieni una stima più accuranta di questo immobile, inserendo dati più precisi.

N.B. L'Opinione di Caasa® è un servizio sperimentale realizzato tramite tecniche di Intelligenza Artificiale, fornito senza alcuna garanzia di correttezza e completezza. Leggi il disclaimer o segnalaci un problema.

IMMAGINI

IN SINTESI

Prezzo:
258.495 €
Superficie:
123 m²
Prezzo al m²:
2101 €/m²
Piano:
terra
Bagni:
2
Classe energetica:
G
Città:
Barberino Tavarnelle (FI)
Zona OMI:
R1 (RESTO DEL TERRITORIO - BARBERINO VAL D`ELSA)
Indirizzo:
Pubblicato:
ven 6 giugno 2025

PROPOSTO DA:

22 REB

DESCRIZIONE

con posto auto con garage con terrazza

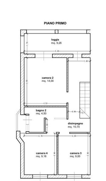
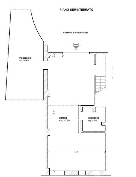
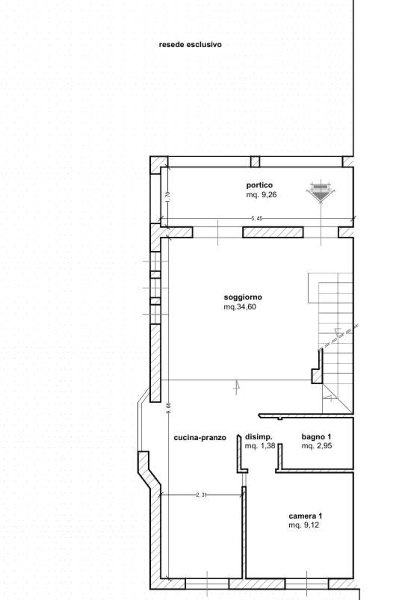
Appartamento situato a Barberino Tavarnelle (FI), sviluppato su due piani è così composto: al piano terra un ampio soggiorno con zona cucina e sala da pranzo, un disimpegno, una camera da letto e un bagno con loggia. Al primo piano troviamo tre camere da letto, un bagno, un disimpegno e una loggia, infine al piano interrato un locale lavanderia, un garage e un magazzino. 22REB è a disposizione per valutare come la nostra esperienza potrà favorirti nel realizzare il tuo miglior investimento.
 L'immobile è oggetto di vendita giudiziaria. 22REB non si occupa di attività di intermediazione imm. di cui alla legge 39/89.
 Per motivi di privacy la foto dell'immobile/terreno è indicativa ma non esaustiva

  • yescasa.it
  • annuncio-casa.it
  • bachecacase.com
  • bilocale.it