Valutazione immobiliare indipendente, accurata e gratuita
Appartamento in vendita a Barberino di Mugello a 145.000 € (cod.64f3acf3)
Caasa non ha sufficienti informazioni per commentare l'appartamento in vendita a Barberino di Mugello - 64f3acf3.
Analisi immobiliare
I dati in posseso di Caasa per quest'immobile sono insufficienti, inaffidabili o contraddittori per proporre un'analisi attendibile.
Mercato immobiliare a Barberino di Mugello
Per quanto riguarda più in generale il comune di Barberino di Mugello, sono presenti al momento più di 150 annunci per
appartamenti in vendita (meno dell'1% dell'intera provincia)
e il maggior numero di annunci per questa tipologia sono relativi alla zona di Galliano.
La dinamica dei prezzi in tutto il comune mostra che negli ultimi 6 mesi, i prezzi per appartamenti in vendita sono
in sostanziale aumento (+6,37%).
NOVITÀ Il risultato che vedi dipende dai dati che siamo riusciti ad estrarre dall'annuncio: ottieni una stima più accuranta di questo immobile, inserendo dati più precisi.
N.B. L'Opinione di Caasa® è un servizio sperimentale realizzato tramite tecniche di Intelligenza Artificiale, fornito senza alcuna garanzia di correttezza e completezza. Leggi il disclaimer o segnalaci un problema.
IMMAGINI
IN SINTESI
PROPOSTO DA:
Immobili Toscani di Guasti Silvio e C. s.n.c.
Via Masaccio, 115, Firenze (FI)
Verificata da Caasa®
DESCRIZIONE
di recente ristrutturazione di recente ristrutturazione
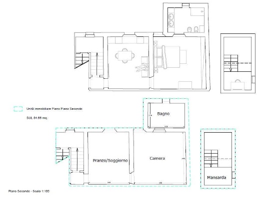
ITDF2678 - L'APPARTAMENTO Grande BILOCALE di ben 85 mq con MANSARDA. Piano secondo di una palazzina oggetto di COMPLETA RISTRUTTURAZIONE nel centro di Barberino. Zona giorno all'ingresso con grande spazio SALONE/CUCINA. Da una parte CAMERA MATRIMONIALE molto ampia con bagno finestrato veramente spazioso e dall'altra l'accesso al livello superiore a una caratteristica MANSARDA. L'appartamento ha ampie finestre ed è molto luminoso. POSIZIONE Centro storico in ottima posizione con facilità di accesso e prossimità con tutti i principali servizi. IDEALE PER Soluzione abitativa ideale per una/due persone. Ottimo anche per investimento. Le immagini hanno solo uno scopo illustrativo. Le raffigurazioni hanno pura funzione dimostrativa non hanno nessun valore contrattuale. Per motivi di privacy, l'ubicazione dell'immobile verrà data solo su contatto diretto, ma si precisa che l'immobile è nelle immediate vicinanze. Per fissare un appuntamento contatta lo 055 286833 oppure scrivi una mail a richieste@immobilitoscani.it Clicca la nostra pagina Facebook https://www.facebook.com/immobilifirenze/ e potrai essere aggiornato su tutte le notizie utili e le curiosità del mercato immobiliare. Classe Energetica: B

