Valutazione immobiliare indipendente, accurata e gratuita
Negozio in vendita a San Giovanni Valdarno a 325.000 € (cod.6505d5ff)
Caasa non ha sufficienti informazioni per commentare il negozio in vendita a San Giovanni Valdarno - 6505d5ff.
Analisi immobiliare
I dati in posseso di Caasa per quest'immobile sono insufficienti, inaffidabili o contraddittori per proporre un'analisi attendibile.
Mercato immobiliare a San Giovanni Valdarno
Per quanto riguarda più in generale la città di San Giovanni Valdarno, sono presenti al momento circa cento annunci per
negozi in vendita (meno del 10% dell'intera provincia) .
Vedi altre informazioni direttamente su
Mercato-Immobiliare.info
NOVITÀ Il risultato che vedi dipende dai dati che siamo riusciti ad estrarre dall'annuncio: ottieni una stima più accuranta di questo immobile, inserendo dati più precisi.
N.B. L'Opinione di Caasa® è un servizio sperimentale realizzato tramite tecniche di Intelligenza Artificiale, fornito senza alcuna garanzia di correttezza e completezza. Leggi il disclaimer o segnalaci un problema.
IMMAGINI
IN SINTESI
PROPOSTO DA:
CENTRO IMMOBILIARE VALDARNO S.R.L.
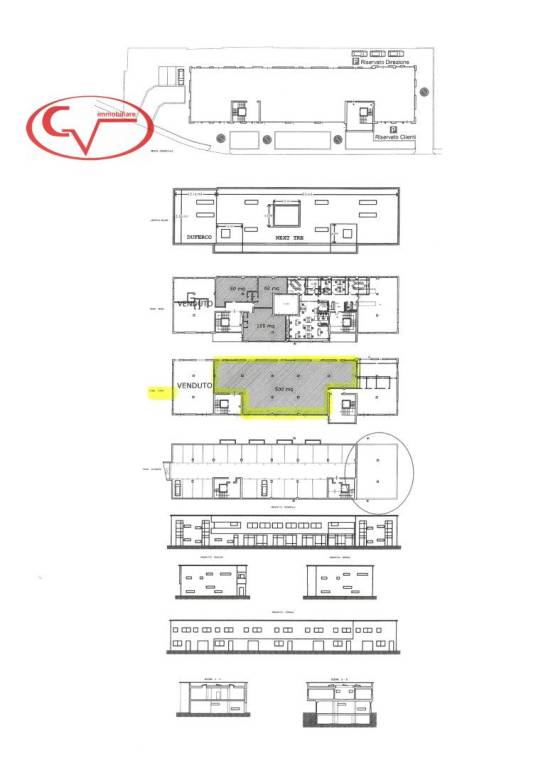
DESCRIZIONE
di recente ristrutturazione con posto auto con garage di recente ristrutturazione
San Giovanni Valdarno, in zona di recente e forte espansione commerciale, al piano terra, porzione di edificio 500mq ad uso commerciale/direzionale. Molto luminoso, con vetrine ed accessi fronte strada ed ulteriori accessi anche sul retro, compresi quelli carico/scarico. L'immobile, con copertura recentemente rifatta, verrà consegnato allo stato grezzo internamente ma con le aree a comune ristrutturate (facciata, aiuole, vano scale, percorsi carico/scarico). Zona seminterrata ed accesso al seminterrato stesso da terminare. Il prezzo indicato si riferisce alla vendita dell'intera porzione; possibilità di frazionamento con prezzo finale variabile in base alle superfici acquistate (superficie minima acquistabile: 150 mq) Piano seminterrato dedicato a garages/posti auto distribuiti, in locazione, proporzionalmente alle superfici acquistate con prezzo da concordare. (L'immagine dell'esterno è virtuale) Giudizio ottimo





