Valutazione immobiliare indipendente, accurata e gratuita
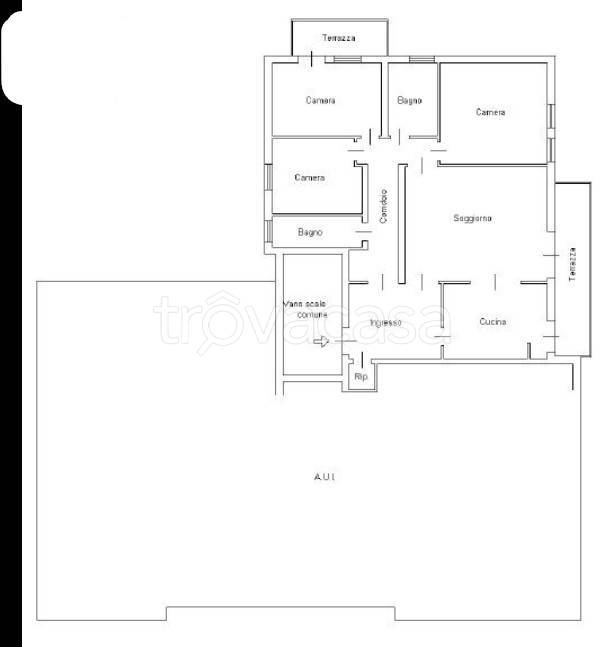
Casa indipendente in vendita a Montevarchi in zona Levanella (cod.651b8d2b)
Caasa non ha sufficienti informazioni per commentare la casa indipendente a Montevarchi in zona Levanella - 651b8d2b.
Analisi immobiliare
I dati in posseso di Caasa per quest'immobile sono insufficienti, inaffidabili o contraddittori per proporre un'analisi attendibile.
Mercato immobiliare a Montevarchi
Per quanto riguarda più in generale la città di Montevarchi, sono presenti al momento oltre 500 annunci per
case indipendenti in vendita (meno del 10% dell'intera provincia)
e il maggior numero di annunci per questa tipologia sono relativi alla zona di Levane, mentre nella zona di Levanella è presente un numero significativamente inferiore di annunci.
La richiesta media nella zona dove sorge la casa indipendente (Levanella) è pari a
1.640 €/m² e ne fa la più pregiata della città .
La dinamica dei prezzi in tutta la città mostra che negli ultimi 6 mesi, i prezzi per case indipendenti in vendita sono
sostanzialmente stabili (+0,90%).
NOVITÀ Il risultato che vedi dipende dai dati che siamo riusciti ad estrarre dall'annuncio: ottieni una stima più accuranta di questo immobile, inserendo dati più precisi.
N.B. L'Opinione di Caasa® è un servizio sperimentale realizzato tramite tecniche di Intelligenza Artificiale, fornito senza alcuna garanzia di correttezza e completezza. Leggi il disclaimer o segnalaci un problema.
IMMAGINI
IN SINTESI
PROPOSTO DA:
Simplex Domus S.R.L.
DESCRIZIONE
di recente costruzione di recente costruzione in asta giudiziaria
Montevarchi (AR) [SY535613] Levanella, 52025 Montevarchi AR, Italia rge 44/2020-3 Terreno edificabile di mq 1.489. Possibilità di acquisto immobiliare prima dell'asta. PER MAGGIORI INFORMAZIONI PUOI CONTATTARE IL NOSTRO REFERENTE DI ZONA . RESPONSABI […]
