Valutazione immobiliare indipendente, accurata e gratuita
Casa indipendente in vendita a Montevarchi in zona Levane a 190.000 € (cod.64eb5fe8)
Caasa non ha sufficienti informazioni per commentare la casa indipendente a Montevarchi in zona Levane - 64eb5fe8.
Analisi immobiliare
I dati in posseso di Caasa per quest'immobile sono insufficienti, inaffidabili o contraddittori per proporre un'analisi attendibile.
Mercato immobiliare a Montevarchi
Per quanto riguarda più in generale la città di Montevarchi, sono presenti al momento quasi 500 annunci per
case indipendenti in vendita (meno del 10% dell'intera provincia)
e il maggior numero di annunci per questa tipologia sono relativi proprio alla zona di Levane.
La richiesta media nella zona dove sorge la casa indipendente (Levane pressi Via della Costa) è pari a
1.470 €/m², molto vicina ai valori della zona Levanella che sono i più alti della città .
Per quanto riguarda la dinamica dei prezzi, negli ultimi 6 mesi i prezzi medi in tutta la città per case indipendenti in vendita sono
in leggero aumento (+2,29%).
NOVITÀ Il risultato che vedi dipende dai dati che siamo riusciti ad estrarre dall'annuncio: ottieni una stima più accuranta di questo immobile, inserendo dati più precisi.
N.B. L'Opinione di Caasa® è un servizio sperimentale realizzato tramite tecniche di Intelligenza Artificiale, fornito senza alcuna garanzia di correttezza e completezza. Leggi il disclaimer o segnalaci un problema.
IMMAGINI
IN SINTESI
DESCRIZIONE
di nuova costruzione con cantina di nuova costruzione
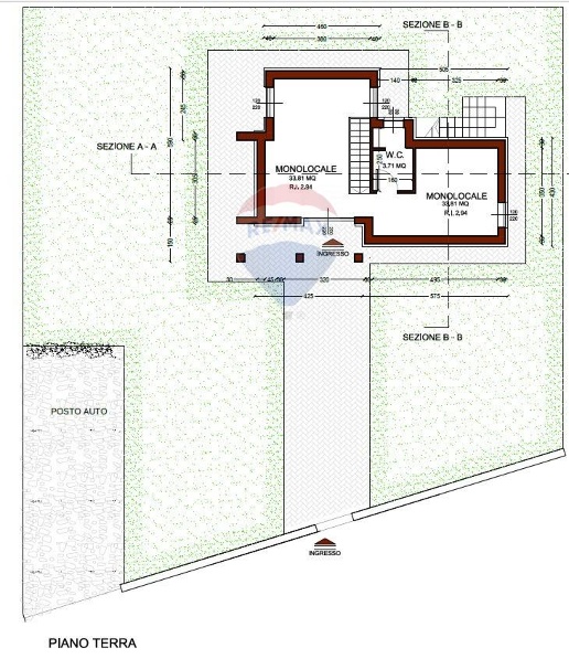
Levane Villetta in costruzione con vista panoramica sul Valdarno Remax propone in vendita una villetta indipendente in fase di costruzione, situata in Via della Costa a Levane, in posizione panoramica con vista mozzafiato sulla vallata del Valdarno. L immobile si sviluppa su un unico livello fuori terra di 50 mq, composto da un open space con zona giorno, camera da letto e bagno. Una scala interna conduce al piano interrato, della stessa superficie (50 mq), dove si trova un ampio locale cantina realizzato in cemento armato, conforme alla normativa antisismica vigente. Progetto di ampliamento in corso: è attualmente in attesa di approvazione una variante al piano regolatore che prevede la possibilità di ampliare il piano terra di ulteriori 30 mq, con la realizzazione di due stanze aggiuntive, come evidenziato in giallo nella piantina allegata. In merito alla possibilità di ampliamento edilizio, l´approvazione della variante al nuovo piano regolatore é in corso, a causa della sovrapposizione tra il vecchio e il nuovo piano regolatore, è stata temporaneamente inibita la possibilità di ampliamenti fino a 30 mq. Completa la proprietà un terreno di 3.150 mq, ideale per chi desidera vivere immerso nella natura con ampi spazi esterni a disposizione. Sono inclusi nel prezzo di vendita gli oneri ed il progetto allo stato attuale. Disclaimer: Le informazioni presenti sono fornite a scopo promozionale e non costituiscono offerta contrattuale. Gradita collaborazione con altre agenzie


