Valutazione immobiliare indipendente, accurata e gratuita
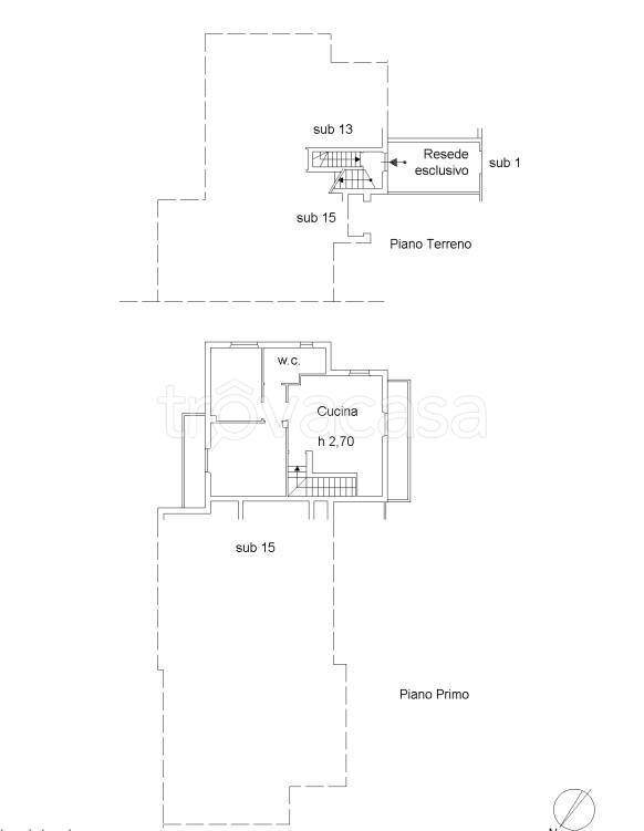
Locale commerciale in vendita a Monte San Savino in zona Verniana a 14.040 € (cod.658a5e52)
Caasa non ha sufficienti informazioni per commentare il locale commerciale a Monte San Savino Verniana - 658a5e52.
Analisi immobiliare
I dati in posseso di Caasa per quest'immobile sono insufficienti, inaffidabili o contraddittori per proporre un'analisi attendibile.
Mercato immobiliare a Monte San Savino
Per quanto riguarda più in generale il comune di Monte San Savino, sono presenti al momento più di dieci annunci per
locali commerciali in vendita (meno del 10% dell'intera provincia)
e il maggior numero di annunci per questa tipologia sono relativi alla zona di Alberoro, mentre nella zona di Verniana è presente un numero significativamente inferiore di annunci.
NOVITÀ Il risultato che vedi dipende dai dati che siamo riusciti ad estrarre dall'annuncio: ottieni una stima più accuranta di questo immobile, inserendo dati più precisi.
N.B. L'Opinione di Caasa® è un servizio sperimentale realizzato tramite tecniche di Intelligenza Artificiale, fornito senza alcuna garanzia di correttezza e completezza. Leggi il disclaimer o segnalaci un problema.
IMMAGINI
IN SINTESI
PROPOSTO DA:
Simplex Domus S.R.L.
DESCRIZIONE
di recente costruzione di recente costruzione in asta giudiziaria
Monte San Savino (AR) [SY500359] Località Verniana, 52048 Monte San Savino AR, Italia rge 4/2016 - 1 Edificio per rimessaggio, monopiano e con unico locale di circa 62,42 mq. Possibilità di acquisto immobiliare prima dell'asta. PER MAGGIORI INFORMAZI […]
