Valutazione immobiliare indipendente, accurata e gratuita
Appartamento in vendita a Foiano della Chiana a 135.054 € (cod.659c6a9c)
Caasa non ha sufficienti informazioni per commentare l'appartamento in vendita a Foiano della Chiana - 659c6a9c.
Analisi immobiliare
I dati in posseso di Caasa per quest'immobile sono insufficienti, inaffidabili o contraddittori per proporre un'analisi attendibile.
Mercato immobiliare a Foiano della Chiana
Per quanto riguarda più in generale il comune di Foiano della Chiana, sono presenti al momento più di 300 annunci per
appartamenti in vendita (meno del 5% dell'intera provincia) .
Per quanto riguarda la dinamica dei prezzi, negli ultimi 6 mesi i prezzi medi in tutto il comune per appartamenti in vendita sono
sostanzialmente stabili (-0,47%).
NOVITÀ Il risultato che vedi dipende dai dati che siamo riusciti ad estrarre dall'annuncio: ottieni una stima più accuranta di questo immobile, inserendo dati più precisi.
N.B. L'Opinione di Caasa® è un servizio sperimentale realizzato tramite tecniche di Intelligenza Artificiale, fornito senza alcuna garanzia di correttezza e completezza. Leggi il disclaimer o segnalaci un problema.
IMMAGINI
IN SINTESI
PROPOSTO DA:
RE/MAX Professional
DESCRIZIONE
di recente ristrutturazione con posto auto con garage con giardino con cantina con terrazza di recente ristrutturazione con termocondizionamento in asta giudiziaria con riscaldamento autonomo
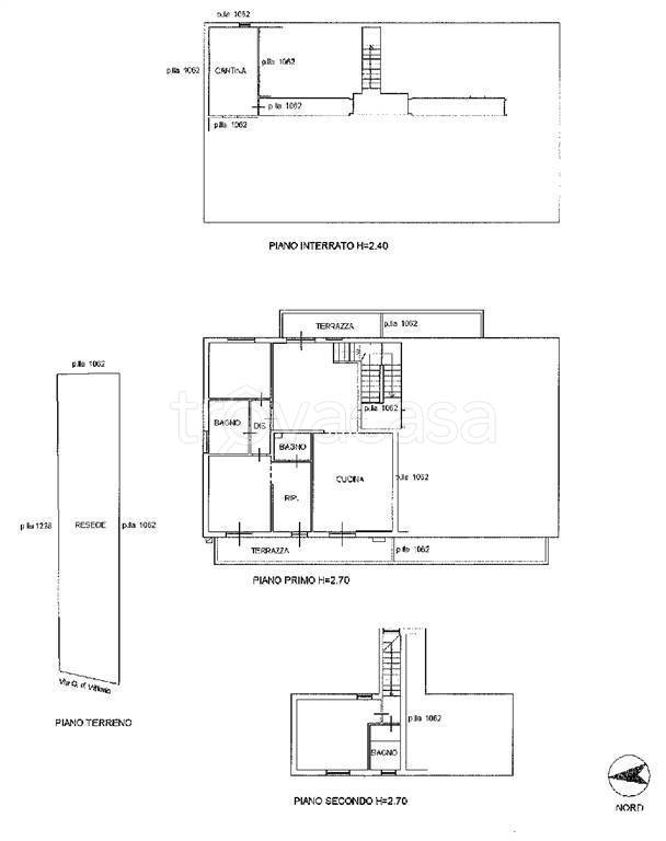
Appartamento in Via Giuseppe Di Vittorio 90, Foiano della Chiana, disposto su due livelli e composto da soggiorno, cucina, camere e servizi, con terrazze, garage e resede esclusivo. All'interno di un fabbricato realizzato in area P.E.E.P., proponiamo un appartamento sviluppato tra piano primo e secondo, caratterizzato da spazi ampi e ben distribuiti, corredato da cantina al piano seminterrato, garage e resede esclusivo al piano terra. L'abitazione si distingue per una distribuzione interna funzionale e per finiture curate, frutto di una ristrutturazione relativamente recente. Gli ambienti risultano luminosi e ben organizzati, con presenza di più servizi igienici, due terrazze, una sul fronte principale e una sul retro, e una scala interna rifinita in marmo che collega i livelli. Le pavimentazioni alternano parquet e ceramica, mentre i bagni sono completi e rifiniti con elementi di buona qualità, tra cui vasca idromassaggio nel bagno principale. Il resede esclusivo, accessibile dal piano terra, è costituito da una porzione di terreno rialzata e recintata, in parte piantumata con ulivi, che offre uno spazio esterno riservato. Completano la proprietà una cantina e un garage al piano seminterrato. L'immobile dispone inoltre di impianto di riscaldamento autonomo, aria condizionata e impianti certificati. Sono comprese nella vendita anche quote di proprietà su aree e spazi comuni condominiali, come meglio specificato nella documentazione tecnica. Una soluzione interessante per chi cerca una casa pronta da vivere, con spazi accessori e comfort, in un contesto residenziale ben collegato. . -- PROFESSIONE ASTE -- L'immobile viene venduto dal Tribunale tramite asta giudiziaria e questo annuncio non vuole essere sostitutivo dei documenti ufficiali relativi alla vendita giudiziaria. Professione Aste è una società di consulenza che accompagna il cliente in tutto il percorso relativo all'acquisto di un immobile in asta giudiziaria, con l'unico obiettivo di massimizzare il rapporto qualità prezzo per l'utente finale. Se[…]

