Valutazione immobiliare indipendente, accurata e gratuita
Appartamento in vendita a Cortona in zona Ossaia (cod.6592fa8a)
Caasa non ha sufficienti informazioni per commentare l'appartamento in vendita a Cortona in zona Ossaia - 6592fa8a.
Analisi immobiliare
I dati in posseso di Caasa per quest'immobile sono insufficienti, inaffidabili o contraddittori per proporre un'analisi attendibile.
Mercato immobiliare a Cortona
Per quanto riguarda più in generale la città di Cortona, sono presenti al momento oltre 500 annunci per
appartamenti in vendita (meno del 10% dell'intera provincia)
e il maggior numero di annunci per questa tipologia sono relativi alla zona di Casale, mentre la zona di Ossaia risulta molto meno attiva considerando il numero di annunci presenti.
La richiesta media nella zona dove sorge l'appartamento (Ossaia) è pari a
2.200 €/m², molto vicina ai valori della zona Casale che sono i più alti della città .
Possiamo inoltre considerare che in tutta la città negli ultimi 6 mesi, i prezzi per appartamenti in vendita sono
in leggera diminuzione (-2,45%).
NOVITÀ Il risultato che vedi dipende dai dati che siamo riusciti ad estrarre dall'annuncio: ottieni una stima più accuranta di questo immobile, inserendo dati più precisi.
N.B. L'Opinione di Caasa® è un servizio sperimentale realizzato tramite tecniche di Intelligenza Artificiale, fornito senza alcuna garanzia di correttezza e completezza. Leggi il disclaimer o segnalaci un problema.
IMMAGINI
IN SINTESI
PROPOSTO DA:
Simplex Domus S.R.L.
DESCRIZIONE
di recente costruzione di recente costruzione in asta giudiziaria
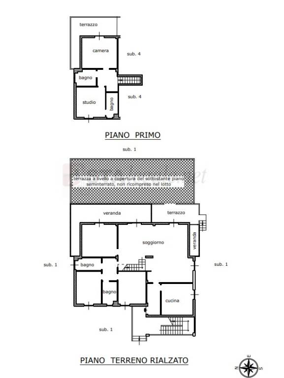
Cortona (AR) [SY612119] Località Ossaia, 52044 Cortona AR, Italia rge 29/2023 Fabbricato a destinazione residenziale non ultimato, elevato su tre piani fuori terra e suddiviso in 4 unità immobiliari, ubicato nel comune di Cortona (AR), oltre circosta […]
