Valutazione immobiliare indipendente, accurata e gratuita
Appartamento in vendita a Cortona a 52.620 € (cod.652c848e)
Caasa non ha sufficienti informazioni per commentare l'appartamento in vendita a Cortona - 652c848e.
Analisi immobiliare
I dati in posseso di Caasa per quest'immobile sono insufficienti, inaffidabili o contraddittori per proporre un'analisi attendibile.
Mercato immobiliare a Cortona
Per quanto riguarda più in generale la città di Cortona, sono presenti al momento oltre 500 annunci per
appartamenti in vendita (meno del 10% dell'intera provincia)
e il maggior numero di annunci per questa tipologia sono relativi alla zona di Casale.
Possiamo inoltre considerare che in tutta la città negli ultimi 6 mesi, i prezzi per appartamenti in vendita sono
in debole aumento (+1,94%).
NOVITÀ Il risultato che vedi dipende dai dati che siamo riusciti ad estrarre dall'annuncio: ottieni una stima più accuranta di questo immobile, inserendo dati più precisi.
N.B. L'Opinione di Caasa® è un servizio sperimentale realizzato tramite tecniche di Intelligenza Artificiale, fornito senza alcuna garanzia di correttezza e completezza. Leggi il disclaimer o segnalaci un problema.
IMMAGINI
IN SINTESI
PROPOSTO DA:
Simplex Domus S.R.L.
DESCRIZIONE
di recente costruzione con terrazza di recente costruzione in asta giudiziaria
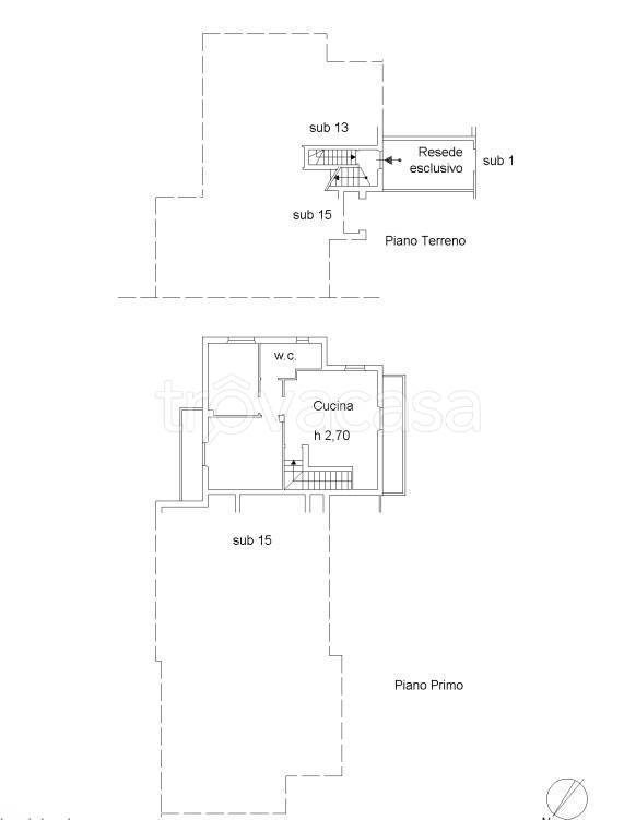
Cortona (AR) [SY588869] 52044 Cortona AR, Italia rge 185/2022 Abitazione con resede composta al piano terra da cucina, due disimpegni e servizio igienico, magazzino e un vano sottoscala. Al primo piano da tre camere, uno studio, due disimpegni, un pi […]
