Valutazione immobiliare indipendente, accurata e gratuita
Locale commerciale in affitto a Bibbiena in zona Soci a 2.400 € mese (cod.652a113f)
Caasa non ha sufficienti informazioni per commentare il locale commerciale a Bibbiena in zona Soci - 652a113f.
Analisi immobiliare
I dati in posseso di Caasa per quest'immobile sono insufficienti, inaffidabili o contraddittori per proporre un'analisi attendibile.
Mercato immobiliare a Bibbiena
Per quanto riguarda più in generale il comune di Bibbiena, sono presenti al momento più di dieci annunci per
locali commerciali in affitto (meno del 10% dell'intera provincia)
e il maggior numero di annunci per questa tipologia sono relativi proprio alla zona di Soci.
NOVITÀ Il risultato che vedi dipende dai dati che siamo riusciti ad estrarre dall'annuncio: ottieni una stima più accuranta di questo immobile, inserendo dati più precisi.
N.B. L'Opinione di Caasa® è un servizio sperimentale realizzato tramite tecniche di Intelligenza Artificiale, fornito senza alcuna garanzia di correttezza e completezza. Leggi il disclaimer o segnalaci un problema.
IMMAGINI
IN SINTESI
PROPOSTO DA:
ALFANI IMMOBILIARE DI ALFANI CLAUDIA
DESCRIZIONE
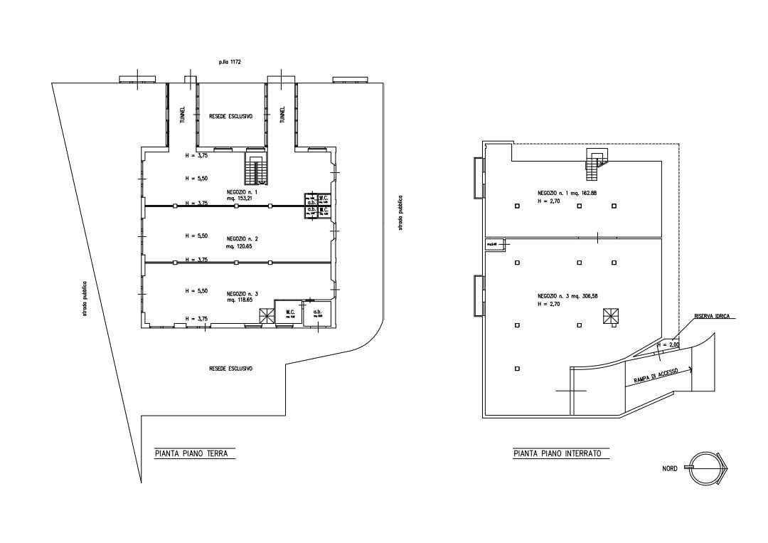
soci - zona centralissima - affittasi fondo commerciale di mq 316 circa sviluppato su due livelli con ampio resede in porzione di immobile corrispondente alla planimetria pubblicata indicata con il numero 1. e' possibile affittare l'intero edificio - o varie pezzature come ipotizzato nella pianta allegata - trattativa riservata in agenzia. - SC9566287


