N.B. Tutti le informazioni immobiliari sono fornite senza alcuna garanzia. Leggi il disclaimer.
Appartamenti o case indipendenti o case semindipendenti o terreni edificabili in vendita a Cuceglio - pg. 2 di 2
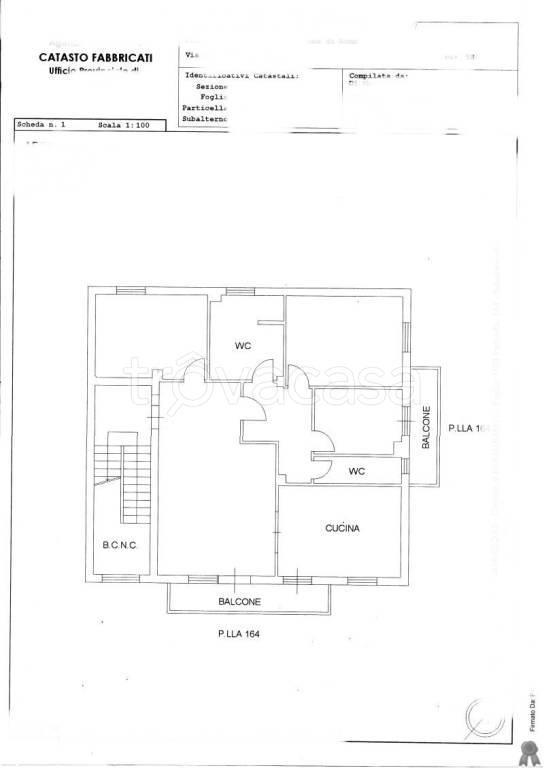
MODIFICA QUESTA RICERCACasa indipendente in vendita a Cuceglio
casa indipendente 45.000 €
Rif: CUC49 - Nel comune di Cuceglio, comodo ai servizi principali, si propone in vendita SOLUZIONE SEMI - INDIPENDENTE con GIARDINO PRIVATO. L'oggetto della vendita risulta libero su due aree e si sviluppa su due livelli, piano terra e primo piano collegati da una comoda SCALA INTERNA. Il piano terra acc […]
LEGGI ANCORA
- prezzo medio casa indipendente in zona OMI B1 : 694 €/m²
- prezzo medio casa semindipendente in zona OMI B1 : 504 €/m²
Casa indipendente in vendita a Cuceglio(TO
- prezzo medio casa indipendente in zona OMI B1 : 694 €/m²
- prezzo medio casa semindipendente in zona OMI B1 : 504 €/m²
Casa semindipendente in vendita a Cuceglio
appartamento 19.000 €
Nel cuore del paese, a pochi passi dalla Chiesa e dalle Poste, si trova questa caratteristica proprietà situata all'interno di una piccola corte con accesso carraio comune e chiuso. Un contesto tranquillo e riservato, ideale per chi cerca una soluzione abitativa versatile con interessanti potenzialità di […]
LEGGI ANCORA
- prezzo medio casa indipendente in zona OMI B1 : 694 €/m²
- prezzo medio casa semindipendente in zona OMI B1 : 504 €/m²
trivano in vendita a Cuceglio
appartamento 15.000 €
In POSIZIONE CENTRALE A CUCEGLIO proponiamo in vendita una SOLUZIONE DA RISTRUTTURARE, ideale per chi desidera personalizzare gli spazi secondo le proprie esigenze. L’immobile si sviluppa su due livelli: al PIANO TERRA sono presenti BOX AUTO, CANTINA e un ULTERIORE LOCALE ACCESSORIO. Tramite SCALA ESTERN […]
LEGGI ANCORA
attico in vendita a Cuceglio
appartamento 34.000 €
In zona centrale, nel paese di Cuceglio, proponiamo in vendita lotto immobiliare composto da tre unità abitative adiacenti. Lotto 1: Sviluppato su due livelli comprendenti un accesso in veranda, cucina abitabile, camera, bagno, box auto ed una seconda entrata dalla piazza. Tramite una scala interna, si […]
LEGGI ANCORA
Casa indipendente in vendita a Cuceglio piazza Porta Pia
appartamento 34.000 €
In zona centrale, nel paese di Cuceglio, proponiamo in vendita lotto immobiliare composto da tre unità abitative adiacenti. Lotto 1: Sviluppato su due livelli comprendenti un accesso in veranda, cucina abitabile, camera, bagno, box auto ed una seconda entrata dalla piazza. Tramite una scala interna, si a […]
LEGGI ANCORA
- prezzo medio casa indipendente in zona OMI B1 : 694 €/m²
- prezzo medio casa semindipendente in zona OMI B1 : 504 €/m²
bivano in vendita a Cuceglio
appartamento 19.000 €
Nel centro di Cuceglio proponiamo soluzione semindipendente in corso di ristrutturazione. L'immobile si presenta al piano terra con box auto doppio, cantina e posto auto coperto. Per accedere alla zona abitativa, troviamo sul lato del cortile una scala esterna collegata al balcone mentre dal lato verso s […]
LEGGI ANCORA
- prezzo medio casa semindipendente in zona OMI B1 : 504 €/m²
- prezzo medio casa semindipendente a Cuceglio : 485 €/m²
esavano in vendita a Cuceglio
appartamento 49.000 €
Nel comune di Cuceglio, comodo ai servizi principali, si propone in vendita SOLUZIONE SEMI - INDIPENDENTE con GIARDINO PRIVATO. L'oggetto della vendita risulta libero su due aree e si sviluppa su due livelli, piano terra e primo piano collegati da una comoda SCALA INTERNA. Il piano terra accoglie il SO […]
LEGGI ANCORA
Appartamento in vendita in Via Camillo Benso Conte di Cavour a Cuceglio
appartamento 7.784 €
NUOVA PROPOSTA IMMOBILE LIBERO L'appartamento posto al primo piano, sito in Via Camillo Benso Conte di Cavour a Cuceglio (TO) ed è composto da ingresso su terrazzo coperto e aperto sul lato ovest, cucina/soggiorno, due camere, un bagno e un sottoscala. La scala interna conduce al sottotetto. Completa la […]
LEGGI ANCORA
- prezzo medio casa semindipendente in zona OMI B1 : 504 €/m²
- prezzo medio casa indipendente in zona OMI B1 : 694 €/m²
Stabile/palazzo in vendita a Cuceglio
appartamento 24.000 €
Via XX Settembre, Cuceglio TO, Italia, Cuceglio (Torino) - Quota di ½ di proprietà di abitazione a corte e due terreni agricoli ubicati in Cuceglio (TO), via XXsettembre n.14 - Sono Valerio Pisano, il Consulente Aste Immobiliari con piu recensioni in Italia. Ho alle spalle oltre 10 anni di esperienza che […]
LEGGI ANCORA
Vendesi appartamento a Cuceglio
appartamento 7.784 €
ABITAZIONE ALL' ASTA A CUCEGLIO IN VIA CAVOUR 1 Appartamento al primo piano, composto da: ingresso su terrazzo, cucina/soggiorno, due locali, un bagno e un sottoscala, che conduce al sottotetto. Completa la proprietà un'autorimessa al piano terra. D&D IMMOBILIARE garantisce una consulenza seria, professi […]
LEGGI ANCORA
- prezzo medio casa indipendente in zona OMI B1 : 694 €/m²
- prezzo medio casa semindipendente in zona OMI B1 : 504 €/m²
Bilocale in vendita a Cuceglio
appartamento 7.784 €
Porzioni immobiliari facenti parte del fabbricato di civile abitazione e precisamente: appartamento posto al piano primo (secondo fuori terra) composto da: ingresso su terrazzo coperto, cucina/soggiorno, due locali, un bagno e un sottoscala; detta scala conduce al sottotetto, che di fatto è inaccessibile […]
LEGGI ANCORA
- prezzo medio casa semindipendente in zona OMI B1 : 504 €/m²
- prezzo medio casa indipendente in zona OMI B1 : 694 €/m²
Appartamento in vendita a Cuceglio
appartamento 7.784 €
Via Camillo Benso Conte di Cavour, , 0090 Cuceglio TO, Italia, Cuceglio (Torino) - Piena proprietà di porzioni immobiliari facenti parte del fabbricato di civile abitazione costituito appartamento e locale ad uso autorimessa - Sono Valerio Pisano, il Consulente Aste Immobiliari con piu recensioni in Ital […]
LEGGI ANCORA
- prezzo medio casa indipendente in zona OMI B1 : 694 €/m²
- prezzo medio casa semindipendente in zona OMI B1 : 504 €/m²
Immobile in asta di 67 m in vendita a Cuceglio
appartamento
Riferimento: 4526824 Asta scaduta: L’immobile non è più disponibile, ma ci sono oltre 20.000 aste attive e spesso ancora più convenienti. Contattaci ora: ti aiutiamo a trovare la tua prossima occasione o a ricevere maggiori informazioni. Via Camillo Benso Conte di Cavour, 1, 10090 Cuceglio TO, Italia, Cu […]
LEGGI ANCORA
Non perdere gli altri 14 annunci!







