N.B. Tutti le informazioni immobiliari sono fornite senza alcuna garanzia. Leggi il disclaimer.
Terreni agricoli o terreni edificabili in asta giudiziaria e con giardino in vendita a Villasimius - pg. 2 di 4
MODIFICA QUESTA RICERCAVilla singola in vendita a Villasimius via sa Conca Arrubia PREMIUM
Villasimius In Posizione Dominante e Panoramica su Valle di Sa Conca Arrubia fino all' Area marina Protetta di Capo Carbonara e Isola di Cavoli, Splendida Villa Indipendente di 180 mq contornata da 11.000 mq di Frutteto e Uliveto Produttivo […]
LEGGI ANCORA
- prezzo medio casa indipendente a Villasimius : 3991 €/m²
- prezzo medio villa a Villasimius : 4239 €/m²
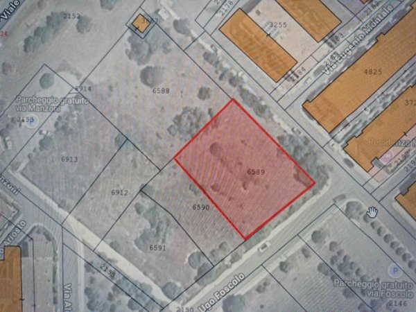
Terreno edificabile VILLASIMIUS €.330000 MQ.1732
terreno agricolo 330.000 €
Villasimius, in prossimità dei supermercati Eurospin e Coop, lungo la via Carducci angolo via Foscolo, lotto di terreno edificabile di mq 1732 con indice fondiario massimo di 1,9627 mc / mq e destinazione urbanistica C (in parte C1 in parte C2) dove potrà essere realizzata una struttura ricettiva, Hotel […]
LEGGI ANCORA
Terreno edificabile VILLASIMIUS €.123000 MQ.644
terreno agricolo 123.000 €
Villasimius, in prossimità dei supermercati Eurospin e Coop, lungo la via Carducci angolo via Foscolo, lotto di terreno edificabile di mq 644 con indice fondiario massimo di 1,9627 mc / mq e destinazione urbanistica C (in parte C1 in parte C2) dove potrà essere realizzata una struttura ricettiva, Hotel o […]
LEGGI ANCORA
Terreno edificabile VILLASIMIUS €.247000 MQ.1297
terreno agricolo 247.000 €
Villasimius, in prossimità dei supermercati Eurospin e Coop, lungo la via Carducci angolo via Foscolo, lotto di terreno edificabile di mq 1297 con indice fondiario massimo di 1,9627 mc / mq e destinazione urbanistica C (in parte C1 in parte C2) dove potrà essere realizzata una struttura ricettiva, Hotel […]
LEGGI ANCORA
Terreno residenziale in vendita a Villasimius via Roma
Villa in vendita a Villasimius
terreno edificabile
VILLASIMIUS: localit "Notteri", a soli cinque minuti dal centro cittadino e a pochi minuti a piedi dalla "spiaggia del riso" e dall'incantevole spiaggia di "Porto Giunco", tra le pi famose e pi belle spiagge della Sardegna, proponiamo in Vendita Villa Unifamiliare di 210 mq su unico livello con ampio gia […]
LEGGI ANCORA
Villa singola in vendita a Villasimius via sa Conca Arrubia PREMIUM
Villasimius In Posizione Dominante e Panoramica su Valle di Sa Conca Arrubia fino all' Area marina Protetta di Capo Carbonara e Isola di Cavoli, Splendida Villa Indipendente di 180 mq contornata da 11.000 mq di Frutteto e Uliveto Produttivo […]
LEGGI ANCORA
- prezzo medio casa indipendente a Villasimius : 3991 €/m²
- prezzo medio villa a Villasimius : 4239 €/m²
Terreno in vendita a Villasimius(SU
Terreno edificabile in vendita a Villasimius
terreno edificabile
Villasimius: Via Vienna. A pochi passi dal centro di Villasimius proponiamo in vendita un terreno edificabile di grande interesse, inserito nel Piano di Lottizzazione convenzionato denominato Il Mandorleto, in Zona C subzona C2. Il lotto si estende su una superficie edificabile di 4.599 mc commerciali e […]
LEGGI ANCORA
Villa singola in vendita a Villasimius via sa Conca Arrubia
terreno edificabile 850.000 €
Villasimius In Posizione Dominante e Panoramica su Valle di Sa Conca Arrubia fino all' Area marina Protetta di Capo Carbonara e Isola di Cavoli, Splendida Villa Indipendente di 180 mq contornata da 11.000 mq di Frutteto e Uliveto Produttivo con Pozzo doppio con acqua Sorgiva. La villa è comodamente raggi […]
LEGGI ANCORA
- prezzo medio casa indipendente a Villasimius : 3991 €/m²
- prezzo medio villa a Villasimius : 4239 €/m²
Villa singola in vendita a Villasimius via sa Conca Arrubia
terreno edificabile 795.000 €
Villasimius In Posizione Dominante e Panoramica su Valle di Sa Conca Arrubia fino all' Area marina Protetta di Capo Carbonara e Isola di Cavoli, Splendida Villa Indipendente di 180 mq contornata da 11.000 mq di Frutteto e Uliveto Produttivo con Pozzo doppio con acqua Sorgiva. La villa è comodamente raggi […]
LEGGI ANCORA
- prezzo medio casa indipendente a Villasimius : 3991 €/m²
- prezzo medio villa a Villasimius : 4239 €/m²
appartamento in vendita a Villasimius
terreno edificabile 390.000 €
Villasimius, a pochi passi dal centro del paese e allo stesso tempo prossima ai principali servizi proponiamo in vendita questa interessante casa indipendente con corte e giardino interno. La casa è stata costruita negli anni 70 in un lotto di circa 550 mq di superficie e si sviluppa su un unico livello […]
LEGGI ANCORA
- prezzo medio casa indipendente in zona OMI B1 : 3284 €/m²
- prezzo medio casa semindipendente in zona OMI B1 : 3079 €/m²
Villa singola in vendita a Villasimius via sa Conca Arrubia PREMIUM
Villasimius In Posizione Dominante e Panoramica su Valle di Sa Conca Arrubia fino all' Area marina Protetta di Capo Carbonara e Isola di Cavoli, Splendida Villa Indipendente di 180 mq contornata da 11.000 mq di Frutteto e Uliveto Produttivo […]
LEGGI ANCORA
- prezzo medio casa indipendente a Villasimius : 3991 €/m²
- prezzo medio villa a Villasimius : 4239 €/m²
Casa indipendente in vendita a Villasimius via sa conca arrubia
terreno edificabile 795.000 €
Esclusiva Villa di Lusso con Uliveto e Vista Panoramica nelle colline di Villasimius. Immersa nella quiete della campagna, questa incantevole villa rappresenta il perfetto equilibrio tra eleganza contemporanea e charme rustico. La villa, completamente realizzata con finiture di pregio e materiali tipici, […]
LEGGI ANCORA
- prezzo medio casa indipendente a Villasimius : 3991 €/m²
- prezzo medio casa semindipendente a Villasimius : 3734 €/m²
Stabile in vendita a Villasimius via Umberto I, 0
terreno edificabile 1.170.000 €
Nella rinomata località turistica di Villasimius, in una delle traverse della via Umberto I, a pochi passi dal centro, proponiamo in vendita uno splendido complesso residenziale composto da tre unità abitative più un lotto di terreno edificabile. Lo stabile è così composto: - un quadrilocale al piano ter […]
LEGGI ANCORA
- prezzo medio appartamento in zona OMI B1 : 3275 €/m²
- prezzo medio casa indipendente in zona OMI B1 : 3284 €/m²
vendita monolocale 944mq
terreno agricolo 290.000 €
vendita monolocale 944mq Villasimius Cagliari Sardegna villasimius a pochi passi dal centro in posizione panoramica sulle colline e sul paese proponiamo in vendita area edificabile zona c subzona c3 destinazione commerciale con prevista un edificazione di 3136mc. ottimo investimento per realizzare una st […]
LEGGI ANCORA
Villa VILLASIMIUS MQ.4500 Vani 7
terreno edificabile
ITALIA Sardegna – VILLASIMIUS (SU) – Opportunità di Investimento Immobiliare/Aziendale Fronte strada principale, posizione unica, in zona con vincolo di non edificabilità (nuove costruzioni). Location “ESCLUSIVA” di circa 4200 mq complessivi, attualmente utilizzato come complesso immobiliare aziendale ne […]
LEGGI ANCORA
Villa singola in vendita a Villasimius via sa Conca Arrubia PREMIUM
Villasimius In Posizione Dominante e Panoramica su Valle di Sa Conca Arrubia fino all' Area marina Protetta di Capo Carbonara e Isola di Cavoli, Splendida Villa Indipendente di 180 mq contornata da 11.000 mq di Frutteto e Uliveto Produttivo […]
LEGGI ANCORA
- prezzo medio casa indipendente a Villasimius : 3991 €/m²
- prezzo medio villa a Villasimius : 4239 €/m²
Cantina in Vendita a Villasimius
terreno edificabile
Se stai cercando una soluzione ideale per lo stoccaggio o un piccolo investimento, abbiamo ció che fa per te! Presso il prestigioso Complesso Residenziale di Via Parigi a Villasimius, proponiamo in vendita 6 cantine di diverse metrature, acquistabili anche in blocchi da 3 o da 2, perfette per chi deside […]
LEGGI ANCORA
Vendita Cantina Villasimius
terreno edificabile
Se stai cercando una soluzione ideale per lo stoccaggio o un piccolo investimento, abbiamo ció che fa per te! Presso il prestigioso Complesso Residenziale di Via Parigi a Villasimius, proponiamo in vendita 6 cantine di diverse metrature, acquistabili anche in blocchi da 3 o da 2, perfette per chi desider […]
LEGGI ANCORA
IMMOBILI-ALTRA CATEGORIA-Villasimius
terreno edificabile
Vendita all'asta Senza incanto, con gara telematica asincrona - LOTTO 3: Quota pari all’intero del diritto di propriet sull’unit immobiliare costituita da lotto di terreno di mq 4.180 circa. Prezzo base € 15.488,00 (offerta minima € 11.616,00). Data inizio operazioni di vendita: 26/11/2025 ore 11:00. Giu […]
LEGGI ANCORA
Non perdere gli altri 50 annunci!









