N.B. Tutti le informazioni immobiliari sono fornite senza alcuna garanzia. Leggi il disclaimer.
Negozi in asta giudiziaria e con balcone e con terrazza, di nuova costruzione in vendita a Poggibonsi in zona Via Salceto
MODIFICA QUESTA RICERCAAttività / Licenza in vendita a Poggibonsi(SI PREMIUM
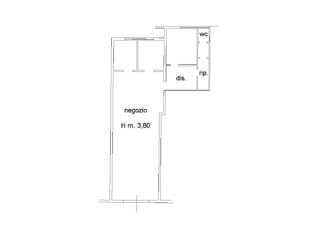
Negozio in Vendita a Poggibonsi Via Salceto 85
negozio Via Salceto 237.000 €
Unità immobiliare ad uso commerciale, porzione di un più ampio fabbricato condominiale, ubicata nel Comune di Poggibonsi, Via Salceto n. 85A. Completano il lotto quota parte delle zone a comune. Unità immobiliare ad uso commerciale, porzione di un più ampio fabbricato condominiale, ubicata nel Comune […]
LEGGI ANCORA
Immobile in vendita a Poggibonsi(SI
negozio Centro Storico 58.000 €
Attività commerciale - A POGGIBONSI, in zona centrale, VENDESI fondo commerciale di mq.105 suddiviso in 3 vani, 2 bagni e cucinotto oltre ad un magazzino di mq.23 al piano S1. L'immobile, che si trova in una traversa di Vi
LEGGI ANCORA
Immobile in vendita a Poggibonsi(SI
negozio Via San Gimignano 150.000 €
Attività commerciale - LOCALE COMMERCIALE 140 MQ PIANO TERRA FRONTE STRADA. A Poggibonsi, in via san gimignano, proponiamo in vendita questo locale commerciale divisibile anche in due unità. Un locale che gode di ottima vi
LEGGI ANCORA
Immobile in vendita a Poggibonsi(SI
Immobile in vendita a Poggibonsi(SI
Immobile in vendita a Poggibonsi(SI PREMIUM
vendita locale commerciale Poggibonsi
negozio 115.000 €
CAPOLUOGO - Poggibonsi Locale comm.le/Fondo in vendita - 2 vani - 166 mq - posto al piano Piano terra In zona di elevata attività commerciale e di intenso passaggio auto, che rendono l'attività dell'immobile molto visibile, e vicino al centro, fondo di circa 160 mq. con destinazione commerciale; ognuna d […]
LEGGI ANCORA
- prezzo medio locale commerciale in zona OMI D1 : 1054 €/m²
- prezzo medio locale commerciale a Poggibonsi : 926 €/m²
Garage - Posto auto in vendita a Poggibonsi
negozio Via Montenero
Agenzia Immobiliare Centro di Poggibonsi vi propone garage di mq. 18 completamente ristrutturato in zona semi centrale, via Montenero. LIBERO DA SUBITO Per Info e appuntamenti contattare il 0577-937941 - 335/6044851Si offre, inoltre, consulenza finanziaria gratuita direttamente in sede per l'erogazione d […]
LEGGI ANCORA
Locale commerciale POGGIBONSI €.110000 MQ.101 Vani 1
negozio 110.000 €
Poggibonsi – Zona semicentrale Vendesi locale commerciale fronte strada di circa 100 m². L'immobile, immediatamente disponibile, è composto da: ampio spazio vendita/negozio con accesso a piccolo resede retrostante, ripostiglio e bagno. Soluzione ideale per attività commerciali, studi professionali o maga […]
LEGGI ANCORA
- prezzo medio ufficio in zona OMI D1 : 1238 €/m²
- prezzo medio locale commerciale in zona OMI D1 : 1054 €/m²
Locale commerciale POGGIBONSI €.160000 MQ.126 Vani 4
negozio 160.000 €
Poggibonsi – Zona semicentrale Vendesi locale commerciale fronte strada di circa 129 m². L'immobile, immediatamente disponibile, è composto da: ampio spazio vendita/negozio, tre vani uso ufficio o magazzino, ripostiglio, bagno. Soluzione ideale per attività commerciali, studi professionali o magazzini co […]
LEGGI ANCORA
- prezzo medio ufficio in zona OMI D1 : 1238 €/m²
- prezzo medio locale commerciale in zona OMI D1 : 1054 €/m²
attico in vendita a Poggibonsi
negozio 167.000 €
Appartamento di 110 mq con terrazze, garage e posto auto In vendita appartamento situato in zona semicentrale, comodo a tutti i servizi come edicola, bar, farmacia, macelleria e gommista, tutti raggiungibili a piedi. L'immobile si trova al terzo e ultimo piano di una palazzina senza ascensore ed è compos […]
LEGGI ANCORA
- prezzo medio appartamento in zona OMI D1 : 2015 €/m²
- prezzo medio attico in zona OMI D1 : 1951 €/m²
vendita locale commerciale Poggibonsi PREMIUM
CAPOLUOGO - Poggibonsi Locale comm.le/Fondo in vendita - 1 vani - 70 mq - posto al piano Piano terraClasse energetica: In attesa di certificazione - CAPOLUOGO - Poggibonsi Locale comm.le/Fondo in vendita - 70 mq - Piano terra In zona di ele […]
LEGGI ANCORA
- prezzo medio locale commerciale in zona OMI D1 : 1054 €/m²
- prezzo medio loft in zona OMI D1 : 2336 €/m²
Locale commerciale in Vendita a Poggibonsi Via Costantino Marmocchi
negozio Centro Storico Via Costantino Marmocchi 58.000 €
A POGGIBONSI, in zona centrale, VENDESI fondo commerciale di mq.105 suddiviso in 3 vani, 2 bagni e cucinotto oltre ad un magazzino di mq.23 al piano S1. L 'immobile, che si trova in una traversa di Via Maestra, è in ottime condizioni, tanto che è stato usato come abitazione per un certo periodo. Ideale […]
LEGGI ANCORA
- prezzo medio locale commerciale in zona OMI B1 : 931 €/m²
- prezzo medio trivano in zona OMI B1 : 1841 €/m²
Vendesi locale commerciale a Poggibonsi via trento 80
negozio Via Trento 190.000 €
POGGIBONSI, Locale commerciale in vendita di 183 Mq, Buone condizioni, Riscaldamento Autonomo, Epi: 117 kwh/m3 anno, posto al piano Terra su 3, composto da: 1 Vano, 1 Bagno, Prezzo: Eu. 190.000 EPI: 117 kwh/m3 anno
LEGGI ANCORA
- prezzo medio locale commerciale in zona OMI B1 : 931 €/m²
- prezzo medio locale commerciale a Poggibonsi : 926 €/m²
negozio in vendita a Poggibonsi
negozio 35.000 €
vendita licenza bar/ristorante con ottima posizione
LEGGI ANCORA
vendita locale commerciale Poggibonsi
negozio 80.000 €
CAPOLUOGO - PoggibonsiLocale comm.le/Fondo in vendita - 2 vani - 98 mq - posto al piano terra Classe energetica: In attesa di certificazione - CAPOLUOGO - Poggibonsi Locale comm.le/Fondo in vendita posto al piano terra In zona di elevata attività commerciale e di intenso passaggio auto, che rendono l'att […]
LEGGI ANCORA
- prezzo medio locale commerciale in zona OMI D1 : 1054 €/m²
- prezzo medio loft in zona OMI D1 : 2336 €/m²
Locale commerciale ristrutturato
negozio 120.000 €
Da Privato. Cedesi bellissimo locale con soffitto fatto ad archi rifinito con mattoncino. Ampio ingresso, dotato di 2 bagni, 2 ripostigli. Grande terrazzo condominiale, rialzato rispetto al piano strada e ben illuminato. Posizione centrale, facilmente raggiungibile dalla stazione autobus e ferroviaria, d […]
LEGGI ANCORA
- prezzo medio locale commerciale in zona OMI B1 : 931 €/m²
- prezzo medio locale commerciale a Poggibonsi : 926 €/m²
Attività / Licenza in vendita a Poggibonsi(SI PREMIUM
Vendita negozio via Salceto Poggibonsi (SI
negozio Via Salceto 275.000 €
VAQ 72 Porzione di fabbricato destinata a uso ufficio, facente parte di un più ampio edificio direzionale destinato a ospitare attività professionali e amministrative. L'immobile in oggetto è situato al quinto piano ed è comodamente accessibile tramite ascensore e vano scala, entrambi di pertinenza condo […]
LEGGI ANCORA
Negozio in vendita a Poggibonsi via Carlo Iozzi, 2
negozio 65.000 €
Cerved Property Services Italy S.r.l. propone in vendita un laboratorio artigianale di circa 130 mq, a Poggibonsi, in Via Carlo Iozzi. L'immobile è ubicato in zona semicentrale, a vocazione residenziale. Il laboratorio è posto al piano terra di un edificio di più ampie dimensioni, ed è costituto da due […]
LEGGI ANCORA
Negozio in Vendita a Poggibonsi Via Senese
negozio Via Senese 195.000 €
Bellissimo fondo commerciale di circa 227 mq di superficie calpestabile a Poggibonsi, al piano terreno di una palazzina in zona limitrofa al centro. Piano terra e al contempo fronte strada in zona di intenso traffico veicolare. La sua ubicazione e l 'attuale conformazione permettono qualunque tipo di att […]
LEGGI ANCORA
Non perdere gli altri 60 annunci!













