Logo Caasa ha trovato centinaia di annunci per:

Appartamenti o case indipendenti o case semindipendenti con cantina e con cucina abitabile, di recente costruzione in vendita a Colle di Val d'Elsa - pg. 15 di 43

MODIFICA QUESTA RICERCA

Valore appartamenti in vendita a Colle di Val d'Elsa

Nella città di Colle di Val d'Elsa sono al momento presenti 629 offerte per appartamenti in vendita, che rappresentano meno del 10% degli annunci di questa tipologia in provincia di Siena.
In media in tutta la città, il prezzo richiesto degli appartamenti in vendita è attualmente pari a 1.980 €/m² ed è nella maggioranza dei casi compreso tra 1.380 €/m² e 2.450 €/m². Nella zona Le grazie, che è tra quelle con il maggior numero di annunci ed è anche la più costosa, il prezzo mediamente richiesto degli appartamenti in vendita è pari a 2.125 €/m². I prezzi più bassi si registrano invece presso la zona Selvamaggio, ma sono comunque molto simili.

Secondo i dati ufficiali sulle compravendite forniti dall' Agenzia delle Entrate, i prezzi più bassi al m² per un appartamento in vendita si registrano nella zona OMI E1 (ZONA PRODUTTIVA DI BELVEDERE, SAN MAR...) e sono compresi tra 600 €/m² e 860 €/m². Si registrano invece i valori più alti sulle compravendite nella zona OMI D1 (CAMPOLUNGO ED AGRESTONE), dove sono compresi tra 1.175 €/m² e 1.710 €/m².

Con questi valori, Colle di Val d'Elsa è una città tra quelle con una popolazione compresa tra 10.000 e 50.000 abitanti, con i prezzi degli appartamenti vicini alla media italiana.

Per quanto concerne l'andamento nel tempo, i prezzi degli appartamenti in vendita a Colle di Val d'Elsa negli ultimi sei mesi sono in sostanziale aumento (+4,67%).

N.B. Tutti le informazioni immobiliari sono fornite senza alcuna garanzia. Leggi il disclaimer.

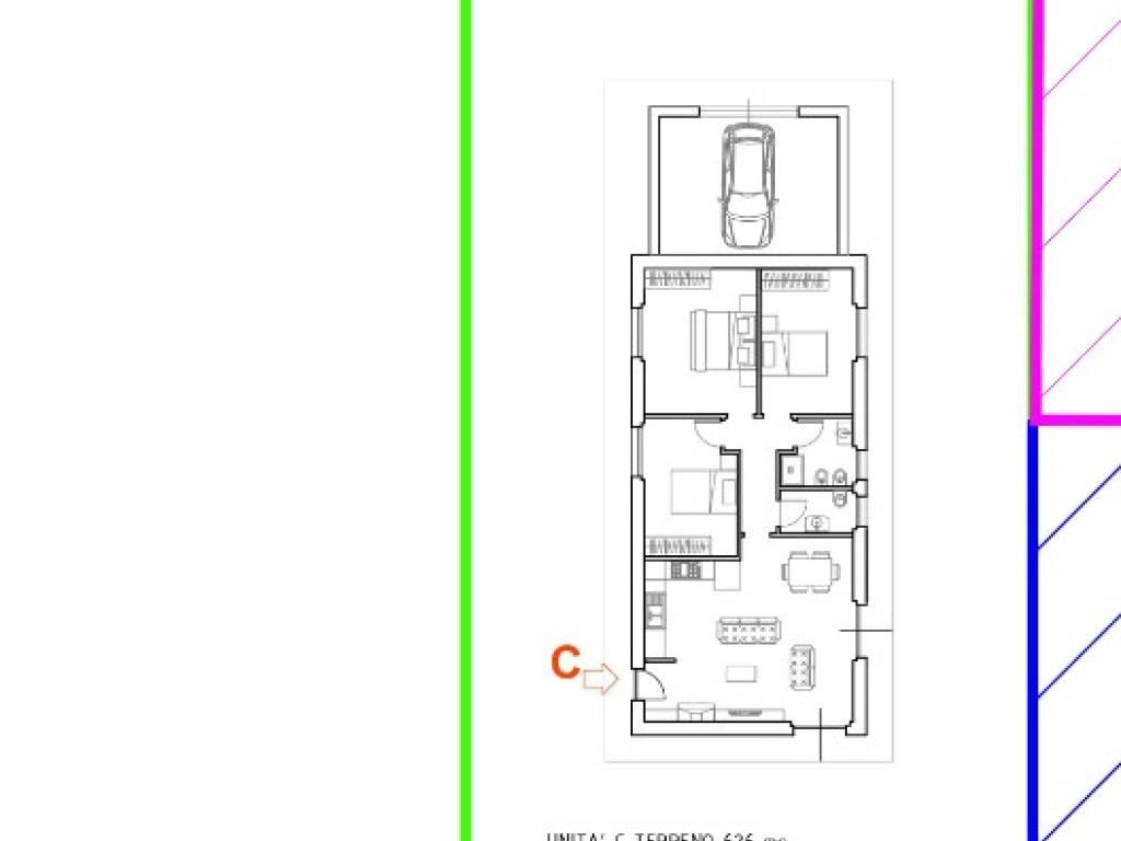
Appartamento in vendita a Colle di Val d'Elsa

  • prezzo medio appartamento in zona OMI B2 : 1889 €/m²
  • prezzo medio casa indipendente in zona OMI B2 : 2332 €/m²

appartamento in vendita a Colle di Val d'Elsa

  • prezzo medio appartamento in zona OMI R3 : 1779 €/m²
  • prezzo medio quadrivano in zona OMI R3 : 1893 €/m²

Non perdere gli altri centinaia di annunci!