Valutazione immobiliare indipendente, accurata e gratuita
Appartamento in vendita a Mazara del Vallo a 150.000 € (cod.64e57560)
Caasa non ha sufficienti informazioni per commentare l'appartamento in vendita a Mazara del Vallo - 64e57560.
Analisi immobiliare
I dati in posseso di Caasa per quest'immobile sono insufficienti, inaffidabili o contraddittori per proporre un'analisi attendibile.
Mercato immobiliare a Mazara del Vallo
Per quanto riguarda più in generale la città di Mazara del Vallo, sono presenti al momento oltre 500 annunci per
appartamenti in vendita (meno del 10% dell'intera provincia)
e il maggior numero di annunci per questa tipologia sono relativi alla zona di Centro Storico.
Per quanto riguarda la dinamica dei prezzi, negli ultimi 6 mesi i prezzi medi in tutta la città per appartamenti in vendita sono
sostanzialmente stabili (+0,59%).
NOVITÀ Il risultato che vedi dipende dai dati che siamo riusciti ad estrarre dall'annuncio: ottieni una stima più accuranta di questo immobile, inserendo dati più precisi.
N.B. L'Opinione di Caasa® è un servizio sperimentale realizzato tramite tecniche di Intelligenza Artificiale, fornito senza alcuna garanzia di correttezza e completezza. Leggi il disclaimer o segnalaci un problema.
IMMAGINI
IN SINTESI
DESCRIZIONE
con cantina con posto auto con cucina abitabile con termocondizionamento con ascensore con riscaldamento autonomo
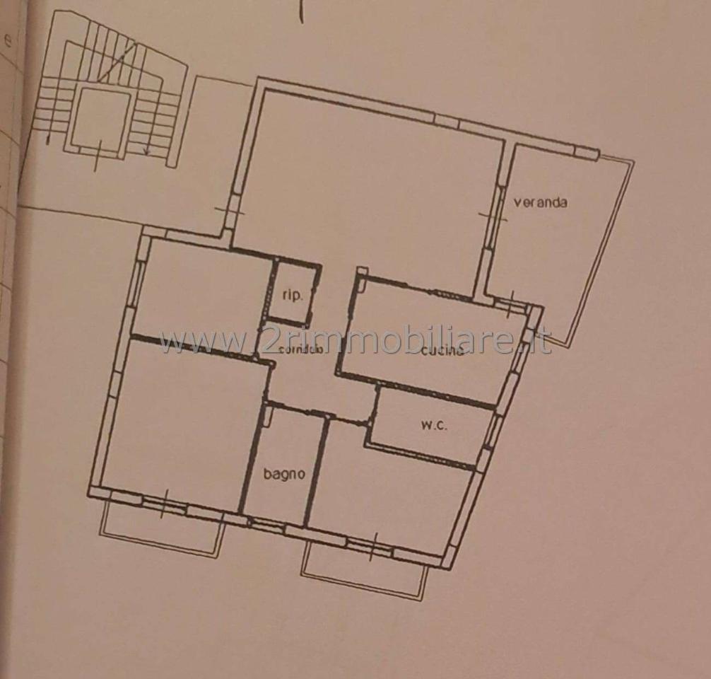
Nei pressi della zona Makara, la 2r immobiliare propone la vendita di un appartamento di mq 120 circa. L'appartamento è posto al primo piano con ascensore, composto da 4 vani suddivisi rispettivamente in : ingresso, salone, cucina abitabile, tre camere da letto di cui una doppia e due singole, due servizi di cui uno con vasca, ripostiglio e comoda lavanderia. Inoltre dalla cucina è possibile accedere ad una graziosa veranda, nel quale può trascorrere momenti di relax in compagnia. Gli interni sono luminosi ed accoglienti, con spazi ben distribuiti e funzionali con rifiniture di alta qualità. L'immobile si trova in un ottima posizione in quanto, vicino a numerose attività di facile accesso NOTA BENE: l'immobile dispone di riscaldamento autonomo, aria condizionata e di proprietà esclusiva un box auto da 30 mq circa. RIFERIMENTO. V001733 Per informazioni e appuntamenti non esitate a chiamare la nostra agenzia al numero 0923/360251 o tramite WhatsApp al 3240438134 oppure veniteci a trovare in via Emanuele sansone 15




