Valutazione immobiliare indipendente, accurata e gratuita
Appartamento in vendita a Favignana a 350.000 € (cod.654715bd)
Caasa non ha sufficienti informazioni per commentare l'appartamento in vendita a Favignana - 654715bd.
Analisi immobiliare
I dati in posseso di Caasa per quest'immobile sono insufficienti, inaffidabili o contraddittori per proporre un'analisi attendibile.
Mercato immobiliare a Favignana
Per quanto riguarda più in generale il comune di Favignana, sono presenti al momento circa cento annunci per
appartamenti in vendita (meno del 5% dell'intera provincia) .
Relativamente alla dinamica dei prezzi, possiamo dire che negli ultimi 6 mesi i prezzi medi in tutto il comune per appartamenti in vendita sono
in aumento (+3,81%).
NOVITÀ Il risultato che vedi dipende dai dati che siamo riusciti ad estrarre dall'annuncio: ottieni una stima più accuranta di questo immobile, inserendo dati più precisi.
N.B. L'Opinione di Caasa® è un servizio sperimentale realizzato tramite tecniche di Intelligenza Artificiale, fornito senza alcuna garanzia di correttezza e completezza. Leggi il disclaimer o segnalaci un problema.
IMMAGINI
IN SINTESI
PROPOSTO DA:
Agenzia Affiliato Toscano Trapani Libica
DESCRIZIONE
di nuova costruzione con terrazza con balcone di recente costruzione con posto auto di nuova costruzione senza ascensore con termocondizionamento
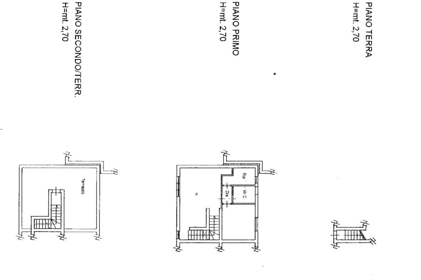
L’appartamento indipendente è situato a Favignana, la principale isola dell’arcipelago delle Egadi in Sicilia, rinomata per la sua forma a farfalla e le sue acque limpide. L’immobile si trova in via Luigi Capuana a pochi metri dalla piazza e gode una splendida vista panoramica sul castello e sull’isola di Levanzo. La costruzione è di recente realizzazione. L’accesso avviene al piano terra; una scala interna conduce al piano superiore dove si sviluppa un ampio spazio open space che comprende soggiorno e cucina. La zona notte comprende una camera matrimoniale con balcone panoramico, una cameretta, un bagno con doccia e una lavanderia. Al piano superiore è presente un terrazzo con pergolato, ideale per godere delle serate estive in un contesto tranquillo e panoramico. L’immobile presenta finiture curate con infissi in legno e doppio vetro di colore blu, caratteristici delle isole mediterranee. La vendita comprende l’arredamento completo. È disponibile un posto auto scoperto in area privata condominiale e una cisterna esclusiva di 33.000 litri


