Valutazione immobiliare indipendente, accurata e gratuita
Casa indipendente in vendita ad Alcamo a 200.000 € (cod.6526b674)
Caasa non ha sufficienti informazioni per commentare la casa indipendente in vendita ad Alcamo - 6526b674.
Analisi immobiliare
I dati in posseso di Caasa per quest'immobile sono insufficienti, inaffidabili o contraddittori per proporre un'analisi attendibile.
Mercato immobiliare ad Alcamo
Per quanto riguarda più in generale la città di Alcamo, sono presenti al momento ben oltre mille annunci per
case indipendenti in vendita (quasi il 20% dell'intera provincia)
e il maggior numero di annunci per questa tipologia sono relativi alla zona di Alcamo Marina.
Per quanto riguarda la dinamica dei prezzi, negli ultimi 6 mesi i prezzi medi in tutta la città per case indipendenti in vendita sono
in debole aumento (+1,34%).
NOVITÀ Il risultato che vedi dipende dai dati che siamo riusciti ad estrarre dall'annuncio: ottieni una stima più accuranta di questo immobile, inserendo dati più precisi.
N.B. L'Opinione di Caasa® è un servizio sperimentale realizzato tramite tecniche di Intelligenza Artificiale, fornito senza alcuna garanzia di correttezza e completezza. Leggi il disclaimer o segnalaci un problema.
IMMAGINI
IN SINTESI
PROPOSTO DA:
La Rocca Immobiliare
Corso 6 Aprile, 226, Alcamo (TP)
Verificata da Caasa®
DESCRIZIONE
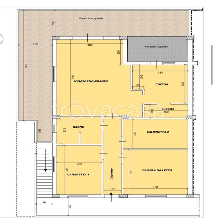
di nuova costruzione con posto auto con terrazza con garage di nuova costruzione
Alcamo, via Monte Bonifato: Proponiamo per la vendita Indipendente allo stato grezzo, con una superficie di circa 75 mq. per piano, sviluppato su quattro livelli complessivi, precisamente garage, piano primo, secondo e terrazzo. La struttura portante è già realizzata e comprende solai, pilastri e murature principali, lasciando aperta la possibilità di personalizzare completamente le finiture interne ed esterne. L’immobile è inoltre dotato di una cisterna idrica. Si tratta di una soluzione ideale per chi desidera completare l’edificio secondo le proprie esigenze abitative. Richiesta € 200.000 Rif. VA886 Contattateci per visitarla senza impegno in modo da constatare personalmente quanto da noi proposto La Rocca Immobiliare - Corso VI Aprile 226 - Alcamo Tel. 0924 502852 - Cell. 3357511716 - vi ringraziamo per avere valutato le nostre offerte. Valutiamo gratuitamente il vostro usato che potrebbe risultare di nostro interesse. Il presente annuncio non costituisce vincolo contrattuale


