Valutazione immobiliare indipendente, accurata e gratuita
Appartamento in vendita a Vittoria a 62.990 € (cod.6562fca0)
Caasa non ha sufficienti informazioni per commentare l'appartamento in vendita a Vittoria - 6562fca0.
Analisi immobiliare
I dati in posseso di Caasa per quest'immobile sono insufficienti, inaffidabili o contraddittori per proporre un'analisi attendibile.
Mercato immobiliare a Vittoria
Per quanto riguarda più in generale la città di Vittoria, sono presenti al momento oltre 500 annunci per
appartamenti in vendita (quasi il 20% dell'intera provincia)
e il maggior numero di annunci per questa tipologia sono relativi alla zona di Scoglitti.
Per quanto riguarda la dinamica dei prezzi, negli ultimi 6 mesi i prezzi medi in tutta la città per appartamenti in vendita sono
sostanzialmente stabili (+1,04%).
NOVITÀ Il risultato che vedi dipende dai dati che siamo riusciti ad estrarre dall'annuncio: ottieni una stima più accuranta di questo immobile, inserendo dati più precisi.
N.B. L'Opinione di Caasa® è un servizio sperimentale realizzato tramite tecniche di Intelligenza Artificiale, fornito senza alcuna garanzia di correttezza e completezza. Leggi il disclaimer o segnalaci un problema.
IMMAGINI
IN SINTESI
PROPOSTO DA:
Aste Florio
DESCRIZIONE
di nuova costruzione in asta giudiziaria di nuova costruzione
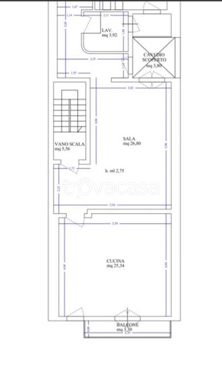
Riferimento: 4524449 Via Fratelli Bandiera 168/B, 97019 Vittoria Ragusa Lotto: 1 Piena proprietà di immobile per civile abitazione sito in Vittoria (RG), via Fratelli Bandiera n. 168/B, composto da piano terra, con area scoperta di pertinenza esclusiva sovrastante posta sul retro e al piano primo, riportato nel NCEU Foglio 221, part. 75, sub 1, p.T., cat. A/4, cl. 3, e Foglio 221, part. 75, sub 2, p.1, cat. F/5, Data di vendita: 16/04/2026 16:00 Offerta minima: € 62.990 Valore di stima ....143.610,00 Studio di Fattibilità Pre-Asta Offriamo consulenza legale completa per l'acquisto tramite asta giudiziaria. I nostri servizi includono: Ricerca dell'immobile secondo le esigenze del cliente Studio di fattibilità pre-asta in fase di richiesta di visita Studio di fattibilità del mutuo tramite banche convenzionate Esame della perizia e documentazione correlata Verifica legale Preparazione e deposito delle offerte di partecipazione Gestione della gara Consulenza post-aggiudicazione fino all'emissione del decreto di trasferimento o del rogito Vi invitiamo a fissare una prima consulenza gratuita presso una delle nostre 80 sedi sparse su tutto il territorio per ricevere maggiori informazioni sul processo di partecipazione ad un'asta giudiziaria, tempistiche, costi e modalità di acquisto. Ulteriore documentazione disponibile verrà messa a disposizione durante la consulenza. +39 06 4006 1824 Visitate il nostro sito www.asteflorio.com dove potrete trovare più di 20.000 Aste disponibili NB: Le immagini potrebbero essere solo esempi e non rappresentare gli immobili reali. Le coordinate geografiche, fornite automaticamente da Google, possono contenere inesattezze. Segnalate eventuali errori e rimuoveremo o correggeremo gli annunci non conformi. L'ESATTEZZA DI TUTTI I DATI PUBBLICATI INOLTRE SARA' CONFERMATA IN SEDE DI CONSULENZA

