Valutazione immobiliare indipendente, accurata e gratuita
Casa indipendente in vendita a Modica in zona Modica Bassa a 248.000 € (cod.653e42ff)
Caasa non ha sufficienti informazioni per commentare la casa indipendente a Modica in zona Modica Bassa - 653e42ff.
Analisi immobiliare
I dati in posseso di Caasa per quest'immobile sono insufficienti, inaffidabili o contraddittori per proporre un'analisi attendibile.
Mercato immobiliare a Modica
Per quanto riguarda più in generale la città di Modica, sono presenti al momento ben oltre mille annunci per
case indipendenti in vendita (meno di un terzo dell'intera provincia)
e il maggior numero di annunci per questa tipologia sono relativi alla zona di Modica Alta, ma anche la zona di Modica Bassa è molto attiva dal punto di vista immobiliare.
La richiesta media nella zona dove sorge la casa indipendente (Modica Bassa) è pari a
810 €/m², di poco superiore al valore della zona Modica Alta che è la più economica della città .
La dinamica dei prezzi in tutta la città mostra che negli ultimi 6 mesi, i prezzi per case indipendenti in vendita sono
sostanzialmente stabili (-0,53%).
Invece i prezzi per la zona di sono in debole aumento.
NOVITÀ Il risultato che vedi dipende dai dati che siamo riusciti ad estrarre dall'annuncio: ottieni una stima più accuranta di questo immobile, inserendo dati più precisi.
N.B. L'Opinione di Caasa® è un servizio sperimentale realizzato tramite tecniche di Intelligenza Artificiale, fornito senza alcuna garanzia di correttezza e completezza. Leggi il disclaimer o segnalaci un problema.
IMMAGINI
IN SINTESI
PROPOSTO DA:
CHARME OF SICILY S.R.L.S.
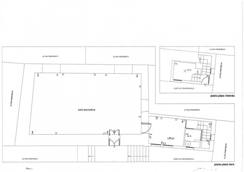
DESCRIZIONE
di recente ristrutturazione di recente ristrutturazione senza ascensore
Nel cuore suggestivo di Modica Bassa, lungo la pittoresca via Campailla e immerso nello splendore del centro storico barocco patrimonio UNESCO, proponiamo in vendita due unità immobiliari indipendenti tipologia loft/openspace per un totale di 187 mq finemente ristrutturati. L'ingresso scenografico attraverso un antico portale in pietra conduce ad ambienti dal fascino contemporaneo: alti soffitti con travi lignee a vista e grandi finestre che regalano luminosità naturale agli spazi interni. I pavimenti originali in pece nera esaltano l'eleganza degli ambienti open space, caratterizzati da arredi su misura dal design moderno e funzionale (ampie librerie modulari curve che arricchiscono l'atmosfera). Le zone living si sviluppano su doppi livelli soppalcati con balaustre metalliche nere che valorizzano gli ampi volumi; presente impianto di climatizzazione caldo/freddo già installato. Gli spazi si prestano sia come abitazione esclusiva sia come studio professionale o showroom grazie alla flessibilità degli ambienti. La posizione strategica permette di vivere appieno il fascino della città antica con tutti i servizi raggiungibili a piedi: monumenti storici, boutique artigiane e rinomate pasticcerie modicane sono a pochi passi dall'immobile. Un'opportunità unica per chi desidera abitare o investire nel cuore pulsante della Sicilia sud-orientale tra storia ed eleganza contemporanea. Contatta subito la nostra agenzia per ricevere maggiori informazioni o prenotare una visita esclusiva





