Valutazione immobiliare indipendente, accurata e gratuita
L'Opinione di Caasa® per l'appartamento in vendita a Villabate in zona Pomara a 149.000 € (cod.6526be3f)
Secondo Caasa, per l'appartamento in vendita a Villabate in zona Pomara, la richiesta di 149.000 € è leggermente vantaggiosa rispetto agli annunci simili.
Analisi immobiliare
L'appartamento, situato nella zona OMI D2, è proposto in vendita a
149.000 € per una
superficie commerciale di
170 m² e quindi ad un prezzo per metro quadrato pari a
876 €/m²
.
Tale valore
è di poco inferiore a quello stimato da Caasa per immobili in vendita simili per tipologia, caratteristiche, classe energetica e localizzati nella stessa zona OMI, che è compreso tra
966 €/m² e
1.053 €/m².
La conoscenza con buona approssimazione della localizzazione dell'immobile ha consentito di utilizzare come raffronto i dati medi elaborati esattamente nella zona OMI di appertenenza (ZONE DI SVILUPPO DEL CENTRO STORICO) per appartamenti (da 620 €/m² a 1.215 €/m²) e per quadrivani (da 660 €/m² a 1.080 €/m²). Inoltre, Caasa ha potuto affinare la stima anche con la conoscenza della classe energetica (G) oltre che dello stato dell'immobile (di recente ristrutturazione) e di alcune caratteristiche significative come la disponibilità di una cantina o la presenza dell'ascensore. Per queste ragioni i valori accettabili per l'offerta costituiscono un intervallo abbastanza limitato.
Mercato immobiliare a Villabate
Per quanto riguarda più in generale la città di Villabate, sono presenti al momento più di 300 annunci per
appartamenti in vendita (meno del 5% dell'intera provincia) .
Per quanto riguarda la richiesta media in zona Pomara, dove sorge l'appartamento, essa è pari a circa
935 €/m² per appartamenti in vendita.
La dinamica dei prezzi in tutta la città mostra che negli ultimi 6 mesi, i prezzi per appartamenti in vendita sono
sostanzialmente stabili (-1,14%).
Invece i prezzi per la zona di sono in debole diminuzione.
NOVITÀ Il risultato che vedi dipende dai dati che siamo riusciti ad estrarre dall'annuncio: ottieni una stima più accuranta di questo immobile, inserendo dati più precisi.
N.B. L'Opinione di Caasa® è un servizio sperimentale realizzato tramite tecniche di Intelligenza Artificiale, fornito senza alcuna garanzia di correttezza e completezza. Leggi il disclaimer o segnalaci un problema.
IMMAGINI
IN SINTESI
PROPOSTO DA:
CASARETE
DESCRIZIONE
di recente ristrutturazione con terrazza con cantina di recente ristrutturazione con ascensore con angolo cottura con caminetto
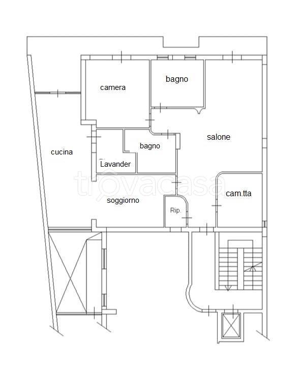
Scopri questo splendido appartamento completamente ristrutturato, situato in una posizione strategica nei pressi dello svincolo autostradale. Immerso in un contesto molto tranquillo, questo immobile è l'ideale per chi cerca comfort e tranquillità senza rinunciare alla comodità di avere tutti i servizi a portata di mano. L'appartamento si sviluppa su una superficie commerciale di 170 mq e offre un ampio salone, una grande cucina-soggiorno dotata di angolo cottura in muratura, perfetta per le cene in famiglia. La camera da letto, insieme alla cameretta, forniscono spazio sufficiente per ogni esigenza. Due bagni moderni e un pratico ripostiglio ed una lavanderia completano la disposizione interna. Il lastrico solare di 160 mq è un vero e proprio gioiello, ideale per godere di momenti di relax all'aperto. Gli interni vantano finiture di pregio, con pavimentazione in gres porcellanato e infissi in alluminio con vetrocamera. Il camino a legna aggiunge un tocco di calore e accoglienza, mentre i controsoffitti di design conferiscono un'atmosfera moderna e raffinata. Situato al secondo piano, l'appartamento offre la possibilità di installare un ascensore, già presente il vano dove allocarlo. Con armadi a muro e impianti a norma, questo immobile è pronto per essere abitato. Non perdere l'occasione di vivere in un ambiente nuovo e luminoso. Contattaci allo 091552628 per maggiori informazioni e per organizzare una visita


