Valutazione immobiliare indipendente, accurata e gratuita
Appartamento in vendita a Villabate a 48.000 € (cod.64e31812)
Caasa non ha sufficienti informazioni per commentare l'appartamento in vendita a Villabate - 64e31812.
Analisi immobiliare
I dati in posseso di Caasa per quest'immobile sono insufficienti, inaffidabili o contraddittori per proporre un'analisi attendibile.
Mercato immobiliare a Villabate
Per quanto riguarda più in generale la città di Villabate, sono presenti al momento più di 300 annunci per
appartamenti in vendita (meno del 5% dell'intera provincia) .
Possiamo inoltre considerare che in tutta la città negli ultimi 6 mesi, i prezzi per appartamenti in vendita sono
in aumento (+3,32%).
NOVITÀ Il risultato che vedi dipende dai dati che siamo riusciti ad estrarre dall'annuncio: ottieni una stima più accuranta di questo immobile, inserendo dati più precisi.
N.B. L'Opinione di Caasa® è un servizio sperimentale realizzato tramite tecniche di Intelligenza Artificiale, fornito senza alcuna garanzia di correttezza e completezza. Leggi il disclaimer o segnalaci un problema.
IMMAGINI
IN SINTESI
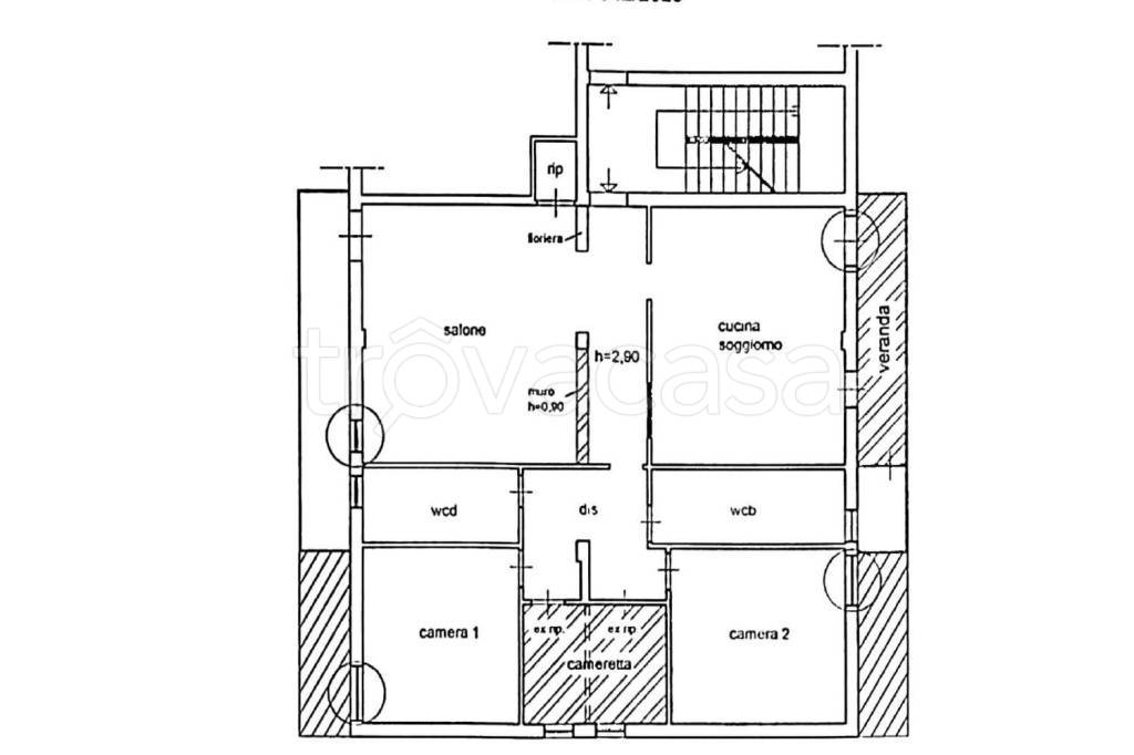
DESCRIZIONE
di recente costruzione con terrazza con cantina con balcone con cucina abitabile di recente costruzione in asta giudiziaria
Tribunale di Palermo Esecuzione immobiliare 542/2023 – Lotto unico Proposta di vendita di: piena proprietà di un appartamento al secondo piano, sito in Villabate (Pa), in Via Messina Marine n. 53/bis vicino al mare. L’appartamento si compone di: salo […]
