Valutazione immobiliare indipendente, accurata e gratuita
Casa indipendente in vendita a Terrasini in zona Paternella a 325.000 € (cod.65779345)
Caasa non ha sufficienti informazioni per commentare la casa indipendente a Terrasini in zona Paternella - 65779345.
Analisi immobiliare
I dati in posseso di Caasa per quest'immobile sono insufficienti, inaffidabili o contraddittori per proporre un'analisi attendibile.
Mercato immobiliare a Terrasini
Per quanto riguarda più in generale il comune di Terrasini, sono presenti al momento più di 200 annunci per
case indipendenti in vendita (meno del 5% dell'intera provincia)
e il maggior numero di annunci per questa tipologia sono relativi alla zona di Cala Rossa, mentre nella zona di Paternella è presente un numero significativamente inferiore di annunci.
La richiesta media nella zona dove sorge la casa indipendente (Paternella) è pari a
2.145 €/m² e ne fa la più pregiata del comune .
Relativamente alla dinamica dei prezzi, possiamo dire che negli ultimi 6 mesi i prezzi medi in tutto il comune per case indipendenti in vendita sono
in debole aumento (+1,60%).
NOVITÀ Il risultato che vedi dipende dai dati che siamo riusciti ad estrarre dall'annuncio: ottieni una stima più accuranta di questo immobile, inserendo dati più precisi.
N.B. L'Opinione di Caasa® è un servizio sperimentale realizzato tramite tecniche di Intelligenza Artificiale, fornito senza alcuna garanzia di correttezza e completezza. Leggi il disclaimer o segnalaci un problema.
IMMAGINI
IN SINTESI
PROPOSTO DA:
PROGETTARECASA
DESCRIZIONE
di nuova costruzione con terrazza con giardino di nuova costruzione con balcone
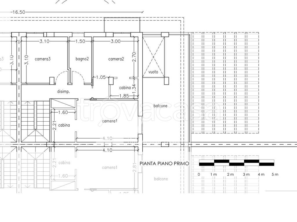
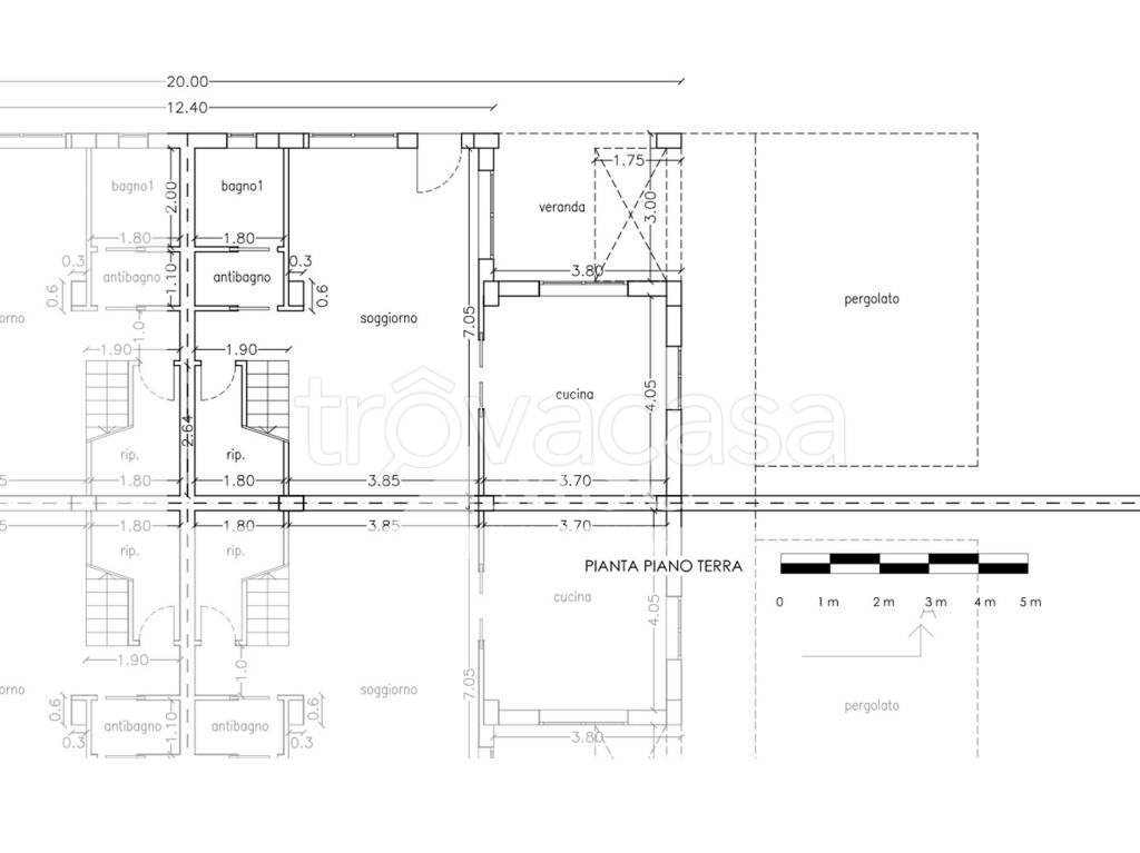
L’agenzia MSC Immobiliare propone in vendita una porzione di villa quadrifamiliare in costruzione con piscina, ubicata nel Comune di Terrasini, in C.da “Paternella”, ideale per chi ama la tranquillità della campagna caratterizzata da uliveti e agrumeti e il mare della spiaggia di Sancataldo distante 450 metri dall’ingresso del complesso. Ogni unità abitativa è stata progettata per dare la massima indipendenza a chi via abita con la realizzazione di una elegante piscina a fagiolo, giardino e spazi privati autonomi e verrà rifinita con materiali contemporanei facenti parte del capitolato che propone la società costruttrice. La villa si sviluppano su due piani fuori terra, ha una superficie di 130 mq con giardino di pertinenza di 800 mq circa e si compone dei seguenti ambienti: al piano terra si trova una cucina, un soggiorno collegato al grande pergolato esterno pensato per sostare comodamente all’esetrno nella stagione estiva, un bagnoi; al primo piano si trova la zona notte con tre camere da letto che si affacciano su balconi dai quali si gode di una bella vista panoramica del Golfo di Castellammare e della campagna circostante. L’accesso è comodo da strada comunale ampia ed asfaltata collegata alla strada statale 113, all‘interno della villa è presente un’area parcheggio privata. Dal punto di vista tecnologico l‘abitazione verrà dotata di cappotto per l’isolamento termico dell‘edificio, impianto fotovoltaico con batteria di accumulo, solare termico e infissi di ultima generazione in pvc con persiane in alluminio. COSULENZA GRATUITA MUTUI PRESSO LA NOSTRA AGENZIA Mettiamo a tua disposizione un esperto consulente mutui che ti fornirà la migliore soluzione finanziaria per le tue esisgenze

