Valutazione immobiliare indipendente, accurata e gratuita

Casa indipendente in vendita a Terrasini in zona Agli Androni a 260.000 € (cod.64e4199f)

Caasa non ha sufficienti informazioni per commentare la casa indipendente a Terrasini in zona Agli Androni - 64e4199f.

Analisi immobiliare
I dati in posseso di Caasa per quest'immobile sono insufficienti, inaffidabili o contraddittori per proporre un'analisi attendibile.
Mercato immobiliare a Terrasini
Per quanto riguarda più in generale il comune di Terrasini, sono presenti al momento più di 200 annunci per case indipendenti in vendita (meno del 5% dell'intera provincia) e il maggior numero di annunci per questa tipologia sono relativi alla zona di Cala Rossa, mentre la zona di Agli Androni risulta molto meno attiva considerando il numero di annunci presenti.
La richiesta media nella zona dove sorge la casa indipendente (Agli Androni) è pari a 2.125 €/m², molto vicina ai valori della zona Cala Rossa che sono i più alti del comune .
La dinamica dei prezzi in tutto il comune mostra che negli ultimi 6 mesi, i prezzi per case indipendenti in vendita sono sostanzialmente stabili (+0,65%).

NOVITÀ Il risultato che vedi dipende dai dati che siamo riusciti ad estrarre dall'annuncio: ottieni una stima più accuranta di questo immobile, inserendo dati più precisi.

N.B. L'Opinione di Caasa® è un servizio sperimentale realizzato tramite tecniche di Intelligenza Artificiale, fornito senza alcuna garanzia di correttezza e completezza. Leggi il disclaimer o segnalaci un problema.

IMMAGINI

IN SINTESI

Prezzo:
260.000 €
Superficie:
110 m²
Prezzo al m²:
2363 €/m²
Piano:
n.d.
Bagni:
2
Classe energetica:
A
Città:
Terrasini (PA)
Zona OMI:
E3 (ZONA LUNGOMARE)
Indirizzo:
Pubblicato:
lun 30 settembre 2024

DESCRIZIONE

con giardino con cantina con termocondizionamento con posto auto con riscaldamento autonomo per vacanza

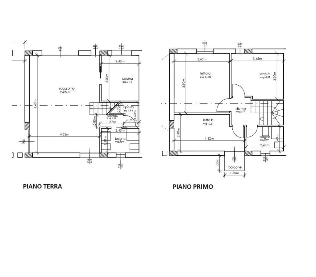
Terrasini, Via Agli Androni, in contesto residenziale con ampi viali e curati spazi verdi, vendesi porzione di villa bifamiliare di 110 mq circa con giardino di 150 mq circa di esclusiva pertinenza. Queste abitazioni moderne, con superficie abitativa distribuita su due livelli, offrono spazi pensati per il massimo comfort. Al piano terra si sviluppa la luminosa zona giorno con cucina e soggiorno, ideale per pranzi in famiglia e per vivere momenti di convivialità. Allo stesso piano ritroviamo un bagno con doccia e un comodo ripostiglio. Al piano superiore si sviluppa la zona notte con una spaziosa camera da letto matrimoniale, due camerette perfette per bambini e/o ospiti e un secondo bagno al servizio delle camere. L’ampio giardino privato è il luogo perfetto per godere di momenti di relax e organizzare attività all’aria aperta con amici e familiari. La proprietà dispone, inoltre, di posto auto di esclusiva pertinenza. Ogni villetta è progettata con un occhio attento alla sostenibilità ed è dotata di isolamento termico con sistema a cappotto, infissi in vetrocamera in allumino/PVC, impianto di riscaldamento autonomo e predisposizione per condizionatori, assicurando un elevato risparmio energetico. Tra le dotazioni tecnologiche sono incluse un impianto solare termico per l’acqua sanitaria e un impianto fotovoltaico da 3 kW con batteria di accumulo da 2,5 kW. La garantisce efficienza energetica, consumi ridotti e un basso impatto ambientale. Infine la possibilità di personalizzare gli spazi interni e i materiali e di scegliere dal pavimento alle finiture permette di creare un ambiente che rispecchi il tuo stile e le tue esigenze. Ogni dettaglio sarà pensato per rendere la tua casa unica e perfettamente adattata ai tuoi gusti e al tuo modo di vivere. L’immobile rappresenta la soluzione abitativa ideale sia per chi ricerca una villetta a pochi km dal centro abitato di Terrasini per viverci comodamente tutto l'anno, sia per chi desidera una dimora per le proprie vacanze estive a poca distanza dal mare. Le pla[…]

  • immobiliare.it
  • wikicasa.it
  • trovacasa.net