Valutazione immobiliare indipendente, accurata e gratuita
L'Opinione di Caasa® per l'appartamento in vendita a Palermo a 230.000 € (cod.6561d91d)
Secondo Caasa, per l'appartamento in vendita a Palermo, la richiesta di 230.000 € è leggermente vantaggiosa rispetto agli annunci simili.
Analisi immobiliare
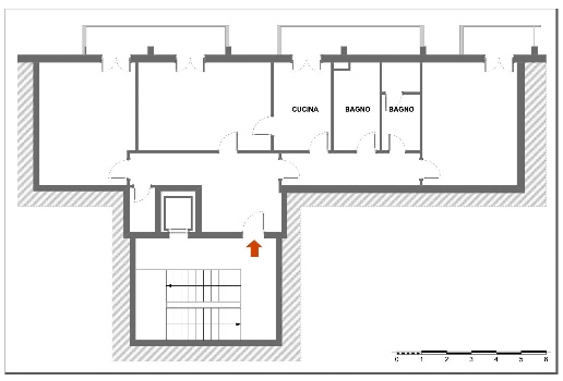
L'appartamento, situato vicino a Viale Marchese di Villabianca nella zona OMI C1, è proposto in vendita a
230.000 € per una
superficie commerciale di
120 m² e quindi ad un prezzo per metro quadrato pari a
1916 €/m²
.
Tale prezzo
è un po' più basso di quello stimato da Caasa per immobili in vendita simili per tipologia, caratteristiche, classe energetica e localizzati nella stessa zona OMI, che è compreso tra
1.989 €/m² e
2.169 €/m².
La conoscenza con buona approssimazione della localizzazione dell'immobile ha consentito di utilizzare come raffronto i dati medi elaborati esattamente nella zona OMI di appertenenza (SCIUTI - NOTARBARTOLO - VILLABIANCA - DE GASPERI - GIOTTO - NEBRODI - GALILEI). Inoltre, Caasa ha potuto affinare la stima anche con la conoscenza della classe energetica (G) oltre che di alcune caratteristiche significative come la presenza dell'ascensore. Per queste considerazioni i valori accettabili per l'offerta costituiscono un intervallo abbastanza limitato.
Mercato immobiliare a Palermo
Per quanto riguarda più in generale la città di Palermo, sono presenti al momento ben oltre 5.000 annunci per
appartamenti in vendita (quasi la metà dell'intera provincia)
e il maggior numero di annunci per questa tipologia sono relativi alla zona di Libertà.
Relativamente alla dinamica dei prezzi, possiamo dire che negli ultimi 6 mesi i prezzi medi in tutta la città per appartamenti in vendita sono
sostanzialmente stabili (+0,97%).
NOVITÀ Il risultato che vedi dipende dai dati che siamo riusciti ad estrarre dall'annuncio: ottieni una stima più accuranta di questo immobile, inserendo dati più precisi.
N.B. L'Opinione di Caasa® è un servizio sperimentale realizzato tramite tecniche di Intelligenza Artificiale, fornito senza alcuna garanzia di correttezza e completezza. Leggi il disclaimer o segnalaci un problema.
IMMAGINI
IN SINTESI
PROPOSTO DA:
TRAIM GROUP DI TRANCHIDA IGNAZIO CLAUDIO
DESCRIZIONE
con balcone con ascensore con termocondizionamento con riscaldamento autonomo
Traim GROUP propone in vendita un appartamento situato tra Via Marchese di Villabianca e Via Sampolo, nel cuore di Palermo, ed esattamente in Via Degli Orti, in una delle zone più interessanti della città. Questo spazioso immobile di 120 mq. si trova al secondo piano di un signorile edificio dotato di ascensore e servizio di portierato. La proprietà si affaccia su Via Degli Orti con tre balconi, ed è composta da due camere da letto, un soggiorno che offre ampi spazi per momenti di relax e convivialità, la cucina è funzionale, perfetta per chi ama cucinare. L'appartamento dispone di due bagni, assicurando comodità e privacy. Le condizioni sono abitabili, gli infissi in legno, riscaldamento autonomo e aria condizionata in tutti gli ambienti, per garantire il massimo del comfort in ogni stagione. L'ingresso condominiale è curato e accogliente. Questa è un'opportunità imperdibile per chi desidera vivere in una delle zone più ricercate di Palermo, immersi nella vivacità e nei servizi che la città ha da offrire. Non lasciarti sfuggire questa occasione! Contattaci per maggiori informazioni e per organizzare una visita. Si garantisce regolarità urbanistica e catastale. Il presente testo ha il solo scopo illustrativo, potrebbe contenere errori e/o omissioni e non costituisce elemento contrattuale. Info Tel. 091 5556020 - Cell. 392 7964409 EPI: 180 kwh/m2 anno

