Valutazione immobiliare indipendente, accurata e gratuita
Appartamento in vendita a Palermo in zona Sferracavallo (cod.651813b5)
Caasa non ha sufficienti informazioni per commentare l'appartamento a Palermo in zona Sferracavallo - 651813b5.
Analisi immobiliare
I dati in posseso di Caasa per quest'immobile sono insufficienti, inaffidabili o contraddittori per proporre un'analisi attendibile.
Mercato immobiliare a Palermo
Per quanto riguarda più in generale la città di Palermo, sono presenti al momento ben oltre 5.000 annunci per
appartamenti in vendita (quasi la metà dell'intera provincia)
e il maggior numero di annunci per questa tipologia sono relativi alla zona di Libertà, mentre la zona di Sferracavallo risulta molto meno attiva considerando il numero di annunci presenti.
La richiesta media nella zona dove sorge l'appartamento (Sferracavallo) è pari a
1.465 €/m², non troppo distante dai valori medi cittadini per appartamenti in vendita.
Relativamente alla dinamica dei prezzi, possiamo dire che negli ultimi 6 mesi i prezzi medi in tutta la città per appartamenti in vendita sono
in sostanziale aumento (+6,20%).
NOVITÀ Il risultato che vedi dipende dai dati che siamo riusciti ad estrarre dall'annuncio: ottieni una stima più accuranta di questo immobile, inserendo dati più precisi.
N.B. L'Opinione di Caasa® è un servizio sperimentale realizzato tramite tecniche di Intelligenza Artificiale, fornito senza alcuna garanzia di correttezza e completezza. Leggi il disclaimer o segnalaci un problema.
IMMAGINI
IN SINTESI
PROPOSTO DA:
TRAIM GROUP DI TRANCHIDA IGNAZIO CLAUDIO
DESCRIZIONE
con cucina abitabile con termocondizionamento con riscaldamento autonomo con caminetto
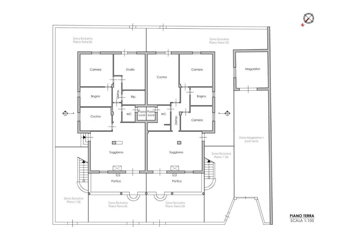
L'agenzia immobiliare Traim GROUP propone in vendita a Palermo, nella zona di Cardillo, appartamenti di varie quadrature in palazzina costituita dai piani terra e primo, in un contesto signorile. Questa soluzione abitativa si distingue per la sua ampiezza e funzionalità, con un layout che per ogni singolo appartamento, comprende 4 vani ben distribuiti. Gli immobili sono composti da un luminoso soggiorno doppio con camino, ideale per accogliere amici e familiari, due camere da letto spaziose, due bagni e una cucina abitabile, perfetta per chi ama cucinare e trascorrere momenti conviviali. Le condizioni delgli appartamenti sono buone, con riscaldamento autonomo che garantisce comfort e indipendenza. Inoltre, l'ingresso è indipendente, offrendo maggiore privacy. Questa proposta rappresenta un'ottima opportunità per chi cerca un'abitazione in una zona tranquilla ma ben servita, a pochi passi da tutti i servizi necessari. Non perdere l'occasione di visitare questo appartamento, perfetto per famiglie o professionisti in cerca di spazio e comfort. Contattaci per maggiori informazioni e per prenotare una visita. Il presente testo ha il solo scopo illustrativo, potrebbe contenere errori e/o omissioni e non costituisce elemento contrattuale. Info Tel. 091 5556020 - Cell. 392 7964409 EPI: 180,00 kwh/m2 anno




