Valutazione immobiliare indipendente, accurata e gratuita
Appartamento in vendita a Palermo in zona Ciaculli a 149.000 € (cod.6505581b)
Caasa non ha sufficienti informazioni per commentare l'appartamento in vendita a Palermo in zona Ciaculli - 6505581b.
Analisi immobiliare
I dati in posseso di Caasa per quest'immobile sono insufficienti, inaffidabili o contraddittori per proporre un'analisi attendibile.
Mercato immobiliare a Palermo
Per quanto riguarda più in generale la città di Palermo, sono presenti al momento ben oltre 5.000 annunci per
appartamenti in vendita (quasi la metà dell'intera provincia)
e il maggior numero di annunci per questa tipologia sono relativi alla zona di Centro storico, mentre la zona di Ciaculli risulta molto meno attiva considerando il numero di annunci presenti.
La richiesta media nella zona dove sorge l'appartamento (Ciaculli) è pari a
985 €/m² che la rende la più economica della città .
La dinamica dei prezzi in tutta la città mostra che negli ultimi 6 mesi, i prezzi per appartamenti in vendita sono
in leggero aumento (+2,50%).
Invece i prezzi per la zona di sono sostanzialmente stabili.
NOVITÀ Il risultato che vedi dipende dai dati che siamo riusciti ad estrarre dall'annuncio: ottieni una stima più accuranta di questo immobile, inserendo dati più precisi.
N.B. L'Opinione di Caasa® è un servizio sperimentale realizzato tramite tecniche di Intelligenza Artificiale, fornito senza alcuna garanzia di correttezza e completezza. Leggi il disclaimer o segnalaci un problema.
IMMAGINI
IN SINTESI
PROPOSTO DA:
CASARETE
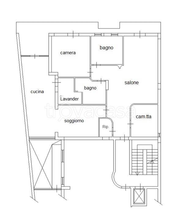
DESCRIZIONE
di recente ristrutturazione con terrazza con cantina di recente ristrutturazione con ascensore con angolo cottura con caminetto
Scopri questo splendido appartamento completamente ristrutturato, situato in una posizione strategica nei pressi dello svincolo autostradale. Immerso in un contesto molto tranquillo, questo immobile è l'ideale per chi cerca comfort e tranquillità senza rinunciare alla comodità di avere tutti i servizi a portata di mano. L'appartamento si sviluppa su una superficie commerciale di 170 mq e offre un ampio salone, una grande cucina-soggiorno dotata di angolo cottura in muratura, perfetta per le cene in famiglia. La camera da letto, insieme alla cameretta, forniscono spazio sufficiente per ogni esigenza. Due bagni moderni e un pratico ripostiglio ed una lavanderia completano la disposizione interna. Il lastrico solare di 160 mq è un vero e proprio gioiello, ideale per godere di momenti di relax all'aperto. Gli interni vantano finiture di pregio, con pavimentazione in gres porcellanato e infissi in alluminio con vetrocamera. Il camino a legna aggiunge un tocco di calore e accoglienza, mentre i controsoffitti di design conferiscono un'atmosfera moderna e raffinata. Situato al secondo piano, l'appartamento offre la possibilità di installare un ascensore, già presente il vano dove allocarlo. Con armadi a muro e impianti a norma, questo immobile è pronto per essere abitato. Non perdere l'occasione di vivere in un ambiente nuovo e luminoso. Contattaci allo 091552628 per maggiori informazioni e per organizzare una visita

