Valutazione immobiliare indipendente, accurata e gratuita
Appartamento in vendita a Palermo in zona Chiavelli a 399.000 € (cod.65008210)
Caasa non ha sufficienti informazioni per commentare l'appartamento a Palermo in zona Chiavelli - 65008210.
Analisi immobiliare
I dati in posseso di Caasa per quest'immobile sono insufficienti, inaffidabili o contraddittori per proporre un'analisi attendibile.
Mercato immobiliare a Palermo
Per quanto riguarda più in generale la città di Palermo, sono presenti al momento ben oltre 5.000 annunci per
appartamenti in vendita (quasi la metà dell'intera provincia)
e il maggior numero di annunci per questa tipologia sono relativi alla zona di Libertà, mentre la zona di Chiavelli risulta molto meno attiva considerando il numero di annunci presenti.
La richiesta media nella zona dove sorge l'appartamento (Chiavelli pressi Via Falsomiele) è pari a
1.125 €/m², di poco superiore al valore della zona Ciaculli che è la più economica della città .
Per quanto riguarda la dinamica dei prezzi, negli ultimi 6 mesi i prezzi medi in tutta la città per appartamenti in vendita sono
in sostanziale aumento (+6,20%).
NOVITÀ Il risultato che vedi dipende dai dati che siamo riusciti ad estrarre dall'annuncio: ottieni una stima più accuranta di questo immobile, inserendo dati più precisi.
N.B. L'Opinione di Caasa® è un servizio sperimentale realizzato tramite tecniche di Intelligenza Artificiale, fornito senza alcuna garanzia di correttezza e completezza. Leggi il disclaimer o segnalaci un problema.
IMMAGINI
IN SINTESI
PROPOSTO DA:
Locami Srl
DESCRIZIONE
da ristrutturare da ristrutturare con giardino
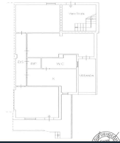
Palermo – Bonagia / Via Falsomiele Villa indipendente in residence | 800 mq totali su lotto da 1.000 mq | 12 locali | 6 camere | 4 servizi Nel cuore di Bonagia, in una posizione strategica ma collinare e riservata, tra lo svincolo autostradale di via Giafar e la Circonvallazione, proponiamo in vendita una villa indipendente all'interno di un residence privato. Un luogo sospeso tra comodità urbana e suggestioni naturali, in cui gli alberi che circondano la proprietà, in primavera, profumano intensamente di zagara in fiore. Posizione ideale: - Collegamenti rapidi con autostrada A19 e circonvallazione. - A pochi minuti dal Centro Commerciale Forum - Zona tranquilla, collinare e silenziosa, immersa nel verde Caratteristiche immobile: - Superficie interna: circa 800 mq su 3 livelli (seminterrato, piano terra, primo piano). - Lotto complessivo: 1.000 mq. - Struttura da ristrutturare, con grandissimo potenziale. - Sanatoria quasi completata - Possibilità di destinazione residenziale o imprenditoriale Ideale per: - Famiglie che desiderano spazi importanti e contesto esclusivo. - Studi professionali associati o centri medici - Investitori immobiliari (frazionamento, short rent, turismo) Punti di forza: - Privacy e tranquillità. - Ampi spazi esterni per giardino, piscina, zona relax. - Contesto verde, collinare, e profumato di zagara in fiore. Una proprietà da valorizzare, pensata per chi desidera vivere o investire in una zona connessa, ma ancora piena di respiro e suggestione. Richiesta: 425.000€. APE: G Visionabile previo appuntamento telefonico. Dopo la Vendita Locami propone la Gestione Immobiliare certificata. Locami Gestione Immobiliare certificata valorizza/gestisce il Tuo investimento con un posizionamento multibrand Locami. LOCAMI BUSINESS È UN BRAND CHE VENDE, GESTISCE E METTE A REDDITO IL TUO IMMOBILE. Real Estate - Broker S.R.L.S. Via Graziano Imperatore, 29, - 20162 Milano Numero Verde 800.210.665 (ES56







