Valutazione immobiliare indipendente, accurata e gratuita
Casa indipendente in vendita a Palermo in zona Sferracavallo a 170.000 € (cod.64fe9738)
Caasa non ha sufficienti informazioni per commentare la casa indipendente a Palermo in zona Sferracavallo - 64fe9738.
Analisi immobiliare
I dati in posseso di Caasa per quest'immobile sono insufficienti, inaffidabili o contraddittori per proporre un'analisi attendibile.
Mercato immobiliare a Palermo
Per quanto riguarda più in generale la città di Palermo, sono presenti al momento ben oltre 3.000 annunci per
case indipendenti in vendita (meno di un terzo dell'intera provincia)
e il maggior numero di annunci per questa tipologia sono relativi alla zona di Libertà, mentre la zona di Sferracavallo risulta molto meno attiva considerando il numero di annunci presenti.
La richiesta media nella zona dove sorge la casa indipendente (Sferracavallo) è pari a
1.545 €/m², non troppo distante dai valori medi cittadini per case indipendenti in vendita.
Per quanto riguarda la dinamica dei prezzi, negli ultimi 6 mesi i prezzi medi in tutta la città per case indipendenti in vendita sono
in aumento (+4,85%).
NOVITÀ Il risultato che vedi dipende dai dati che siamo riusciti ad estrarre dall'annuncio: ottieni una stima più accuranta di questo immobile, inserendo dati più precisi.
N.B. L'Opinione di Caasa® è un servizio sperimentale realizzato tramite tecniche di Intelligenza Artificiale, fornito senza alcuna garanzia di correttezza e completezza. Leggi il disclaimer o segnalaci un problema.
IMMAGINI
IN SINTESI
PROPOSTO DA:
Punto Casa Virga srl
Via XII gennaio 1/g, Palermo (PA)
Verificata da Caasa®
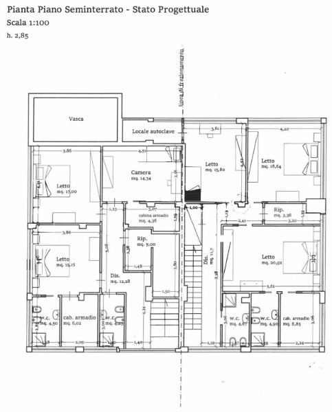
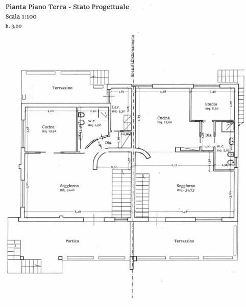
DESCRIZIONE
da ristrutturare da ristrutturare con giardino
La Punto Casa Virga propone in vendita una villa Bifamiliare costruita negli anni 80, l'immobile attualmente è un unica unità immobiliare ma verrà frazionato in seguito ed è attualmente composto da:P.T. (Rialzato dal piano Strada) di 200mq circa + ve […]
