Valutazione immobiliare indipendente, accurata e gratuita
Casa indipendente in vendita a Casteldaccia a 67.000 € (cod.64fa6757)
Caasa non ha sufficienti informazioni per commentare la casa indipendente in vendita a Casteldaccia - 64fa6757.
Analisi immobiliare
I dati in posseso di Caasa per quest'immobile sono insufficienti, inaffidabili o contraddittori per proporre un'analisi attendibile.
Mercato immobiliare a Casteldaccia
Per quanto riguarda più in generale il comune di Casteldaccia, sono presenti al momento più di 200 annunci per
case indipendenti in vendita (meno del 5% dell'intera provincia) .
La dinamica dei prezzi in tutto il comune mostra che negli ultimi 6 mesi, i prezzi per case indipendenti in vendita sono
sostanzialmente stabili (-0,55%).
NOVITÀ Il risultato che vedi dipende dai dati che siamo riusciti ad estrarre dall'annuncio: ottieni una stima più accuranta di questo immobile, inserendo dati più precisi.
N.B. L'Opinione di Caasa® è un servizio sperimentale realizzato tramite tecniche di Intelligenza Artificiale, fornito senza alcuna garanzia di correttezza e completezza. Leggi il disclaimer o segnalaci un problema.
IMMAGINI
IN SINTESI
PROPOSTO DA:
Dimora Immobiliare (Dimora Immobiliare di Sabrina Tortora)
Via Orazio Costantino, 5, Casteldaccia (PA)
DESCRIZIONE
da ristrutturare con terrazza con balcone con giardino da ristrutturare con angolo cottura con caminetto con cortile
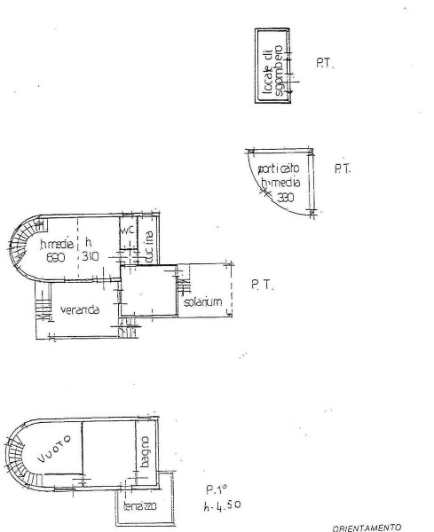
Casteldaccia, Cozzo Brogna, panoramica e luminosa villetta indipendente immersa nel verde a pochi km dal centro abitato. 90 mq circa distribuiti su due livelli, ingresso da ampia veranda di circa 20 mq su spazioso salone impreziosito da un camino e da elegante scala a vista con tetti alti oltre i 6 metri, un vano soggiorno, angolo cottura realizzato in muratura ed un bagno. Al primo piano una camera da letto con terrazzino panoramicissimo ed un bagno con vasca. Il giardino di circa 600 mq ospita, oltre a numerosi alberi che regalano una intensa frescura nel periodo estivo, anche un patio con angolo cottura e barbecue, un piccolo locale di sgombero e una comoda zona solarium. L'immobile è totalmente da ristrutturare.. Prezzo un pò trattabile





