Valutazione immobiliare indipendente, accurata e gratuita
Casa indipendente in vendita a Carini a 300.000 € (cod.6505aeb6)
Caasa non ha sufficienti informazioni per commentare la casa indipendente in vendita a Carini - 6505aeb6.
Analisi immobiliare
I dati in posseso di Caasa per quest'immobile sono insufficienti, inaffidabili o contraddittori per proporre un'analisi attendibile.
Mercato immobiliare a Carini
Per quanto riguarda più in generale la città di Carini, sono presenti al momento oltre 500 annunci per
case indipendenti in vendita (meno del 10% dell'intera provincia)
e il maggior numero di annunci per questa tipologia sono relativi alla zona di Villagrazia di Carini.
Possiamo inoltre considerare che in tutta la città negli ultimi 6 mesi, i prezzi per case indipendenti in vendita sono
sostanzialmente stabili (-0,68%).
NOVITÀ Il risultato che vedi dipende dai dati che siamo riusciti ad estrarre dall'annuncio: ottieni una stima più accuranta di questo immobile, inserendo dati più precisi.
N.B. L'Opinione di Caasa® è un servizio sperimentale realizzato tramite tecniche di Intelligenza Artificiale, fornito senza alcuna garanzia di correttezza e completezza. Leggi il disclaimer o segnalaci un problema.
IMMAGINI
IN SINTESI
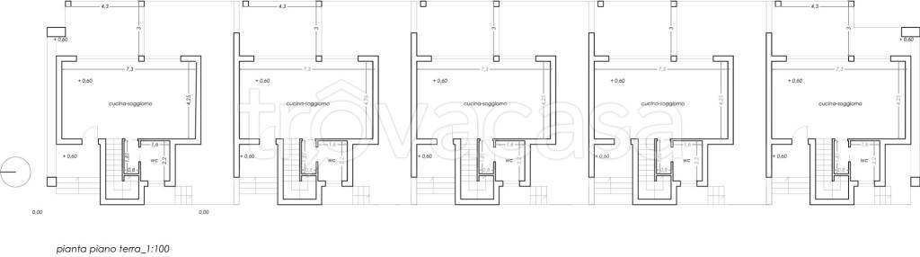
DESCRIZIONE
di nuova costruzione con terrazza con giardino con posto auto di nuova costruzione
A pochi passi dallo svincolo autostradale e dal Centro Commerciale Poseidon, nasce un esclusivo complesso di ville moderne e funzionali, perfette per chi sogna comfort, spazio e tranquillità. ? ???? 140 mq di eleganza e design: ???? Piano Terra: ampia cucina-soggiorno, bagno e portico ideale per i tuoi momenti di relax. ???? Piano Primo: camera matrimoniale, due camere, bagno e terrazzo panoramico. ???? Spazio esterno di 400 mq — perfetto per giardino, area barbecue o piscina privata. ???? Dotazioni e comfort: * Posto auto interno * Infissi in doppio vetro temperato selettivo * Porta blindata * Allaccio rete fognaria comunale * Predisposizione per cancello automatico, pannelli fotovoltaici, sistema d’allarme e videosorveglianza ???? Zona strategica e tranquilla – ideale per vivere o investire! ???? Per informazioni e visite: ???? 091 8674097 – 340 4120288 ???? Vivi la tua nuova casa a Carini… moderna, funzionale e a misura di famiglia

