Valutazione immobiliare indipendente, accurata e gratuita
Casa indipendente in vendita a Bagheria in zona Centro Città a 23.000 € (cod.652c242c)
Caasa non ha sufficienti informazioni per commentare la casa indipendente a Bagheria in zona Centro Città - 652c242c.
Analisi immobiliare
I dati in posseso di Caasa per quest'immobile sono insufficienti, inaffidabili o contraddittori per proporre un'analisi attendibile.
Mercato immobiliare a Bagheria
Per quanto riguarda più in generale la città di Bagheria, sono presenti al momento oltre 500 annunci per
case indipendenti in vendita (meno del 10% dell'intera provincia)
e il maggior numero di annunci per questa tipologia sono relativi proprio alla zona di Centro Città.
La richiesta media nella zona dove sorge la casa indipendente (Centro Città pressi Via Vittorio Veneto) è pari a
845 €/m² che la rende la più economica della città .
Per quanto riguarda la dinamica dei prezzi, negli ultimi 6 mesi i prezzi medi in tutta la città per case indipendenti in vendita sono
in leggero aumento (+2,29%).
Invece i prezzi per la zona di sono in sostanziale aumento.
NOVITÀ Il risultato che vedi dipende dai dati che siamo riusciti ad estrarre dall'annuncio: ottieni una stima più accuranta di questo immobile, inserendo dati più precisi.
N.B. L'Opinione di Caasa® è un servizio sperimentale realizzato tramite tecniche di Intelligenza Artificiale, fornito senza alcuna garanzia di correttezza e completezza. Leggi il disclaimer o segnalaci un problema.
IMMAGINI
IN SINTESI
PROPOSTO DA:
IMMOBILIARE CASCINO
DESCRIZIONE
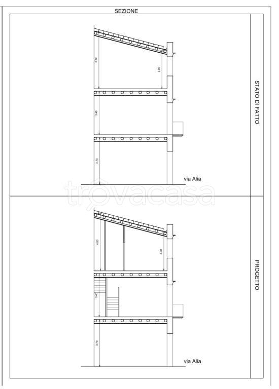
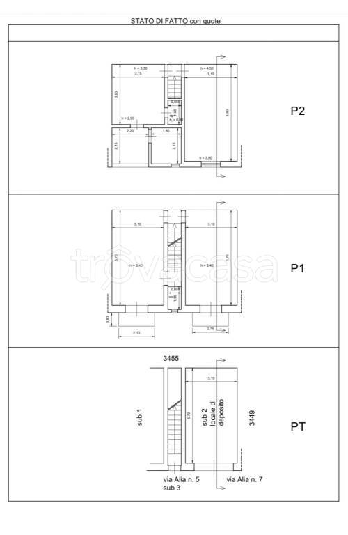
da ristrutturare con terrazza da ristrutturare con posto auto con posto moto
CHIAMA ORA! TEL.0912403076 RIF:V0305 (Palazzina indipendente con magazzino – Interamente da ristrutturare) Immobiliare Cascino propone in vendita esclusiva una palazzina indipendente situata in una delle zone più richieste e servite di Bagheria, a breve distanza da via Vittorio Veneto e via Palagonia, contesti caratterizzati da attività commerciali, scuole, servizi e facilità di parcheggio. -Descrizione dell’immobile La proprietà si sviluppa su due livelli fuori terra, per una superficie di 50 m² a piano, oltre a un magazzino di 30 m² collegato ma con ingresso autonomo. Composizione attuale: • Piano Terra: superficie di 50 m², da distribuire; accessi indipendenti; possibilità di creare zona giorno o unità abitativa autonoma. • Primo Piano: superficie di 50 m², luminoso e con buone altezze; ideale per realizzare zona notte, seconda abitazione o appartamento indipendente. • Magazzino (30 m²): categoria accessoria, con vano unico e ingresso da strada; versatile per uso deposito, laboratorio, box moto/bici o pertinenza delle future unità abitative. - Stato e potenzialità L’edificio è interamente da ristrutturare, caratteristica che offre un’elevata possibilità di personalizzazione e progettazione secondo le proprie esigenze. Possibili sviluppi progettuali: • Realizzazione di due unità abitative totalmente indipendenti (una per piano) • Creazione di unica abitazione su due livelli con ampie zone living • Annesso magazzino utilizzabile come deposito, studio, locale tecnico o pertinenza • Bonus fiscali potenzialmente applicabili (secondo normativa vigente) -Posizione L’immobile si trova in zona centrale e ben collegata, a pochi metri da: • Via Vittorio Veneto • Via Palagonia • Servizi di prima necessità • Mezzi pubblici • Attività commerciali e scuole Posizione ideale sia per uso residenziale che per investimento, grazie alla richiesta abitativa costante nella zona. ? Per info e appuntamenti: IMMOBILIARE CASCINO 091 240 30 76

