Valutazione immobiliare indipendente, accurata e gratuita
Negozio in affitto a Bagheria a 2.500 € mese (cod.651e6fe1)
Caasa non ha sufficienti informazioni per commentare il negozio in affitto a Bagheria - 651e6fe1.
Analisi immobiliare
I dati in posseso di Caasa per quest'immobile sono insufficienti, inaffidabili o contraddittori per proporre un'analisi attendibile.
Mercato immobiliare a Bagheria
Per quanto riguarda più in generale la città di Bagheria, sono presenti al momento circa cento annunci per
negozi in affitto (meno del 10% dell'intera provincia)
e il maggior numero di annunci per questa tipologia sono relativi alla zona di Centro Città.
Vedi altre informazioni direttamente su
Mercato-Immobiliare.info
NOVITÀ Il risultato che vedi dipende dai dati che siamo riusciti ad estrarre dall'annuncio: ottieni una stima più accuranta di questo immobile, inserendo dati più precisi.
N.B. L'Opinione di Caasa® è un servizio sperimentale realizzato tramite tecniche di Intelligenza Artificiale, fornito senza alcuna garanzia di correttezza e completezza. Leggi il disclaimer o segnalaci un problema.
IMMAGINI
IN SINTESI
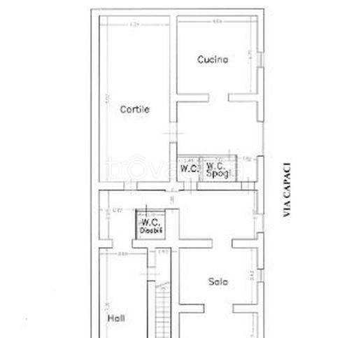
DESCRIZIONE
edificio storico
Bagheria, via Consolare fronte Palazzo Cuto, la nostra agenzia immobiliare propone in locazione all'interno di uno stabile storico, locale commerciale in fase di ristrutturazione, ideale per ristorazione o centro estetico, composto da un ingresso, 3 sale, una cucina, 1 w. c. , 1 w. c per disabili, uno spogliatoio e area esterna di pertinenza di circa 42 m. q.L'immobile viene consegnato con pavimentazione in gress porcellanato effetto legno, impianti a norma, predisposizione climatizzatori e predisposizione per una cucina.Zona altamente commerciale, a pochi passi dalla stazione ferroviaria.La ristrutturazione potra essere variata in base al tipo di attivita


