Valutazione immobiliare indipendente, accurata e gratuita
Casa indipendente in vendita a Piraino in zona Calanovella a 51.293 € (cod.6595d87c)
Caasa non ha sufficienti informazioni per commentare la casa indipendente a Piraino in zona Calanovella - 6595d87c.
Analisi immobiliare
I dati in posseso di Caasa per quest'immobile sono insufficienti, inaffidabili o contraddittori per proporre un'analisi attendibile.
Mercato immobiliare a Piraino
Per quanto riguarda più in generale il comune di Piraino, sono presenti al momento più di trenta annunci per
case indipendenti in vendita (meno dell'1% dell'intera provincia)
e il maggior numero di annunci per questa tipologia sono relativi alla zona di Gliaca, ma anche la zona di Calanovella è molto attiva dal punto di vista immobiliare.
NOVITÀ Il risultato che vedi dipende dai dati che siamo riusciti ad estrarre dall'annuncio: ottieni una stima più accuranta di questo immobile, inserendo dati più precisi.
N.B. L'Opinione di Caasa® è un servizio sperimentale realizzato tramite tecniche di Intelligenza Artificiale, fornito senza alcuna garanzia di correttezza e completezza. Leggi il disclaimer o segnalaci un problema.
IMMAGINI
IN SINTESI
PROPOSTO DA:
Centro Aste Franchising
DESCRIZIONE
con terrazza con giardino con balcone in asta giudiziaria con angolo cottura
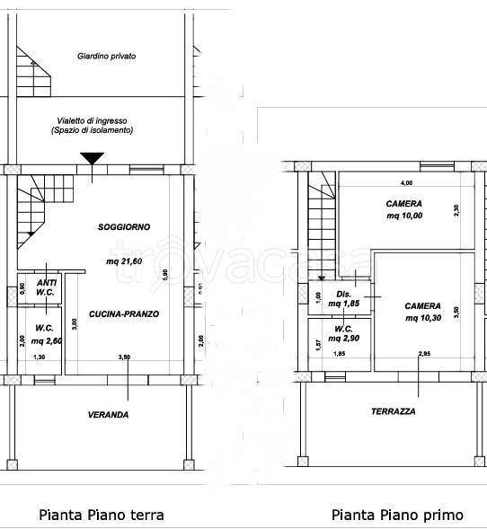
Asta villetta a schiera a Piraino (ME) [SY605939] Via Pietro Mascagni, 2, Calanovella, 98060 Piraino ME, Italia Appartamento su due piani sito in PIRAINO, frazione Calanovella, via Calanovella snc, composto da piano terra e primo di fabbricato a due […]
