Valutazione immobiliare indipendente, accurata e gratuita
Casa indipendente in vendita a Piraino in zona Calanovella a 51.293 € (cod.638d8a40)
Caasa non ha sufficienti informazioni per commentare la casa indipendente a Piraino in zona Calanovella - 638d8a40.
Analisi immobiliare
I dati in posseso di Caasa per quest'immobile sono insufficienti, inaffidabili o contraddittori per proporre un'analisi attendibile.
Mercato immobiliare a Piraino
Per quanto riguarda più in generale il comune di Piraino, sono presenti al momento più di trenta annunci per
case indipendenti in vendita (meno dell'1% dell'intera provincia)
e il maggior numero di annunci per questa tipologia sono relativi alla zona di Gliaca, mentre la zona di Calanovella risulta molto meno attiva considerando il numero di annunci presenti.
Per quanto riguarda la dinamica dei prezzi, negli ultimi 6 mesi i prezzi medi in tutto il comune per case indipendenti in vendita sono
in sostanziale aumento (+6,60%).
NOVITÀ Il risultato che vedi dipende dai dati che siamo riusciti ad estrarre dall'annuncio: ottieni una stima più accuranta di questo immobile, inserendo dati più precisi.
N.B. L'Opinione di Caasa® è un servizio sperimentale realizzato tramite tecniche di Intelligenza Artificiale, fornito senza alcuna garanzia di correttezza e completezza. Leggi il disclaimer o segnalaci un problema.
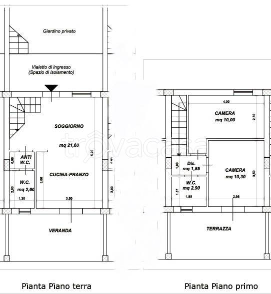
IMMAGINI
IN SINTESI
PROPOSTO DA:
Centro Aste Franchising
DESCRIZIONE
con terrazza con balcone in asta giudiziaria con angolo cottura
Asta villetta a schiera a Piraino (ME) [SY570471] via Calanovella 98060 Calanovella di Piraino ME, Italia Appartamento su due piani sito in PIRAINO, frazione Calanovella, via Calanovella snc, composto da piano terra e primo di fabbricato a due elevaz […]
