Valutazione immobiliare indipendente, accurata e gratuita
Casa indipendente in vendita a Zafferana Etnea a 225.000 € (cod.651b822a)
Caasa non ha sufficienti informazioni per commentare la casa indipendente in vendita a Zafferana Etnea - 651b822a.
Analisi immobiliare
I dati in posseso di Caasa per quest'immobile sono insufficienti, inaffidabili o contraddittori per proporre un'analisi attendibile.
Mercato immobiliare a Zafferana Etnea
Per quanto riguarda più in generale il comune di Zafferana Etnea, sono presenti al momento più di 150 annunci per
case indipendenti in vendita (meno del 5% dell'intera provincia) .
Possiamo inoltre considerare che in tutto il comune negli ultimi 6 mesi, i prezzi per case indipendenti in vendita sono
in sostanziale aumento (+6,29%).
NOVITÀ Il risultato che vedi dipende dai dati che siamo riusciti ad estrarre dall'annuncio: ottieni una stima più accuranta di questo immobile, inserendo dati più precisi.
N.B. L'Opinione di Caasa® è un servizio sperimentale realizzato tramite tecniche di Intelligenza Artificiale, fornito senza alcuna garanzia di correttezza e completezza. Leggi il disclaimer o segnalaci un problema.
IMMAGINI
IN SINTESI
PROPOSTO DA:
giorgi immobiliare snc
DESCRIZIONE
di nuova costruzione con giardino con posto auto con terrazza con garage con cantina di nuova costruzione
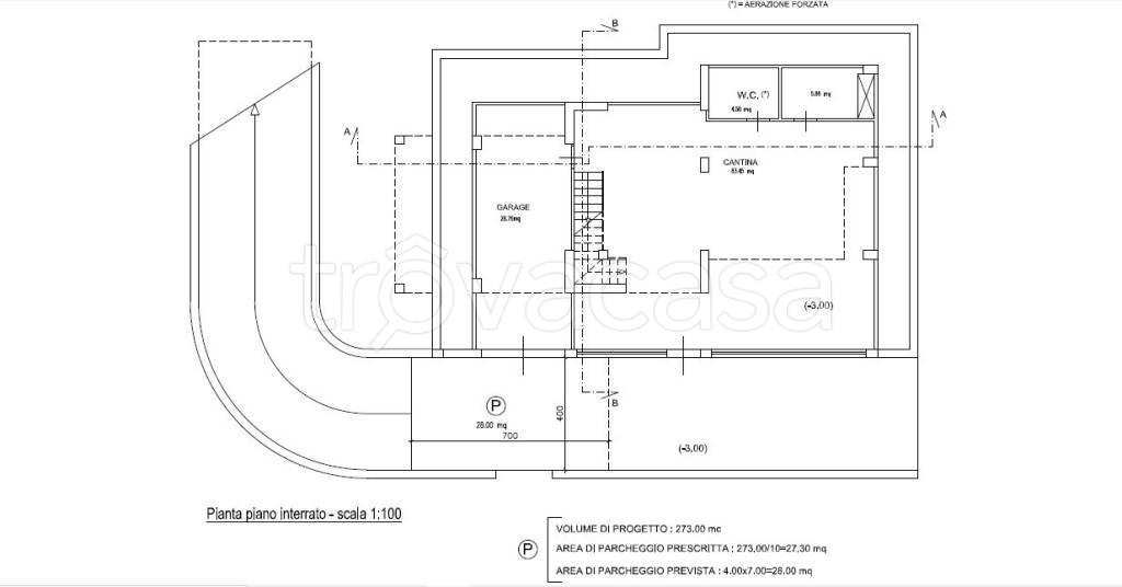
La Giorgi propone alla vendita, all'interno di un lotto di ca 2300 metri quadri, due ville singole poste in posizione panoramica, della superficie interna di ca 200 metri quadri da completare. Ampi spazi esterni, poco oltre 1000 metri quadri per ciascun lotto, si sviluppano su tre elevazioni: piano cantina con un unico ambiente di 80 metri quadri completo di servizio e garage di quasi 24 metri quadri, comoda corsia di manovra e parcheggio; piano terra si compone di un salotto di ca 30 metri quadri, due camere, disimpegno, servizio, portico e giardino; sopra, locale sottotetto. Vendita complessiva euro 225.000 NON SI VENDE UNA VILLA SINGOLARMENTE MA ENTRAMBE COMPLESSIVAMENTE. ideale per due famiglie. Questa proprietà è pubblicizzata dalla Giorgi immobiliare, sul mercato dal 1974. Giorgi, se si tratta di case


