Valutazione immobiliare indipendente, accurata e gratuita
Casa indipendente in vendita a Giarre in zona Macchia a 190.000 € (cod.64fc68c6)
Caasa non ha sufficienti informazioni per commentare la casa indipendente a Giarre in zona Macchia - 64fc68c6.
Analisi immobiliare
I dati in posseso di Caasa per quest'immobile sono insufficienti, inaffidabili o contraddittori per proporre un'analisi attendibile.
Mercato immobiliare a Giarre
Per quanto riguarda più in generale la città di Giarre, sono presenti al momento oltre 500 annunci per
case indipendenti in vendita (meno del 5% dell'intera provincia)
e il maggior numero di annunci per questa tipologia sono relativi proprio alla zona di Macchia.
La richiesta media nella zona dove sorge la casa indipendente (Macchia) è pari a
880 €/m², molto vicina ai valori della zona San Leonardello che sono i più alti della città .
Possiamo inoltre considerare che in tutta la città negli ultimi 6 mesi, i prezzi per case indipendenti in vendita sono
in debole aumento (+1,39%).
Invece i prezzi per la zona di sono sostanzialmente stabili.
NOVITÀ Il risultato che vedi dipende dai dati che siamo riusciti ad estrarre dall'annuncio: ottieni una stima più accuranta di questo immobile, inserendo dati più precisi.
N.B. L'Opinione di Caasa® è un servizio sperimentale realizzato tramite tecniche di Intelligenza Artificiale, fornito senza alcuna garanzia di correttezza e completezza. Leggi il disclaimer o segnalaci un problema.
IMMAGINI
IN SINTESI
DESCRIZIONE
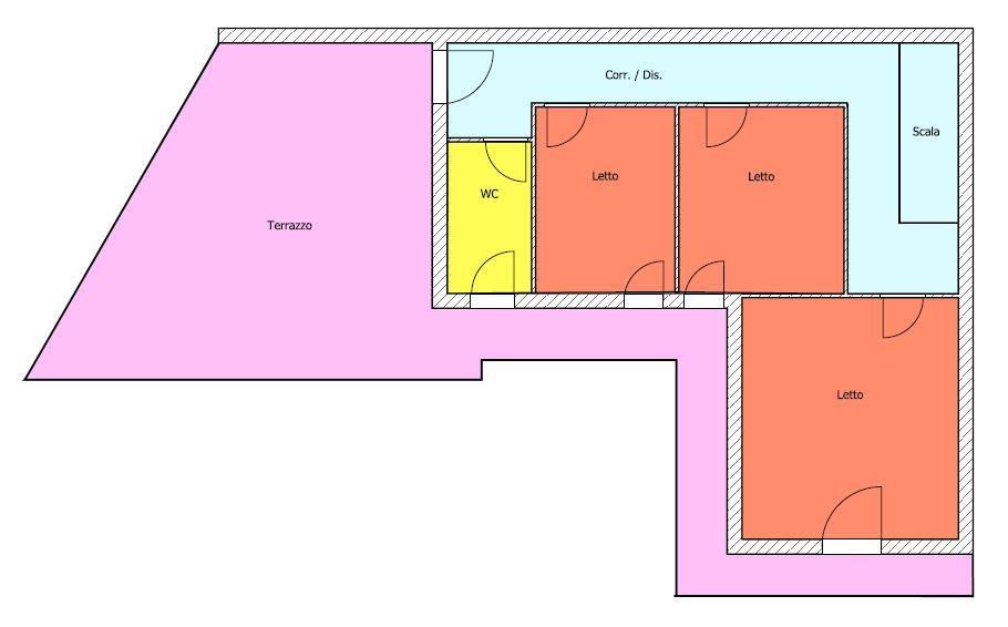
di recente ristrutturazione con posto auto con garage con terrazza con balcone da ristrutturare di recente ristrutturazione con cortile per vacanza
Da Privato. Vendesi villetta a Macchia di Giarre (CT) zona centrale, facilmente raggiungibile dal vicino casello autostradale di Giarre (a pochi chilometri di distanza), in posizione strategica vicino a supermercati, ortofrutta, macellerie, casa del pesce, bar, posta, banca, parrucchiere uomo e donna, chiese, anfiteatro comunale...luoghi accessibili direttamente a piedi! La villetta è stata costruita nella prima metà degli anni '90, è su due elevazioni con una zona giorno a piano terra con ampio salone, cucina e bagno, e una zona notte a piano primo con tre camere da letto e un bagno. Una scala in granito grigio unisce i due piani. A piano terra è presente un ampio garage con annessa lavanderia, un ampio cortile con possibilità di parcheggio di ben due auto. Al primo piano è presente ampia terrazza con annesso balcone a giro. La villetta è stata utilizzata solo per periodi di vacanza estiva e natalizia, quindi si presenta in un buon stato di conservazione. MUST Piano terra + Piano primo = 170 mq!!! Cortile esterno piano terra = 59 mq!! Garage piano terra = 37 mq!! Terrazza + balconi piano primo = 53.5 mq!! Tutti gli ambienti sono ben areati e illuminati da luce naturale Rivestimenti (piastrelle, pezzi sanitari, ect) di prima scelta Ampia scala con rivestimento in granito e ringhiera in legno massiccio, lavorato artigianalmente! Suddivisione tra zona giorno e zona notte Possibilità di personalizzare gli ambienti Ampia possibilità di parcheggio

