Valutazione immobiliare indipendente, accurata e gratuita
Casa indipendente in vendita ad Acireale a 350.000 € (cod.659c71a7)
Caasa non ha sufficienti informazioni per commentare la casa indipendente in vendita ad Acireale - 659c71a7.
Analisi immobiliare
I dati in posseso di Caasa per quest'immobile sono insufficienti, inaffidabili o contraddittori per proporre un'analisi attendibile.
Mercato immobiliare ad Acireale
Per quanto riguarda più in generale la città di Acireale, sono presenti al momento oltre 500 annunci per
case indipendenti in vendita (meno del 10% dell'intera provincia)
e il maggior numero di annunci per questa tipologia sono relativi alla zona di Centro Storico.
La dinamica dei prezzi in tutta la città mostra che negli ultimi 6 mesi, i prezzi per case indipendenti in vendita sono
in debole aumento (+1,58%).
NOVITÀ Il risultato che vedi dipende dai dati che siamo riusciti ad estrarre dall'annuncio: ottieni una stima più accuranta di questo immobile, inserendo dati più precisi.
N.B. L'Opinione di Caasa® è un servizio sperimentale realizzato tramite tecniche di Intelligenza Artificiale, fornito senza alcuna garanzia di correttezza e completezza. Leggi il disclaimer o segnalaci un problema.
IMMAGINI
IN SINTESI
DESCRIZIONE
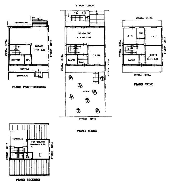
da ristrutturare con posto auto con terrazza con garage con giardino con cucina abitabile da ristrutturare con cantina
Da Privato. Vendesi ad Acireale villetta a schiera di 240 mq situata in Via Latisana, in una posizione strategica, a brevissima distanza dall'ingresso autostradale ma immersa in un contesto residenziale tranquillo e riservato. La proprietà si sviluppa su quattro livelli: • Piano Terra: Ingresso indipendente su giardino privato, ampio salone, cucina abitabile, bagno e lavanderia. • Primo Piano: Zona notte con tre camere da letto e due bagni. • Secondo Piano: Locale sottotetto con accesso diretto a un terrazzo panoramico, ideale per momenti di relax. • Piano Seminterrato: Generoso garage con annessa cantina e ripostiglio. Dati tecnici e disponibilità: • Superficie: 240 mq catastali. • • Condizioni: Immobile del 1999, luminoso e ben mantenuto. • Disponibilità: L'immobile è attualmente locato e sarà libero a partire da settembre. • Prezzo: 350.000 Una casa completa che unisce la praticità del garage privato alla libertà del giardino e dei terrazzi. Contattaci per fissare un appuntamento e visionare l'immobile. NO AGENZIE



