Valutazione immobiliare indipendente, accurata e gratuita
Terreno agricolo in vendita ad Aci Catena a 130.000 € (cod.64fa04bb)
Caasa non ha sufficienti informazioni per commentare il terreno agricolo in vendita ad Aci Catena - 64fa04bb.
Analisi immobiliare
I dati in posseso di Caasa per quest'immobile sono insufficienti, inaffidabili o contraddittori per proporre un'analisi attendibile.
Mercato immobiliare ad Aci Catena
Per quanto riguarda più in generale la città di Aci Catena, sono presenti al momento più di venti annunci per
terreni agricoli in vendita (meno dell'1% dell'intera provincia)
e il maggior numero di annunci per questa tipologia sono relativi alla zona di San Nicolò.
Vedi altre informazioni direttamente su
Mercato-Immobiliare.info
NOVITÀ Il risultato che vedi dipende dai dati che siamo riusciti ad estrarre dall'annuncio: ottieni una stima più accuranta di questo immobile, inserendo dati più precisi.
N.B. L'Opinione di Caasa® è un servizio sperimentale realizzato tramite tecniche di Intelligenza Artificiale, fornito senza alcuna garanzia di correttezza e completezza. Leggi il disclaimer o segnalaci un problema.
IMMAGINI
IN SINTESI
DESCRIZIONE
con posto auto con terrazza con garage con giardino
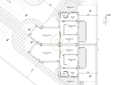
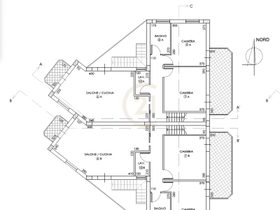
Terreno edificabile con progetto approvato e permesso di costruire – 4 appartamenti in villa o 2 ville indipendenti A pochi passi dall’Ospedale di Acireale e dallo svincolo autostradale, in posizione strategica e panoramica con vista sull’Etna, proponiamo in vendita un terreno edificabile di 1654 mq con progetto approvato e permesso di costruire già rilasciato. Il progetto prevede la realizzazione di quattro appartamenti in villa, ciascuno con ingresso indipendente e garage di pertinenza. Le due unità al piano terra disporranno di giardino privato, mentre le due unità al piano primo avranno mansarda e terrazzo a livello. La soluzione è modulabile anche per la costruzione di due ville indipendenti, mantenendo ingressi autonomi e ampi spazi esterni. La presenza del permesso di costruire già rilasciato consente di avviare i lavori immediatamente, senza lungaggini burocratiche, riducendo tempi e incertezze. Questa opportunità è ideale per investitori e costruttori alla ricerca di un intervento immediatamente cantierabile, ma anche per famiglie che desiderano realizzare più unità abitative per vivere vicini mantenendo la propria indipendenza. Soluzioni di questo tipo, già pronte per la costruzione e in posizioni così ben collegate, sono rare sul mercato locale. Contattaci per fissare un appuntamento in sede: potrai visionare il progetto, le planimetrie e scoprire un dettaglio progettuale che valorizza ulteriormente la luce e la privacy degli spazi. RIF.6961




