Valutazione immobiliare indipendente, accurata e gratuita
Casa indipendente in vendita a Gela a 160.000 € (cod.64f35627)
Caasa non ha sufficienti informazioni per commentare la casa indipendente in vendita a Gela - 64f35627.
Analisi immobiliare
I dati in posseso di Caasa per quest'immobile sono insufficienti, inaffidabili o contraddittori per proporre un'analisi attendibile.
Mercato immobiliare a Gela
Per quanto riguarda più in generale la città di Gela, sono presenti al momento più di 200 annunci per
case indipendenti in vendita (quasi il 20% dell'intera provincia)
e il maggior numero di annunci per questa tipologia sono relativi alla zona di Centro Storico.
La dinamica dei prezzi in tutta la città mostra che negli ultimi 6 mesi, i prezzi per case indipendenti in vendita sono
in deciso aumento (+9,14%).
NOVITÀ Il risultato che vedi dipende dai dati che siamo riusciti ad estrarre dall'annuncio: ottieni una stima più accuranta di questo immobile, inserendo dati più precisi.
N.B. L'Opinione di Caasa® è un servizio sperimentale realizzato tramite tecniche di Intelligenza Artificiale, fornito senza alcuna garanzia di correttezza e completezza. Leggi il disclaimer o segnalaci un problema.
IMMAGINI
IN SINTESI
DESCRIZIONE
con terrazza con cantina con posto auto
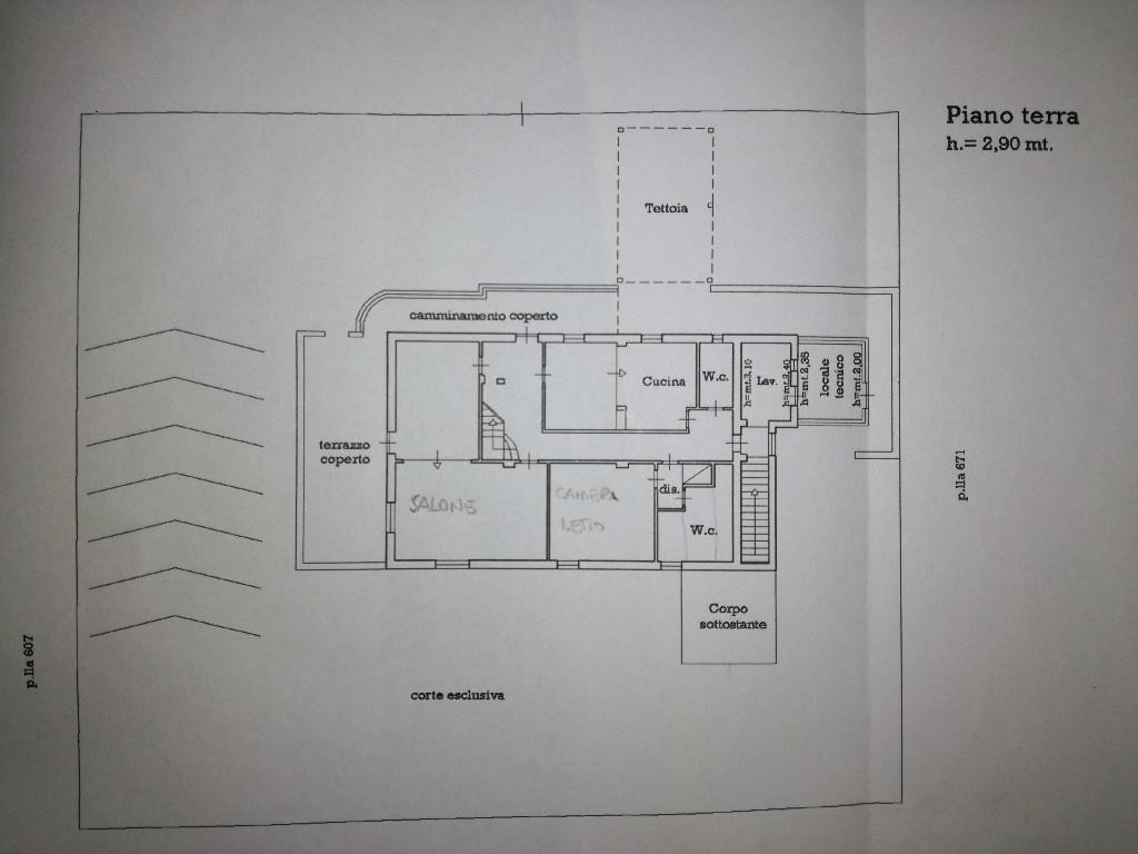
Da Privato. Vendesi villa 15 vani, cucina e 3 bagni, mq totali 295, con corte esterna esclusiva, panoramica, su tre elevazioni, sita in Santa Cristina Gela , provincia di Palermo, via M.M. Raparelli, e così composta: PIANO CANTINATO (mq calpestabili 83) : Cantina/magazzino (mq calpestabili 15) Portico (mq calpestabili 36) Soggiorno (mq calpestabili 20) Cucina rustica in muratura con piano cottura a gas, lavello, posto cottura a legna, forno a legna (mq calpestabili 12) PIANO TERRA (mq calpestabili 117): Salone (mq calpestabili 42) Cucina/Soggiorno (mq calpestabili 23) Camera da letto matrimoniale (mq calpestabili 17) Bagno padronale con vasca e doccia (mq calpestabili 13) Guardaroba/ripostiglio (mq calpestabili 1) Bagno di servizio (mq calpestabili 6) Lavanderia (mq calpestabili 6) Veranda (mq calpestabili 9) Terrazzo coperto (mq calpestabili 32) Tettoia parcheggio auto (mq calpestabili 24) Corte esterna esclusiva PIANO PRIMO A MANSARDA (mq calpestabili 95) Salotto (mq calpestabili 17) Terrazzo con veranda (mq calpestabili 17) Camera da letto 1 (mq calpestabili 11) Camera da letto 2 (mq calpestabili 10) Camera da letto 3 (mq calpestabili 27) Ripostiglio (mq calpestabili 6) Bagno con vasca e doccia (mq calpestabili 7) Stato generale di conservazione discreto, necessari modesti interventi di manutenzione, rivestimenti piano terra con piastrelle in ceramica prima scelta, piano primo con piastrelle in cotto modesti interventi di manutenzione d’este prima scelta. RICHIESTA € 160.000,00 , arredato, spese di trasferimento proprietà a totale carico del compratore. Disponibile da subito e visionabile contattando Antonio Mondello al 351 4505027 antonio.mondello@hotmail.it

