Valutazione immobiliare indipendente, accurata e gratuita
Appartamento in vendita a Canicattì a 21.325 € (cod.6521fe91)
Caasa non ha sufficienti informazioni per commentare l'appartamento in vendita a Canicattì - 6521fe91.
Analisi immobiliare
I dati in posseso di Caasa per quest'immobile sono insufficienti, inaffidabili o contraddittori per proporre un'analisi attendibile.
Mercato immobiliare a Canicattì
Per quanto riguarda più in generale la città di Canicattì, sono presenti al momento oltre 500 annunci per
appartamenti in vendita (quasi il 20% dell'intera provincia) .
Relativamente alla dinamica dei prezzi, possiamo dire che negli ultimi 6 mesi i prezzi medi in tutta la città per appartamenti in vendita sono
sostanzialmente stabili (-0,03%).
NOVITÀ Il risultato che vedi dipende dai dati che siamo riusciti ad estrarre dall'annuncio: ottieni una stima più accuranta di questo immobile, inserendo dati più precisi.
N.B. L'Opinione di Caasa® è un servizio sperimentale realizzato tramite tecniche di Intelligenza Artificiale, fornito senza alcuna garanzia di correttezza e completezza. Leggi il disclaimer o segnalaci un problema.
IMMAGINI
IN SINTESI
PROPOSTO DA:
Immobili all'Asta
DESCRIZIONE
da ristrutturare con posto auto con termocondizionamento in asta giudiziaria con balcone da ristrutturare con riscaldamento autonomo senza ascensore
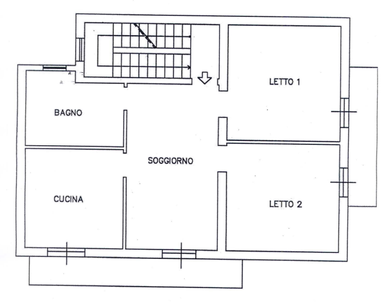
APPARTAMENTO CON ACCESSORI ALL'ASTA IN VIA ENRICO MEDI, CANICATTI' (AG) Si propone unità immobiliare ad uso residenziale in Via Enrico Medi 49, Canicattì (AG). Più specificatamente si tratta di trilocale posto al piano terzo con annesso box auto/magazzino al piano terra. L'appartamento risulta composto da: - cucina - soggiorno - due camere - due balconi - bagno L'immobile occupa 67,22 mq. di superficie commerciale. DATI CATASTALI - appartamento: foglio 56, particella 2518 (ex particella 1067), subalterno 8, categoria A/3, vani 5 Rendita €220,79 - box auto/magazzino: foglio 56, particella 2518 (ex particella 1067), subalterno 9, categoria C/2, Rendita €139,44. CHI SIAMO Immobiliallasta.it aiuta le persone a comprare casa all'asta e migliorare la qualità della loro vita senza correre rischi, grazie ad una piattaforma specializzata in aste immobiliari sviluppata intorno alle vere esigenze di chi cerca casa all'asta e ad un team di 30 professionisti esperti dedicato, che ti guida passo passo in un acquisto sicuro e certificato da una tripla garanzia sull'immobile e sul servizio. A differenza delle agenzie troverai: + Varietà: gestiamo migliaia di immobili ogni mese + Aiuto concreto: consulenti focalizzati nell'aiutarti a raggiungere il tuo obiettivo + Tranquillità: tripla garanzia che ti tutela da ogni rischio sull'acquisto Alcuni risultati oggettivi nell'ultimo anno e mezzo: - +500 clienti portati all'asta - +200 case aggiudicate, per un valore totale di 15 milioni - +7 milioni risparmiati nell'acquisto Contattaci subito per parlare con uno dei nostri consulenti che ti aiuterà a trovare la casa all'asta senza correre rischi



