N.B. Tutti le informazioni immobiliari sono fornite senza alcuna garanzia. Leggi il disclaimer.
Locali di sgombero o terreni agricoli con cucina abitabile e con giardino e con riscaldamento autonomo e con termocondizionamento in vendita a Budoni in zona San Pietro
MODIFICA QUESTA RICERCAVilla in vendita a Budoni PREMIUM
- prezzo medio casa indipendente in zona OMI B1 : 3871 €/m²
- prezzo medio villa in zona OMI B1 : 3940 €/m²
Terreno agricolo di 5000 mq a San Pietro Clarenza
terreno agricolo San Pietro 120.000 €
Ubicato nel comune di San Pietro Clarenza, in posizione strategica e in forte espansione, proponiamo in vendita un terreno di circa 5.000 mq, ideale per chi è alla ricerca di un investimento solido e con concrete prospettive di sviluppo. La proprietà si distingue per la morfologia regolare e facilmente s […]
LEGGI ANCORA
Terreno agricolo in vendita a San Pietro In Belvedere - Capannoli
Vendita Appartamento indipendente, in zona SAN PIETRO IN PALAZZI, CECINA
Proposto da:
locale di sgombero San Pietro 255.000 €
Cecina S.P.Palazzi Da recente totale ristrutturazione di casolare anni "40 al piano primo con mansarda troviamo questo appartamento con ingresso indipendente da scala esterna e veranda, composto da cucina abitabile, ampio soggiorno, n.3 camere e bagno oltre ripostiglio sottoscala. Al piano terra corte di […]
LEGGI ANCORA
- prezzo medio appartamento in zona OMI R1 : 2200 €/m²
- prezzo medio casa semindipendente in zona OMI R1 : 2413 €/m²
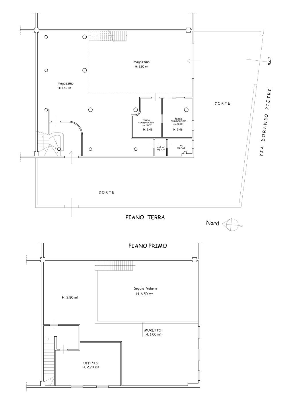
Vendita Magazzino, SAN PIETRO CLARENZA
Proposto da:
locale di sgombero San Pietro 55.000 €
A San Pietro Clarenza, proponiamo all'interno di un piccolo residence un deposito/garage altezza 3,00 situato al piano seminterrato Il deposito è ideale per entrare uno o più veicoli, dati gli 85 mq di spazio disponibile, può essere utilizzato anche come magazzino o ufficio e inoltre dotato di un bagno e […]
LEGGI ANCORA
- prezzo medio ufficio a Budoni : 1817 €/m²
Vendita Terreno edificabile, SAN PIETRO CLARENZA
Proposto da:
terreno agricolo San Pietro 18.000 €
San Pietro Clarenza, via Santa Caterina zona residenziale, terreno da mq 710 ricco di ulivi e fico d'india ,circondato da mura dirute, zona da urbanizzare, in parte edificabile , ottimo per investimento, ricadente in parte zona parco urbano e simili, utilizzabile da subito come terreno agricolo. € 18.000 […]
LEGGI ANCORA
Terreno residenziale in vendita a Budoni PREMIUM
Vendita Magazzino, SAN PIETRO CLARENZA
Proposto da:
locale di sgombero San Pietro 68.000 €
San Pietro Clarenza centralissimo (ufficio postale) deposito 140 mq sito al piano seminterrato con due grandi aperture luminose adibito a ufficio/deposito h. 4.00 con servizio nuovo, diviso in ufficio accoglienza clienti , sala per attività e locale , oltre a spogliatoi, locale adatto per attività ricrea […]
LEGGI ANCORA
- prezzo medio ufficio a Budoni : 1817 €/m²
San Pietro di Feletto - ZONA CENTRO VENDESI CASA INDIPENDENTE CON GIARDINO CONDOMINIALE
locale di sgombero San Pietro 300.000 €
Proponiamo casa singola con vista mozzafiato! L'immobile, costruito negli anni '60, è disposto su due livelli; al piano primo siamo accolti dalla zona attualmente adibita ad abitazione composta da cucina e soggiorno separati, un bagno e tre comode camere matrimoniali. Proseguendo verso il piano terra tro […]
LEGGI ANCORA
- prezzo medio casa indipendente in zona OMI R1 : 2535 €/m²
- prezzo medio casa semindipendente in zona OMI R1 : 2413 €/m²
Vendita Villino, in zona SAN PIETRO IN VALLE, GAZZO VERONESE
terreno agricolo San Pietro 48.000 €
GAZZO VERONESE: nella frazione di San Pietro in Valle, in contesto residenziale tranquillo e di campagna, proponiamo in vendita un villino in linea centrale disposto su due livelli e composto da ingresso su soggiorno, cucina abitabile, servizio ed angolo lavanderia al piano terra; due camere da letto mat […]
LEGGI ANCORA
Stabile cielo-terra con magazzini e giardino zona San Pietro Lametino
locale di sgombero San Pietro 150.000 €
Proponiamo in vendita, nel Comune di San Pietro a Maida - zona San Pietro Lametino, località Prato Via Papa Luciani, un intero fabbricato cielo-terra di circa 700 mq complessivi, con giardino di esclusiva pertinenza. Limmobile si sviluppa su più livelli ed è ideale sia come investimento che come soluzion […]
LEGGI ANCORA
Vendita Magazzino, SAN PIETRO CLARENZA
locale di sgombero San Pietro 78.000 €
In vendita a San Pietro Clarenza, in via della Madonnina, proponiamo un ampio magazzino di 140 mq situato al piano terra, ideale per diverse destinazioni d'uso. Questo spazio, caratterizzato da un unico vano divisibile in più ambienti e un bagno, offre numerose possibilità di personalizzazione e ristrutt […]
LEGGI ANCORA
Casa indipendente in vendita a Budoni PREMIUM
All’interno di un residence esclusivo e perfettamente curato, proponiamo in vendita una deliziosa villetta caposchieraa soli pochi minuti a piedi dalla splendida spiaggia di Porto Ottiolu e dalla vivace promenade con tutti i principali serv […]
LEGGI ANCORA
- prezzo medio casa indipendente in zona OMI E4 : 3511 €/m²
- prezzo medio casa semindipendente in zona OMI E4 : 3009 €/m²
Vendita Agriturismo, in zona SAN PIETRO IN PALAZZI, CECINA
locale di sgombero San Pietro 2.050.000 €
CECINA MERAVIGLIOSA PROPRIETA CON PISCINA, TERRENO A OLIVETO, VIGNETO, PARCO GIOCHI E CAMPO DI CALCIO. A 7 km dalla spiaggia e a 5 Km dal centro di Cecina, a pochi minuti di auto dal Bolgheri, Castiglioncello, Bibbona e con vista mare, in aperta campagna, agevolmente raggiungibile, vendesi azienda agrico […]
LEGGI ANCORA
- prezzo medio casa indipendente in zona OMI R1 : 2535 €/m²
- prezzo medio villa in zona OMI R1 : 2967 €/m²
Vendita Casa semi indipendente, in zona SAN BENEDETTO IN GUARANO, SAN PIETRO IN GUARANO
locale di sgombero San Pietro 30.000 €
San Benedetto in Guarano ( Cs ) - Nel cuore del paese, si propone in vendita casa su tre livelli con doppio ingresso indipendente. L'immobile che si presenta in buono stato, è libero su tre lati, ed è così composto : piano seminterrato con accesso diretto all'ampia cucina/soggiorno, con camino e stufa a […]
LEGGI ANCORA
Vendita Capannone industriale, in zona SAN PIETRO IN PALAZZI, CECINA
Proposto da:
locale di sgombero San Pietro 425.000 €
Cecina -San Pietro Palazzi In ottima posizione commerciale/artigianale all'interno di comparto di nuova viabilità nella zona artigianale, capannone di recente costruzione composto da magazzino e due uffici oltre antibagno e bagno al piano terra , collegamento con scala interna al piano primo con altri tr […]
LEGGI ANCORA
- prezzo medio trivano in zona OMI R1 : 2578 €/m²
- prezzo medio trivano a Budoni : 3294 €/m²
Vendita Annesso agricolo, in zona C.DA S. PIETRO, SORIANO NEL CIMINO
terreno agricolo San Pietro
Soriano nel Cimino, nella campagna della frazione di S. Eutizio, proponiamo in vendita un terreno agricolo (noccioleto) di circa 8000 m² con annesso un piccolo fabbricato di circa 30 m² con possibilità di piccolo ampliamento per realizzare un bagno e creare un piccolo rifugio immerso nella natura. Sulla […]
LEGGI ANCORA
Villa unifamigliare di 2000 mq a Ravenna
Proposto da:
terreno agricolo San Pietro 1.550.000 €
Ci sono due storie affascinanti che si susseguono nelle vicende di Villa Olga, a San Pietro in Vincoli, elegante dimora a tre piani, di stile neoclassico, dalla rara conformazione a corte chiusa, edificata nel Settecento dalla nobile famiglia ravennate dei Donati. La prima storia riguarda il grande compo […]
LEGGI ANCORA
- prezzo medio villa in zona OMI R1 : 2967 €/m²
- prezzo medio villa in zona San Pietro : 1852 €/m²
Villa in vendita a Budoni PREMIUM
- prezzo medio casa indipendente in zona OMI B1 : 3871 €/m²
- prezzo medio villa in zona OMI B1 : 3940 €/m²
Vendita Rustico casale, BERZANO DI SAN PIETRO
locale di sgombero San Pietro 69.000 €
GRANDICASE propone in vendita, nel cuore di Berzano San Pietro, splendido casale con ex fienile, dependance e ampio terreno privato. L’immobile principale si sviluppa su due livelli oltre al piano seminterrato, con le caratteristiche architettoniche tipiche della cascina piemontese. Composizione: • Piano […]
LEGGI ANCORA
- prezzo medio casale a Budoni : 1953 €/m²

